
Get the free Zoning DivisionGreen, OH
Show details
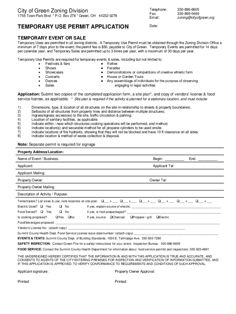
City of Green Zoning Division 1755 Town Park Blvd * P.O. Box 278 * Green, OH 442320278TEMPORARY USE PERMIT APPLICATIONTelephone: Fax: Email:3308966605 3308990469 zoning@cityofgreen.orgDate:TEMPORARY
We are not affiliated with any brand or entity on this form
Get, Create, Make and Sign zoning divisiongreen oh

Edit your zoning divisiongreen oh form online
Type text, complete fillable fields, insert images, highlight or blackout data for discretion, add comments, and more.

Add your legally-binding signature
Draw or type your signature, upload a signature image, or capture it with your digital camera.

Share your form instantly
Email, fax, or share your zoning divisiongreen oh form via URL. You can also download, print, or export forms to your preferred cloud storage service.
Editing zoning divisiongreen oh online
Follow the steps down below to use a professional PDF editor:
1
Log into your account. If you don't have a profile yet, click Start Free Trial and sign up for one.
2
Upload a file. Select Add New on your Dashboard and upload a file from your device or import it from the cloud, online, or internal mail. Then click Edit.
3
Edit zoning divisiongreen oh. Text may be added and replaced, new objects can be included, pages can be rearranged, watermarks and page numbers can be added, and so on. When you're done editing, click Done and then go to the Documents tab to combine, divide, lock, or unlock the file.
4
Get your file. When you find your file in the docs list, click on its name and choose how you want to save it. To get the PDF, you can save it, send an email with it, or move it to the cloud.
pdfFiller makes working with documents easier than you could ever imagine. Try it for yourself by creating an account!
Uncompromising security for your PDF editing and eSignature needs
Your private information is safe with pdfFiller. We employ end-to-end encryption, secure cloud storage, and advanced access control to protect your documents and maintain regulatory compliance.
How to fill out zoning divisiongreen oh

How to fill out zoning divisiongreen oh
01
Obtain a zoning map of the area from the local zoning office.
02
Locate the specific zone designated as 'green oh' on the map.
03
Fill out the zoning divisiongreen oh application form following the instructions provided.
04
Submit the completed application along with any required documents to the zoning office for review.
05
Attend any scheduled hearings or meetings related to the zoning divisiongreen oh application.
06
Await approval or denial of the application and follow up with the zoning office for further instructions.
Who needs zoning divisiongreen oh?
01
Property owners looking to make changes or developments within the 'green oh' zoning area.
02
Real estate developers planning to construct buildings or structures in the 'green oh' zone.
03
Business owners seeking permits for certain types of operations within the designated zone.
Fill
form
: Try Risk Free
For pdfFiller’s FAQs
Below is a list of the most common customer questions. If you can’t find an answer to your question, please don’t hesitate to reach out to us.
How can I get zoning divisiongreen oh?
The pdfFiller premium subscription gives you access to a large library of fillable forms (over 25 million fillable templates) that you can download, fill out, print, and sign. In the library, you'll have no problem discovering state-specific zoning divisiongreen oh and other forms. Find the template you want and tweak it with powerful editing tools.
How do I make edits in zoning divisiongreen oh without leaving Chrome?
Adding the pdfFiller Google Chrome Extension to your web browser will allow you to start editing zoning divisiongreen oh and other documents right away when you search for them on a Google page. People who use Chrome can use the service to make changes to their files while they are on the Chrome browser. pdfFiller lets you make fillable documents and make changes to existing PDFs from any internet-connected device.
How do I edit zoning divisiongreen oh straight from my smartphone?
You can easily do so with pdfFiller's apps for iOS and Android devices, which can be found at the Apple Store and the Google Play Store, respectively. You can use them to fill out PDFs. We have a website where you can get the app, but you can also get it there. When you install the app, log in, and start editing zoning divisiongreen oh, you can start right away.
What is zoning divisiongreen oh?
Zoning divisiongreen oh is a city regulation that divides areas into different zones in order to regulate land use.
Who is required to file zoning divisiongreen oh?
Property owners, developers, and individuals looking to make changes to property use are required to file zoning divisiongreen oh.
How to fill out zoning divisiongreen oh?
Zoning divisiongreen oh can be filled out online or in person at the city's zoning department. It requires information about the property, proposed land use changes, and contact information.
What is the purpose of zoning divisiongreen oh?
The purpose of zoning divisiongreen oh is to ensure that land is used in a way that is consistent with the city's development goals, to protect property values, and to promote public health and safety.
What information must be reported on zoning divisiongreen oh?
Information such as property address, current land use, proposed land use changes, property owner information, and contact information must be reported on zoning divisiongreen oh.
Fill out your zoning divisiongreen oh online with pdfFiller!
pdfFiller is an end-to-end solution for managing, creating, and editing documents and forms in the cloud. Save time and hassle by preparing your tax forms online.

Zoning Divisiongreen Oh is not the form you're looking for?Search for another form here.
Relevant keywords
Related Forms
If you believe that this page should be taken down, please follow our DMCA take down process
here
.
This form may include fields for payment information. Data entered in these fields is not covered by PCI DSS compliance.