Get the free High Efficiency Washing Machine Rebate Application and ...
Show details
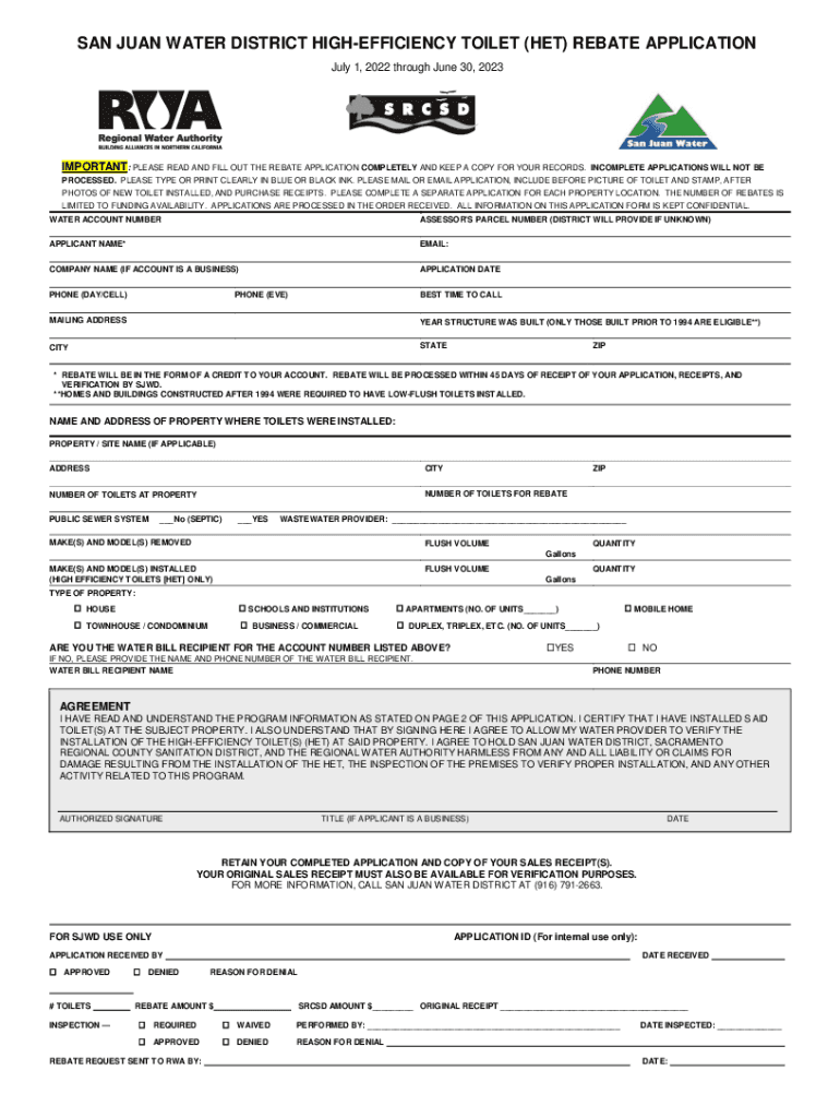
SAN JUAN WATER DISTRICT INEFFICIENCY TOILET (HE) REBATE APPLICATION July 1, 2022, through June 30, 2023IMPORTANT: PLEASE READ AND FILL OUT THE REBATE APPLICATION COMPLETELY AND KEEP A COPY FOR YOUR
We are not affiliated with any brand or entity on this form
Get, Create, Make and Sign high efficiency washing machine
Edit your high efficiency washing machine form online
Type text, complete fillable fields, insert images, highlight or blackout data for discretion, add comments, and more.
Add your legally-binding signature
Draw or type your signature, upload a signature image, or capture it with your digital camera.
Share your form instantly
Email, fax, or share your high efficiency washing machine form via URL. You can also download, print, or export forms to your preferred cloud storage service.
Editing high efficiency washing machine online
Use the instructions below to start using our professional PDF editor:
1
Register the account. Begin by clicking Start Free Trial and create a profile if you are a new user.
2
Prepare a file. Use the Add New button to start a new project. Then, using your device, upload your file to the system by importing it from internal mail, the cloud, or adding its URL.
3
Edit high efficiency washing machine. Rearrange and rotate pages, add and edit text, and use additional tools. To save changes and return to your Dashboard, click Done. The Documents tab allows you to merge, divide, lock, or unlock files.
4
Get your file. Select the name of your file in the docs list and choose your preferred exporting method. You can download it as a PDF, save it in another format, send it by email, or transfer it to the cloud.
It's easier to work with documents with pdfFiller than you can have ever thought. You may try it out for yourself by signing up for an account.
Uncompromising security for your PDF editing and eSignature needs
Your private information is safe with pdfFiller. We employ end-to-end encryption, secure cloud storage, and advanced access control to protect your documents and maintain regulatory compliance.
How to fill out high efficiency washing machine
How to fill out high efficiency washing machine
01
Read the manufacturer's instructions and detergent guidelines for your specific high efficiency washing machine.
02
Sort your laundry by color and fabric type.
03
Use the correct amount of high efficiency detergent, as using too much can cause excess suds and reduce the effectiveness of the machine.
04
Load the machine with the dirty laundry, making sure not to overcrowd it.
05
Select the appropriate wash cycle and temperature for the load.
06
Start the machine and wait for the cycle to finish.
07
Remove the clean laundry promptly to prevent wrinkles and odors.
Who needs high efficiency washing machine?
01
People who do a lot of laundry and want to save on water and energy bills.
02
Those with limited space who need a smaller, more compact washing machine.
03
Individuals who are conscious about their environmental impact and want to use less water and energy.
Fill
form
: Try Risk Free
For pdfFiller’s FAQs
Below is a list of the most common customer questions. If you can’t find an answer to your question, please don’t hesitate to reach out to us.
How do I edit high efficiency washing machine in Chrome?
Install the pdfFiller Google Chrome Extension in your web browser to begin editing high efficiency washing machine and other documents right from a Google search page. When you examine your documents in Chrome, you may make changes to them. With pdfFiller, you can create fillable documents and update existing PDFs from any internet-connected device.
Can I create an electronic signature for the high efficiency washing machine in Chrome?
You can. With pdfFiller, you get a strong e-signature solution built right into your Chrome browser. Using our addon, you may produce a legally enforceable eSignature by typing, sketching, or photographing it. Choose your preferred method and eSign in minutes.
How do I complete high efficiency washing machine on an Android device?
Use the pdfFiller mobile app and complete your high efficiency washing machine and other documents on your Android device. The app provides you with all essential document management features, such as editing content, eSigning, annotating, sharing files, etc. You will have access to your documents at any time, as long as there is an internet connection.
What is high efficiency washing machine?
High efficiency washing machine is a type of washing machine that uses less water and energy compared to traditional washing machines.
Who is required to file high efficiency washing machine?
Manufacturers and retailers of high efficiency washing machines are required to report information about their products to regulatory bodies.
How to fill out high efficiency washing machine?
To fill out a high efficiency washing machine report, manufacturers need to provide details about the energy and water efficiency of their products.
What is the purpose of high efficiency washing machine?
The purpose of high efficiency washing machine is to reduce water and energy consumption while still providing quality cleaning.
What information must be reported on high efficiency washing machine?
Information such as energy consumption, water usage, and other efficiency metrics must be reported on high efficiency washing machines.
Fill out your high efficiency washing machine online with pdfFiller!
pdfFiller is an end-to-end solution for managing, creating, and editing documents and forms in the cloud. Save time and hassle by preparing your tax forms online.
High Efficiency Washing Machine is not the form you're looking for?Search for another form here.
Relevant keywords
Related Forms
If you believe that this page should be taken down, please follow our DMCA take down process
here
.
This form may include fields for payment information. Data entered in these fields is not covered by PCI DSS compliance.