Get the free Deck Section 2
Show details
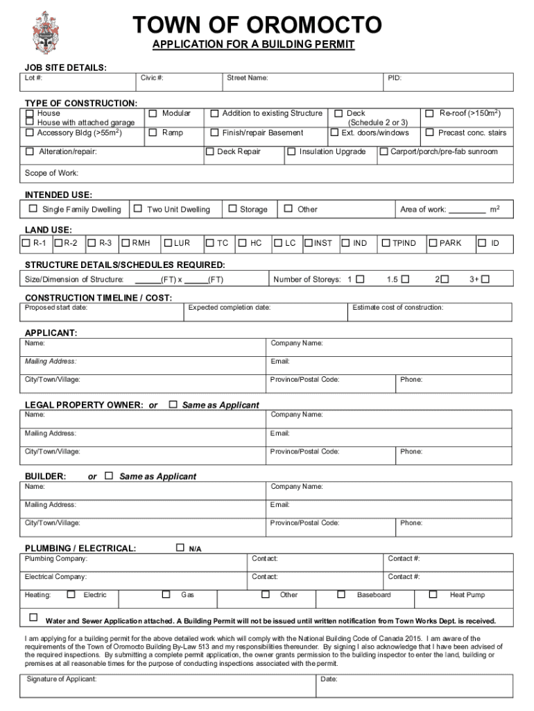
TOWN OF PROMOTE
APPLICATION FOR A BUILDING PERMIT
JOB SITE DETAILS:
Lot #:Civic #:Street Name:PID:TYPE OF CONSTRUCTION:
House with attached garage
Accessory Bldg (55m2)ModularAddition to existing
We are not affiliated with any brand or entity on this form
Get, Create, Make and Sign deck section 2
Edit your deck section 2 form online
Type text, complete fillable fields, insert images, highlight or blackout data for discretion, add comments, and more.
Add your legally-binding signature
Draw or type your signature, upload a signature image, or capture it with your digital camera.
Share your form instantly
Email, fax, or share your deck section 2 form via URL. You can also download, print, or export forms to your preferred cloud storage service.
Editing deck section 2 online
Use the instructions below to start using our professional PDF editor:
1
Set up an account. If you are a new user, click Start Free Trial and establish a profile.
2
Prepare a file. Use the Add New button to start a new project. Then, using your device, upload your file to the system by importing it from internal mail, the cloud, or adding its URL.
3
Edit deck section 2. Rearrange and rotate pages, add new and changed texts, add new objects, and use other useful tools. When you're done, click Done. You can use the Documents tab to merge, split, lock, or unlock your files.
4
Save your file. Choose it from the list of records. Then, shift the pointer to the right toolbar and select one of the several exporting methods: save it in multiple formats, download it as a PDF, email it, or save it to the cloud.
It's easier to work with documents with pdfFiller than you can have ever thought. Sign up for a free account to view.
Uncompromising security for your PDF editing and eSignature needs
Your private information is safe with pdfFiller. We employ end-to-end encryption, secure cloud storage, and advanced access control to protect your documents and maintain regulatory compliance.
How to fill out deck section 2
How to fill out deck section 2
01
Locate deck section 2 on the provided form
02
Enter all relevant information accurately in the designated fields
03
Double check your entries for accuracy and completeness
04
Submit the completed deck section 2 form as required
Who needs deck section 2?
01
Individuals or organizations involved in a deck construction project
02
Building inspectors or regulatory authorities overseeing deck construction projects
03
Contractors or builders responsible for deck installations
Fill
form
: Try Risk Free
For pdfFiller’s FAQs
Below is a list of the most common customer questions. If you can’t find an answer to your question, please don’t hesitate to reach out to us.
Can I create an electronic signature for the deck section 2 in Chrome?
Yes. By adding the solution to your Chrome browser, you can use pdfFiller to eSign documents and enjoy all of the features of the PDF editor in one place. Use the extension to create a legally-binding eSignature by drawing it, typing it, or uploading a picture of your handwritten signature. Whatever you choose, you will be able to eSign your deck section 2 in seconds.
Can I create an eSignature for the deck section 2 in Gmail?
With pdfFiller's add-on, you may upload, type, or draw a signature in Gmail. You can eSign your deck section 2 and other papers directly in your mailbox with pdfFiller. To preserve signed papers and your personal signatures, create an account.
How do I complete deck section 2 on an Android device?
Use the pdfFiller mobile app to complete your deck section 2 on an Android device. The application makes it possible to perform all needed document management manipulations, like adding, editing, and removing text, signing, annotating, and more. All you need is your smartphone and an internet connection.
What is deck section 2?
Deck section 2 is a part of the documentation required for certain types of filings.
Who is required to file deck section 2?
Entities or individuals who are submitting the specific type of filing that requires deck section 2.
How to fill out deck section 2?
Deck section 2 should be completed according to the specific instructions provided by the governing authority.
What is the purpose of deck section 2?
The purpose of deck section 2 is to provide specific information required for the filing.
What information must be reported on deck section 2?
The information required on deck section 2 will depend on the specific filing requirements.
Fill out your deck section 2 online with pdfFiller!
pdfFiller is an end-to-end solution for managing, creating, and editing documents and forms in the cloud. Save time and hassle by preparing your tax forms online.
Deck Section 2 is not the form you're looking for?Search for another form here.
Relevant keywords
Related Forms
If you believe that this page should be taken down, please follow our DMCA take down process
here
.
This form may include fields for payment information. Data entered in these fields is not covered by PCI DSS compliance.