
Get the free application form notification of intent to develop section 38 ( ...
Show details
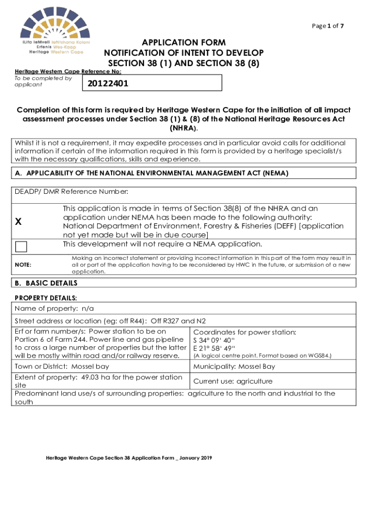
Page 1 of 7APPLICATION FORM NOTIFICATION OF INTENT TO DEVELOP SECTION 38 (1) AND SECTION 38 (8)Heritage Western Cape Reference No: To be completed by applicant20122401Completion of this form is required
We are not affiliated with any brand or entity on this form
Get, Create, Make and Sign application form notification of

Edit your application form notification of form online
Type text, complete fillable fields, insert images, highlight or blackout data for discretion, add comments, and more.

Add your legally-binding signature
Draw or type your signature, upload a signature image, or capture it with your digital camera.

Share your form instantly
Email, fax, or share your application form notification of form via URL. You can also download, print, or export forms to your preferred cloud storage service.
How to edit application form notification of online
Follow the steps below to benefit from the PDF editor's expertise:
1
Create an account. Begin by choosing Start Free Trial and, if you are a new user, establish a profile.
2
Prepare a file. Use the Add New button to start a new project. Then, using your device, upload your file to the system by importing it from internal mail, the cloud, or adding its URL.
3
Edit application form notification of. Add and change text, add new objects, move pages, add watermarks and page numbers, and more. Then click Done when you're done editing and go to the Documents tab to merge or split the file. If you want to lock or unlock the file, click the lock or unlock button.
4
Save your file. Choose it from the list of records. Then, shift the pointer to the right toolbar and select one of the several exporting methods: save it in multiple formats, download it as a PDF, email it, or save it to the cloud.
pdfFiller makes working with documents easier than you could ever imagine. Register for an account and see for yourself!
Uncompromising security for your PDF editing and eSignature needs
Your private information is safe with pdfFiller. We employ end-to-end encryption, secure cloud storage, and advanced access control to protect your documents and maintain regulatory compliance.
How to fill out application form notification of

How to fill out application form notification of
01
Read the instructions carefully before starting the application form.
02
Provide all the required information accurately and truthfully.
03
Double-check all the details filled in the form before submitting.
04
Submit the completed application form according to the specified method (online or offline).
Who needs application form notification of?
01
Individuals who are required to inform authorities or organizations about a particular event or situation.
Fill
form
: Try Risk Free
For pdfFiller’s FAQs
Below is a list of the most common customer questions. If you can’t find an answer to your question, please don’t hesitate to reach out to us.
How do I edit application form notification of online?
The editing procedure is simple with pdfFiller. Open your application form notification of in the editor, which is quite user-friendly. You may use it to blackout, redact, write, and erase text, add photos, draw arrows and lines, set sticky notes and text boxes, and much more.
How do I edit application form notification of straight from my smartphone?
You can do so easily with pdfFiller’s applications for iOS and Android devices, which can be found at the Apple Store and Google Play Store, respectively. Alternatively, you can get the app on our web page: https://edit-pdf-ios-android.pdffiller.com/. Install the application, log in, and start editing application form notification of right away.
Can I edit application form notification of on an iOS device?
You certainly can. You can quickly edit, distribute, and sign application form notification of on your iOS device with the pdfFiller mobile app. Purchase it from the Apple Store and install it in seconds. The program is free, but in order to purchase a subscription or activate a free trial, you must first establish an account.
What is application form notification of?
Application form notification is for informing relevant parties about a specific application or request.
Who is required to file application form notification of?
The individuals or organizations directly involved in the application process are required to file the application form notification.
How to fill out application form notification of?
The application form notification should be filled out accurately and completely with all required information.
What is the purpose of application form notification of?
The purpose of application form notification is to ensure proper communication and documentation of application-related activities.
What information must be reported on application form notification of?
All relevant details related to the application, such as the applicant's information, the nature of the application, and any supporting documents, must be reported on the application form notification.
Fill out your application form notification of online with pdfFiller!
pdfFiller is an end-to-end solution for managing, creating, and editing documents and forms in the cloud. Save time and hassle by preparing your tax forms online.

Application Form Notification Of is not the form you're looking for?Search for another form here.
Relevant keywords
Related Forms
If you believe that this page should be taken down, please follow our DMCA take down process
here
.
This form may include fields for payment information. Data entered in these fields is not covered by PCI DSS compliance.