
Get the free Chapter 158 - VEGETATIONCode of OrdinancesAtlanta, GA
Show details
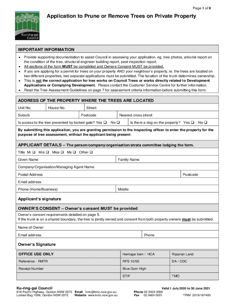
Page 1 of 9Application to Prune or Remove Trees on Private PropertyIMPORTANT INFORMATION Provide supporting documentation to assist Council in assessing your application. Eg. tree photos, arborist
We are not affiliated with any brand or entity on this form
Get, Create, Make and Sign chapter 158 - vegetationcode

Edit your chapter 158 - vegetationcode form online
Type text, complete fillable fields, insert images, highlight or blackout data for discretion, add comments, and more.

Add your legally-binding signature
Draw or type your signature, upload a signature image, or capture it with your digital camera.

Share your form instantly
Email, fax, or share your chapter 158 - vegetationcode form via URL. You can also download, print, or export forms to your preferred cloud storage service.
How to edit chapter 158 - vegetationcode online
Use the instructions below to start using our professional PDF editor:
1
Check your account. It's time to start your free trial.
2
Upload a document. Select Add New on your Dashboard and transfer a file into the system in one of the following ways: by uploading it from your device or importing from the cloud, web, or internal mail. Then, click Start editing.
3
Edit chapter 158 - vegetationcode. Rearrange and rotate pages, insert new and alter existing texts, add new objects, and take advantage of other helpful tools. Click Done to apply changes and return to your Dashboard. Go to the Documents tab to access merging, splitting, locking, or unlocking functions.
4
Save your file. Select it from your list of records. Then, move your cursor to the right toolbar and choose one of the exporting options. You can save it in multiple formats, download it as a PDF, send it by email, or store it in the cloud, among other things.
pdfFiller makes working with documents easier than you could ever imagine. Register for an account and see for yourself!
Uncompromising security for your PDF editing and eSignature needs
Your private information is safe with pdfFiller. We employ end-to-end encryption, secure cloud storage, and advanced access control to protect your documents and maintain regulatory compliance.
How to fill out chapter 158 - vegetationcode

How to fill out chapter 158 - vegetationcode
01
Refer to the specific guidelines provided in the chapter 158 - vegetationcode
02
Identify the relevant sections that apply to the vegetation being classified
03
Carefully fill out the required information in the respective fields
04
Ensure all data provided is accurate and up to date
05
Submit the completed form as per the instructions given
Who needs chapter 158 - vegetationcode?
01
Landscapers and landscape architects
02
Botanists and biologists
03
City planners and urban developers
04
Environmental consultants
Fill
form
: Try Risk Free
For pdfFiller’s FAQs
Below is a list of the most common customer questions. If you can’t find an answer to your question, please don’t hesitate to reach out to us.
How do I modify my chapter 158 - vegetationcode in Gmail?
In your inbox, you may use pdfFiller's add-on for Gmail to generate, modify, fill out, and eSign your chapter 158 - vegetationcode and any other papers you receive, all without leaving the program. Install pdfFiller for Gmail from the Google Workspace Marketplace by visiting this link. Take away the need for time-consuming procedures and handle your papers and eSignatures with ease.
How do I fill out chapter 158 - vegetationcode using my mobile device?
Use the pdfFiller mobile app to fill out and sign chapter 158 - vegetationcode. Visit our website (https://edit-pdf-ios-android.pdffiller.com/) to learn more about our mobile applications, their features, and how to get started.
How do I edit chapter 158 - vegetationcode on an Android device?
With the pdfFiller mobile app for Android, you may make modifications to PDF files such as chapter 158 - vegetationcode. Documents may be edited, signed, and sent directly from your mobile device. Install the app and you'll be able to manage your documents from anywhere.
What is chapter 158 - vegetationcode?
Chapter 158 - vegetation code relates to regulations regarding the management and preservation of vegetation within a specified area.
Who is required to file chapter 158 - vegetationcode?
Property owners, land developers, and government agencies may be required to file chapter 158 - vegetationcode depending on the location and jurisdiction.
How to fill out chapter 158 - vegetationcode?
Chapter 158 - vegetationcode must be filled out according to the specific guidelines provided by the local governing body or jurisdiction.
What is the purpose of chapter 158 - vegetationcode?
The purpose of chapter 158 - vegetationcode is to regulate and manage vegetation to maintain ecological balance, prevent erosion, and enhance the aesthetics of the area.
What information must be reported on chapter 158 - vegetationcode?
Information such as types of vegetation present, proposed changes to vegetation, landscaping plans, and maintenance schedules may need to be reported on chapter 158 - vegetationcode.
Fill out your chapter 158 - vegetationcode online with pdfFiller!
pdfFiller is an end-to-end solution for managing, creating, and editing documents and forms in the cloud. Save time and hassle by preparing your tax forms online.

Chapter 158 - Vegetationcode is not the form you're looking for?Search for another form here.
Relevant keywords
Related Forms
If you believe that this page should be taken down, please follow our DMCA take down process
here
.
This form may include fields for payment information. Data entered in these fields is not covered by PCI DSS compliance.