Get the free Notification of Asbestos Demolition or Renovation
Show details
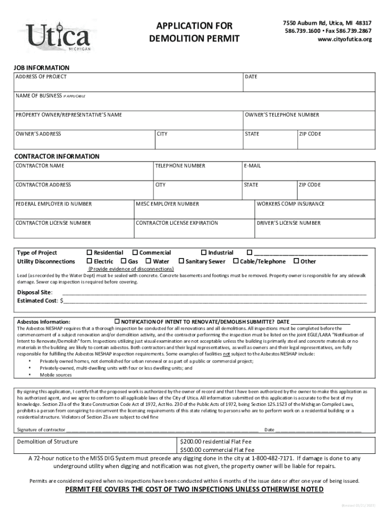
7550 Auburn Rd, Utica, MI 48317
586.739.1600 Fax 586.739.2867
www.cityofutica.orgAPPLICATION FOR
DEMOLITION PERMIT
JOB INFORMATION
ADDRESS OF PROJECTDATENAME OF BUSINESS IF APPLICABLE
PROPERTY OWNER/REPRESENTATIVES
We are not affiliated with any brand or entity on this form
Get, Create, Make and Sign notification of asbestos demolition
Edit your notification of asbestos demolition form online
Type text, complete fillable fields, insert images, highlight or blackout data for discretion, add comments, and more.
Add your legally-binding signature
Draw or type your signature, upload a signature image, or capture it with your digital camera.
Share your form instantly
Email, fax, or share your notification of asbestos demolition form via URL. You can also download, print, or export forms to your preferred cloud storage service.
Editing notification of asbestos demolition online
In order to make advantage of the professional PDF editor, follow these steps:
1
Set up an account. If you are a new user, click Start Free Trial and establish a profile.
2
Upload a file. Select Add New on your Dashboard and upload a file from your device or import it from the cloud, online, or internal mail. Then click Edit.
3
Edit notification of asbestos demolition. Rearrange and rotate pages, add and edit text, and use additional tools. To save changes and return to your Dashboard, click Done. The Documents tab allows you to merge, divide, lock, or unlock files.
4
Get your file. When you find your file in the docs list, click on its name and choose how you want to save it. To get the PDF, you can save it, send an email with it, or move it to the cloud.
With pdfFiller, it's always easy to work with documents. Try it!
Uncompromising security for your PDF editing and eSignature needs
Your private information is safe with pdfFiller. We employ end-to-end encryption, secure cloud storage, and advanced access control to protect your documents and maintain regulatory compliance.
How to fill out notification of asbestos demolition
How to fill out notification of asbestos demolition
01
Obtain the notification of asbestos demolition form from the appropriate regulatory agency.
02
Fill out the form completely, including the details of the demolition project and any asbestos-containing materials that will be affected.
03
Provide any supporting documentation required, such as asbestos surveys or removal plans.
04
Submit the completed form to the regulatory agency within the specified timeframe.
Who needs notification of asbestos demolition?
01
Any individual or company planning to demolish a building or structure that contains asbestos needs to fill out a notification of asbestos demolition.
Fill
form
: Try Risk Free
For pdfFiller’s FAQs
Below is a list of the most common customer questions. If you can’t find an answer to your question, please don’t hesitate to reach out to us.
How do I modify my notification of asbestos demolition in Gmail?
notification of asbestos demolition and other documents can be changed, filled out, and signed right in your Gmail inbox. You can use pdfFiller's add-on to do this, as well as other things. When you go to Google Workspace, you can find pdfFiller for Gmail. You should use the time you spend dealing with your documents and eSignatures for more important things, like going to the gym or going to the dentist.
Where do I find notification of asbestos demolition?
The premium version of pdfFiller gives you access to a huge library of fillable forms (more than 25 million fillable templates). You can download, fill out, print, and sign them all. State-specific notification of asbestos demolition and other forms will be easy to find in the library. Find the template you need and use advanced editing tools to make it your own.
Can I create an electronic signature for signing my notification of asbestos demolition in Gmail?
Use pdfFiller's Gmail add-on to upload, type, or draw a signature. Your notification of asbestos demolition and other papers may be signed using pdfFiller. Register for a free account to preserve signed papers and signatures.
What is notification of asbestos demolition?
Notification of asbestos demolition is a requirement for informing authorities about plans to demolish a structure that contains asbestos materials.
Who is required to file notification of asbestos demolition?
Any individual or company planning to demolish a structure that contains asbestos materials is required to file notification of asbestos demolition.
How to fill out notification of asbestos demolition?
Notification of asbestos demolition can be filled out by providing details about the location of the structure, the asbestos-containing materials present, and the proposed demolition method.
What is the purpose of notification of asbestos demolition?
The purpose of notification of asbestos demolition is to ensure that proper measures are taken to safely remove and dispose of asbestos materials during the demolition process.
What information must be reported on notification of asbestos demolition?
Information such as the location of the structure, the type and amount of asbestos materials present, and the planned demolition method must be reported on notification of asbestos demolition.
Fill out your notification of asbestos demolition online with pdfFiller!
pdfFiller is an end-to-end solution for managing, creating, and editing documents and forms in the cloud. Save time and hassle by preparing your tax forms online.
Notification Of Asbestos Demolition is not the form you're looking for?Search for another form here.
Relevant keywords
Related Forms
If you believe that this page should be taken down, please follow our DMCA take down process
here
.
This form may include fields for payment information. Data entered in these fields is not covered by PCI DSS compliance.