Get the free Including suburb and Lot 1716, Wollert 3750 (262m2)
Show details
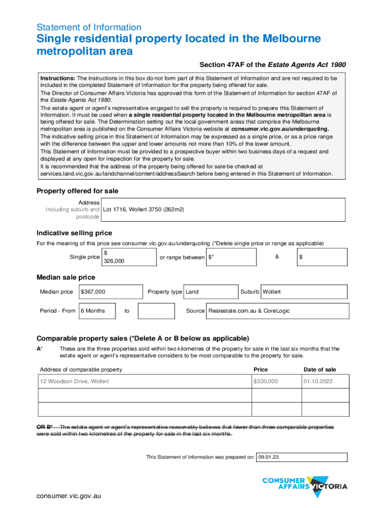
Statement of InformationSingle residential property located in the Melbourne metropolitan area Section 47AF of the Estate Agents Act 1980 Instructions: The instructions in this box do not form part
We are not affiliated with any brand or entity on this form
Get, Create, Make and Sign including suburb and lot
Edit your including suburb and lot form online
Type text, complete fillable fields, insert images, highlight or blackout data for discretion, add comments, and more.
Add your legally-binding signature
Draw or type your signature, upload a signature image, or capture it with your digital camera.
Share your form instantly
Email, fax, or share your including suburb and lot form via URL. You can also download, print, or export forms to your preferred cloud storage service.
Editing including suburb and lot online
To use the professional PDF editor, follow these steps:
1
Log in to account. Start Free Trial and sign up a profile if you don't have one yet.
2
Prepare a file. Use the Add New button. Then upload your file to the system from your device, importing it from internal mail, the cloud, or by adding its URL.
3
Edit including suburb and lot. Rearrange and rotate pages, insert new and alter existing texts, add new objects, and take advantage of other helpful tools. Click Done to apply changes and return to your Dashboard. Go to the Documents tab to access merging, splitting, locking, or unlocking functions.
4
Save your file. Select it in the list of your records. Then, move the cursor to the right toolbar and choose one of the available exporting methods: save it in multiple formats, download it as a PDF, send it by email, or store it in the cloud.
Uncompromising security for your PDF editing and eSignature needs
Your private information is safe with pdfFiller. We employ end-to-end encryption, secure cloud storage, and advanced access control to protect your documents and maintain regulatory compliance.
How to fill out including suburb and lot
How to fill out including suburb and lot
01
Start by listing the suburb name where the property is located.
02
Include the lot number or reference for the specific property.
03
Fill out all necessary details about the property as accurately as possible.
04
Double-check the information provided for accuracy before submitting.
Who needs including suburb and lot?
01
Anyone looking to provide or receive information about a property in a specific suburb and lot would need to include these details.
Fill
form
: Try Risk Free
For pdfFiller’s FAQs
Below is a list of the most common customer questions. If you can’t find an answer to your question, please don’t hesitate to reach out to us.
How can I manage my including suburb and lot directly from Gmail?
You can use pdfFiller’s add-on for Gmail in order to modify, fill out, and eSign your including suburb and lot along with other documents right in your inbox. Find pdfFiller for Gmail in Google Workspace Marketplace. Use time you spend on handling your documents and eSignatures for more important things.
How do I complete including suburb and lot online?
Easy online including suburb and lot completion using pdfFiller. Also, it allows you to legally eSign your form and change original PDF material. Create a free account and manage documents online.
How do I edit including suburb and lot straight from my smartphone?
You may do so effortlessly with pdfFiller's iOS and Android apps, which are available in the Apple Store and Google Play Store, respectively. You may also obtain the program from our website: https://edit-pdf-ios-android.pdffiller.com/. Open the application, sign in, and begin editing including suburb and lot right away.
What is including suburb and lot?
Including suburb and lot refers to including detailed information about the specific suburb and lot number of a property in a legal document or form.
Who is required to file including suburb and lot?
Property owners or individuals responsible for managing or overseeing properties are required to file including suburb and lot.
How to fill out including suburb and lot?
To fill out including suburb and lot, one must provide the accurate suburb name and lot number associated with a particular property.
What is the purpose of including suburb and lot?
The purpose of including suburb and lot is to provide precise location details of a property for legal or administrative purposes.
What information must be reported on including suburb and lot?
The information reported on including suburb and lot typically includes the name of the suburb and the specific lot number of the property.
Fill out your including suburb and lot online with pdfFiller!
pdfFiller is an end-to-end solution for managing, creating, and editing documents and forms in the cloud. Save time and hassle by preparing your tax forms online.
Including Suburb And Lot is not the form you're looking for?Search for another form here.
Relevant keywords
Related Forms
If you believe that this page should be taken down, please follow our DMCA take down process
here
.
This form may include fields for payment information. Data entered in these fields is not covered by PCI DSS compliance.