
Get the free ZOOM VIDEO CONFERENCE cityofconway
Show details
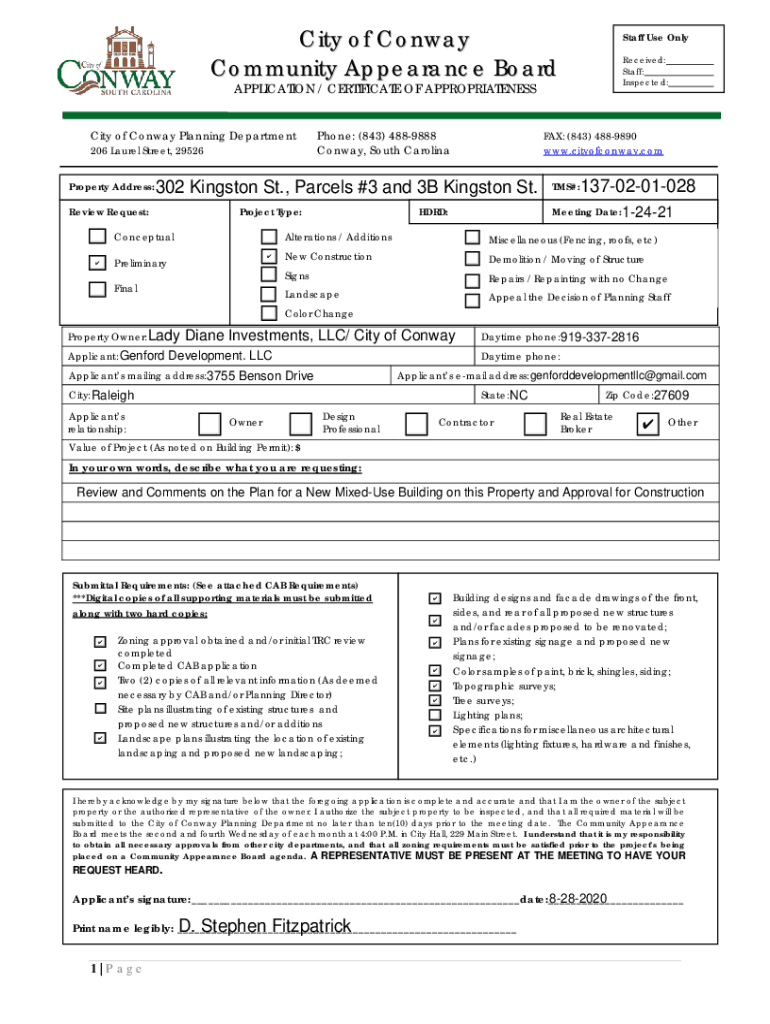
CITY OF CONWAY COMMUNITY APPEARANCE BOARD MEETING WEDNESDAY, FEBRUARY 24, 2021 | 4:00 P.M. ZOOM VIDEO CONFERENCE | cityofconway.come. CALL TO ORDER II. APPROVAL OF MINUTES (February 10, 2021) III.
We are not affiliated with any brand or entity on this form
Get, Create, Make and Sign zoom video conference cityofconway

Edit your zoom video conference cityofconway form online
Type text, complete fillable fields, insert images, highlight or blackout data for discretion, add comments, and more.

Add your legally-binding signature
Draw or type your signature, upload a signature image, or capture it with your digital camera.

Share your form instantly
Email, fax, or share your zoom video conference cityofconway form via URL. You can also download, print, or export forms to your preferred cloud storage service.
Editing zoom video conference cityofconway online
To use the services of a skilled PDF editor, follow these steps below:
1
Set up an account. If you are a new user, click Start Free Trial and establish a profile.
2
Prepare a file. Use the Add New button to start a new project. Then, using your device, upload your file to the system by importing it from internal mail, the cloud, or adding its URL.
3
Edit zoom video conference cityofconway. Add and change text, add new objects, move pages, add watermarks and page numbers, and more. Then click Done when you're done editing and go to the Documents tab to merge or split the file. If you want to lock or unlock the file, click the lock or unlock button.
4
Save your file. Select it in the list of your records. Then, move the cursor to the right toolbar and choose one of the available exporting methods: save it in multiple formats, download it as a PDF, send it by email, or store it in the cloud.
pdfFiller makes working with documents easier than you could ever imagine. Register for an account and see for yourself!
Uncompromising security for your PDF editing and eSignature needs
Your private information is safe with pdfFiller. We employ end-to-end encryption, secure cloud storage, and advanced access control to protect your documents and maintain regulatory compliance.
How to fill out zoom video conference cityofconway

How to fill out zoom video conference cityofconway
01
Go to the website of zoom video conference cityofconway
02
Click on the 'Join Meeting' button
03
Enter the meeting ID and password provided by the organizer
04
Fill in your name and email address
05
Click on the 'Join Meeting' button to join the video conference
Who needs zoom video conference cityofconway?
01
Anyone who needs to attend a virtual meeting or conference organized by the cityofconway
Fill
form
: Try Risk Free
For pdfFiller’s FAQs
Below is a list of the most common customer questions. If you can’t find an answer to your question, please don’t hesitate to reach out to us.
How can I manage my zoom video conference cityofconway directly from Gmail?
In your inbox, you may use pdfFiller's add-on for Gmail to generate, modify, fill out, and eSign your zoom video conference cityofconway and any other papers you receive, all without leaving the program. Install pdfFiller for Gmail from the Google Workspace Marketplace by visiting this link. Take away the need for time-consuming procedures and handle your papers and eSignatures with ease.
Where do I find zoom video conference cityofconway?
The premium subscription for pdfFiller provides you with access to an extensive library of fillable forms (over 25M fillable templates) that you can download, fill out, print, and sign. You won’t have any trouble finding state-specific zoom video conference cityofconway and other forms in the library. Find the template you need and customize it using advanced editing functionalities.
How do I edit zoom video conference cityofconway in Chrome?
Install the pdfFiller Chrome Extension to modify, fill out, and eSign your zoom video conference cityofconway, which you can access right from a Google search page. Fillable documents without leaving Chrome on any internet-connected device.
What is zoom video conference cityofconway?
Zoom video conference cityofconway is a virtual meeting platform used by the city of Conway for conducting online conferences and meetings.
Who is required to file zoom video conference cityofconway?
City officials, employees, and invited participants are required to file zoom video conference cityofconway when attending meetings or conferences.
How to fill out zoom video conference cityofconway?
To fill out zoom video conference cityofconway, participants need to join the designated meeting room and provide necessary information as requested during the conference.
What is the purpose of zoom video conference cityofconway?
The purpose of zoom video conference cityofconway is to facilitate remote collaboration, communication, and decision-making among city officials and stakeholders.
What information must be reported on zoom video conference cityofconway?
Participants must report their attendance, contributions, and any decisions or actions taken during the zoom video conference cityofconway.
Fill out your zoom video conference cityofconway online with pdfFiller!
pdfFiller is an end-to-end solution for managing, creating, and editing documents and forms in the cloud. Save time and hassle by preparing your tax forms online.

Zoom Video Conference Cityofconway is not the form you're looking for?Search for another form here.
Relevant keywords
Related Forms
If you believe that this page should be taken down, please follow our DMCA take down process
here
.
This form may include fields for payment information. Data entered in these fields is not covered by PCI DSS compliance.