
Get the free SESSION VENUE
Show details
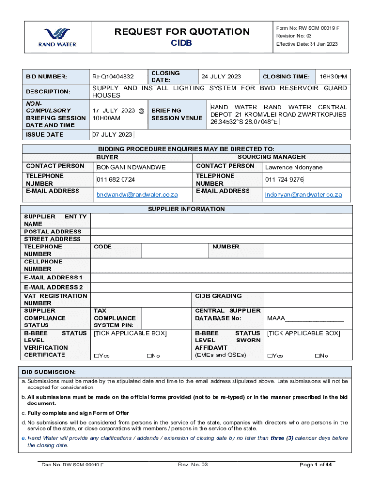
REQUEST FOR QUOTATION DISCLOSING DATE:Form No: RAW SCM 00019 F Revision No: 03 Effective Date: 31 Jan 2023BID NUMBER:RFQ10404832DESCRIPTION:SUPPLY AND INSTALL LIGHTING SYSTEM FOR BWD RESERVOIR GUARD
We are not affiliated with any brand or entity on this form
Get, Create, Make and Sign session venue

Edit your session venue form online
Type text, complete fillable fields, insert images, highlight or blackout data for discretion, add comments, and more.

Add your legally-binding signature
Draw or type your signature, upload a signature image, or capture it with your digital camera.

Share your form instantly
Email, fax, or share your session venue form via URL. You can also download, print, or export forms to your preferred cloud storage service.
How to edit session venue online
To use the professional PDF editor, follow these steps below:
1
Register the account. Begin by clicking Start Free Trial and create a profile if you are a new user.
2
Upload a file. Select Add New on your Dashboard and upload a file from your device or import it from the cloud, online, or internal mail. Then click Edit.
3
Edit session venue. Rearrange and rotate pages, add and edit text, and use additional tools. To save changes and return to your Dashboard, click Done. The Documents tab allows you to merge, divide, lock, or unlock files.
4
Get your file. When you find your file in the docs list, click on its name and choose how you want to save it. To get the PDF, you can save it, send an email with it, or move it to the cloud.
pdfFiller makes working with documents easier than you could ever imagine. Try it for yourself by creating an account!
Uncompromising security for your PDF editing and eSignature needs
Your private information is safe with pdfFiller. We employ end-to-end encryption, secure cloud storage, and advanced access control to protect your documents and maintain regulatory compliance.
How to fill out session venue

How to fill out session venue
01
Choose a suitable location for the session venue
02
Make sure the venue has enough space to accommodate all attendees
03
Set up the seating arrangement and any necessary equipment or materials
04
Provide directions or signage to guide attendees to the venue
05
Inform attendees of the session venue details in advance
Who needs session venue?
01
Event organizers
02
Training coordinators
03
Conference planners
04
Workshop facilitators
Fill
form
: Try Risk Free
For pdfFiller’s FAQs
Below is a list of the most common customer questions. If you can’t find an answer to your question, please don’t hesitate to reach out to us.
How can I manage my session venue directly from Gmail?
pdfFiller’s add-on for Gmail enables you to create, edit, fill out and eSign your session venue and any other documents you receive right in your inbox. Visit Google Workspace Marketplace and install pdfFiller for Gmail. Get rid of time-consuming steps and manage your documents and eSignatures effortlessly.
How can I edit session venue from Google Drive?
It is possible to significantly enhance your document management and form preparation by combining pdfFiller with Google Docs. This will allow you to generate papers, amend them, and sign them straight from your Google Drive. Use the add-on to convert your session venue into a dynamic fillable form that can be managed and signed using any internet-connected device.
How do I edit session venue in Chrome?
Download and install the pdfFiller Google Chrome Extension to your browser to edit, fill out, and eSign your session venue, which you can open in the editor with a single click from a Google search page. Fillable documents may be executed from any internet-connected device without leaving Chrome.
What is session venue?
Session venue is the location where the session or meeting is taking place.
Who is required to file session venue?
The individual or organization hosting the session is required to file the session venue.
How to fill out session venue?
To fill out session venue, provide the address or details of the location where the session will be held.
What is the purpose of session venue?
The purpose of session venue is to inform attendees of the location of the session.
What information must be reported on session venue?
The information that must be reported on session venue includes the full address of the location, any directions or instructions for attendees, and contact information.
Fill out your session venue online with pdfFiller!
pdfFiller is an end-to-end solution for managing, creating, and editing documents and forms in the cloud. Save time and hassle by preparing your tax forms online.

Session Venue is not the form you're looking for?Search for another form here.
Relevant keywords
Related Forms
If you believe that this page should be taken down, please follow our DMCA take down process
here
.
This form may include fields for payment information. Data entered in these fields is not covered by PCI DSS compliance.