
Get the free Town of Redwater - Safety Codes Services
Show details
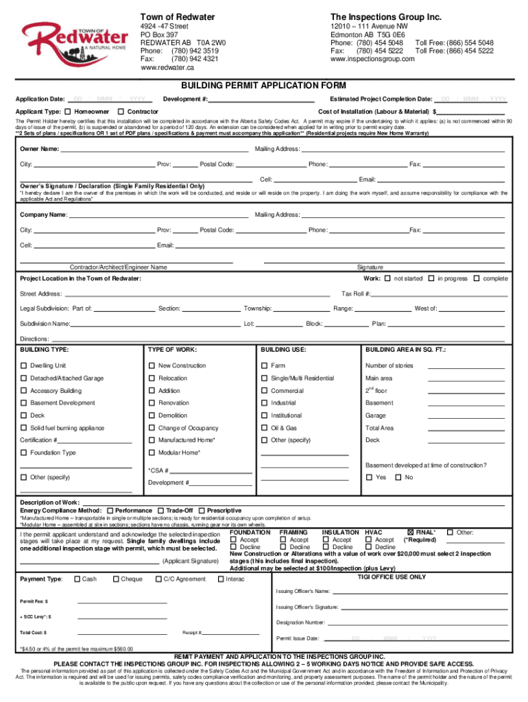
Town of RedwaterThe Inspections Group Inc.4924 47 Street
PO Box 397
REPEATER AB T0A 2W0
Phone: (780) 942 3519
Fax:
(780) 942 4321
www.redwater.ca12010 111 Avenue NW
Edmonton AB T5G 0E6
Phone: (780)
We are not affiliated with any brand or entity on this form
Get, Create, Make and Sign town of redwater

Edit your town of redwater form online
Type text, complete fillable fields, insert images, highlight or blackout data for discretion, add comments, and more.

Add your legally-binding signature
Draw or type your signature, upload a signature image, or capture it with your digital camera.

Share your form instantly
Email, fax, or share your town of redwater form via URL. You can also download, print, or export forms to your preferred cloud storage service.
How to edit town of redwater online
Follow the steps down below to benefit from a competent PDF editor:
1
Create an account. Begin by choosing Start Free Trial and, if you are a new user, establish a profile.
2
Upload a document. Select Add New on your Dashboard and transfer a file into the system in one of the following ways: by uploading it from your device or importing from the cloud, web, or internal mail. Then, click Start editing.
3
Edit town of redwater. Add and replace text, insert new objects, rearrange pages, add watermarks and page numbers, and more. Click Done when you are finished editing and go to the Documents tab to merge, split, lock or unlock the file.
4
Get your file. Select your file from the documents list and pick your export method. You may save it as a PDF, email it, or upload it to the cloud.
pdfFiller makes dealing with documents a breeze. Create an account to find out!
Uncompromising security for your PDF editing and eSignature needs
Your private information is safe with pdfFiller. We employ end-to-end encryption, secure cloud storage, and advanced access control to protect your documents and maintain regulatory compliance.
How to fill out town of redwater

How to fill out town of redwater
01
Obtain the town of Redwater form from the local municipal office or online.
02
Fill out your personal information such as name, address, and contact details.
03
Provide details about the purpose of filling out the form and any relevant information requested.
04
Double-check all the information filled out for accuracy and completeness.
05
Submit the completed town of Redwater form to the appropriate department or office.
Who needs town of redwater?
01
Residents of Redwater who require official documentation or permits from the local municipality.
02
Business owners operating within the town limits who need to register their businesses or apply for licenses.
03
Government agencies or organizations requesting information or data specific to the town of Redwater.
Fill
form
: Try Risk Free
For pdfFiller’s FAQs
Below is a list of the most common customer questions. If you can’t find an answer to your question, please don’t hesitate to reach out to us.
How can I get town of redwater?
The pdfFiller premium subscription gives you access to a large library of fillable forms (over 25 million fillable templates) that you can download, fill out, print, and sign. In the library, you'll have no problem discovering state-specific town of redwater and other forms. Find the template you want and tweak it with powerful editing tools.
How do I edit town of redwater in Chrome?
Install the pdfFiller Google Chrome Extension in your web browser to begin editing town of redwater and other documents right from a Google search page. When you examine your documents in Chrome, you may make changes to them. With pdfFiller, you can create fillable documents and update existing PDFs from any internet-connected device.
Can I create an eSignature for the town of redwater in Gmail?
Use pdfFiller's Gmail add-on to upload, type, or draw a signature. Your town of redwater and other papers may be signed using pdfFiller. Register for a free account to preserve signed papers and signatures.
What is town of redwater?
The town of Redwater is a municipality located in Alberta, Canada.
Who is required to file town of redwater?
All residents and businesses located within the town of Redwater are required to file.
How to fill out town of redwater?
Town of Redwater forms can be filled out online or submitted in person at the town office.
What is the purpose of town of redwater?
The town of Redwater form is used for reporting annual income and expenses to the municipality.
What information must be reported on town of redwater?
Income, expenses, assets, and liabilities must be reported on the town of Redwater form.
Fill out your town of redwater online with pdfFiller!
pdfFiller is an end-to-end solution for managing, creating, and editing documents and forms in the cloud. Save time and hassle by preparing your tax forms online.

Town Of Redwater is not the form you're looking for?Search for another form here.
Relevant keywords
Related Forms
If you believe that this page should be taken down, please follow our DMCA take down process
here
.
This form may include fields for payment information. Data entered in these fields is not covered by PCI DSS compliance.