Get the free Minimal information for studies of extracellular vesicles ...
Show details
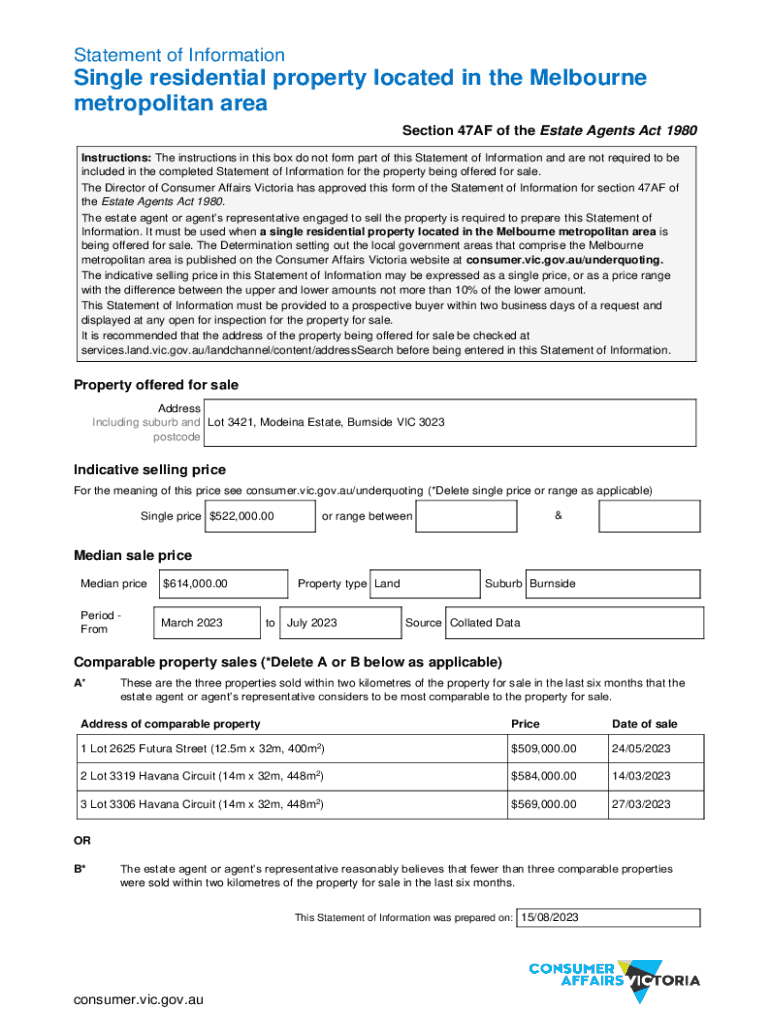
Statement of InformationSingle residential property located in the Melbourne metropolitan area Section 47AF of the Estate Agents Act 1980 Instructions: The instructions in this box do not form part
We are not affiliated with any brand or entity on this form
Get, Create, Make and Sign minimal information for studies
Edit your minimal information for studies form online
Type text, complete fillable fields, insert images, highlight or blackout data for discretion, add comments, and more.
Add your legally-binding signature
Draw or type your signature, upload a signature image, or capture it with your digital camera.
Share your form instantly
Email, fax, or share your minimal information for studies form via URL. You can also download, print, or export forms to your preferred cloud storage service.
Editing minimal information for studies online
Use the instructions below to start using our professional PDF editor:
1
Log in to your account. Start Free Trial and sign up a profile if you don't have one yet.
2
Prepare a file. Use the Add New button to start a new project. Then, using your device, upload your file to the system by importing it from internal mail, the cloud, or adding its URL.
3
Edit minimal information for studies. Add and replace text, insert new objects, rearrange pages, add watermarks and page numbers, and more. Click Done when you are finished editing and go to the Documents tab to merge, split, lock or unlock the file.
4
Get your file. When you find your file in the docs list, click on its name and choose how you want to save it. To get the PDF, you can save it, send an email with it, or move it to the cloud.
It's easier to work with documents with pdfFiller than you could have ever thought. You may try it out for yourself by signing up for an account.
Uncompromising security for your PDF editing and eSignature needs
Your private information is safe with pdfFiller. We employ end-to-end encryption, secure cloud storage, and advanced access control to protect your documents and maintain regulatory compliance.
How to fill out minimal information for studies
How to fill out minimal information for studies
01
Start by identifying the essential information required for the study.
02
Fill in the basic details such as title, author, abstract, keywords, and introduction.
03
Provide a brief overview of the methodology used in the study.
04
Include the main findings and results of the research.
05
Conclude with a summary and implications of the study.
Who needs minimal information for studies?
01
Researchers conducting preliminary or exploratory studies.
02
Students working on academic projects or assignments.
03
Authors submitting articles for publication in scholarly journals.
Fill
form
: Try Risk Free
For pdfFiller’s FAQs
Below is a list of the most common customer questions. If you can’t find an answer to your question, please don’t hesitate to reach out to us.
How can I manage my minimal information for studies directly from Gmail?
pdfFiller’s add-on for Gmail enables you to create, edit, fill out and eSign your minimal information for studies and any other documents you receive right in your inbox. Visit Google Workspace Marketplace and install pdfFiller for Gmail. Get rid of time-consuming steps and manage your documents and eSignatures effortlessly.
How do I edit minimal information for studies in Chrome?
Install the pdfFiller Google Chrome Extension in your web browser to begin editing minimal information for studies and other documents right from a Google search page. When you examine your documents in Chrome, you may make changes to them. With pdfFiller, you can create fillable documents and update existing PDFs from any internet-connected device.
How do I fill out the minimal information for studies form on my smartphone?
Use the pdfFiller mobile app to fill out and sign minimal information for studies. Visit our website (https://edit-pdf-ios-android.pdffiller.com/) to learn more about our mobile applications, their features, and how to get started.
What is minimal information for studies?
Minimal information for studies includes key details and data related to a research study, typically required for submission to regulatory bodies or publication.
Who is required to file minimal information for studies?
Researchers or organizations conducting the study are typically required to file minimal information for studies.
How to fill out minimal information for studies?
Minimal information for studies can be filled out by providing accurate and detailed information about the study design, methods, results, and conclusions.
What is the purpose of minimal information for studies?
The purpose of minimal information for studies is to ensure transparency, reproducibility, and proper documentation of research studies.
What information must be reported on minimal information for studies?
Information such as study objectives, methodology, results, conflicts of interest, funding sources, and ethical considerations must be reported on minimal information for studies.
Fill out your minimal information for studies online with pdfFiller!
pdfFiller is an end-to-end solution for managing, creating, and editing documents and forms in the cloud. Save time and hassle by preparing your tax forms online.
Minimal Information For Studies is not the form you're looking for?Search for another form here.
Relevant keywords
Related Forms
If you believe that this page should be taken down, please follow our DMCA take down process
here
.
This form may include fields for payment information. Data entered in these fields is not covered by PCI DSS compliance.