
Get the free Building Control Regularisation Application Form. Building Control Regularisation Ap...
Show details
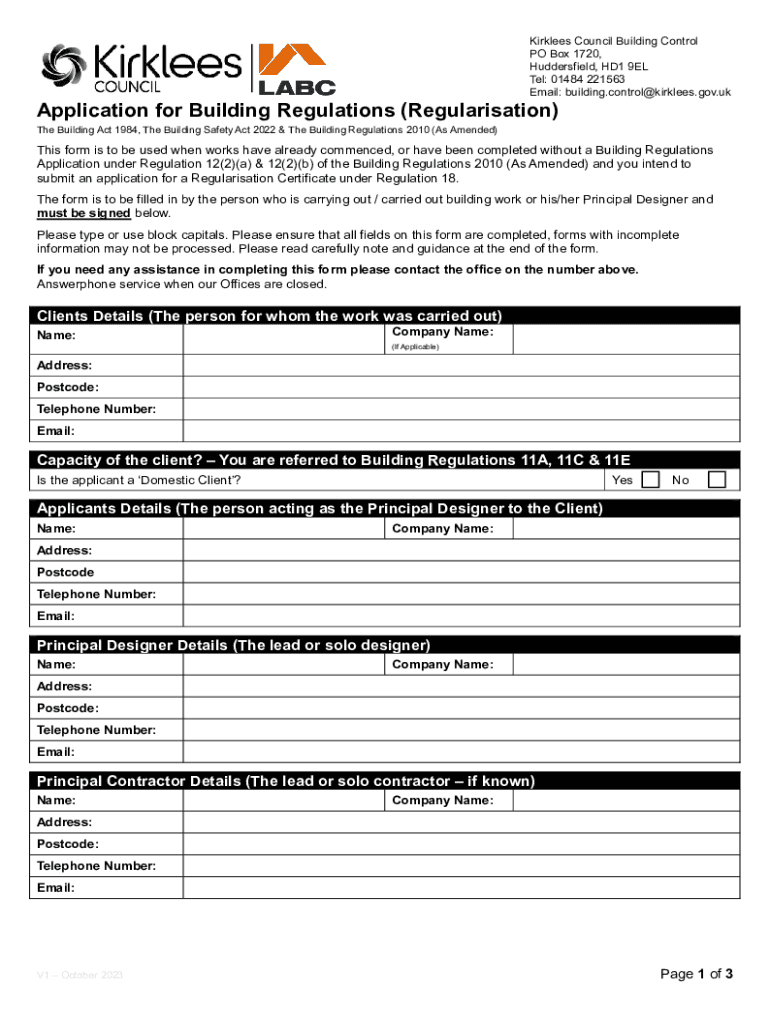
Kirklees Council Building Control PO Box 1720, Huddersfield, HD1 9EL Tel: 01484 221563 Email: building.control@kirklees.gov.ukIJ Kirklees II\' LAB COUNCILApplication for Building Regulations (Regularization)
We are not affiliated with any brand or entity on this form
Get, Create, Make and Sign building control regularisation application

Edit your building control regularisation application form online
Type text, complete fillable fields, insert images, highlight or blackout data for discretion, add comments, and more.

Add your legally-binding signature
Draw or type your signature, upload a signature image, or capture it with your digital camera.

Share your form instantly
Email, fax, or share your building control regularisation application form via URL. You can also download, print, or export forms to your preferred cloud storage service.
Editing building control regularisation application online
In order to make advantage of the professional PDF editor, follow these steps below:
1
Log in. Click Start Free Trial and create a profile if necessary.
2
Prepare a file. Use the Add New button. Then upload your file to the system from your device, importing it from internal mail, the cloud, or by adding its URL.
3
Edit building control regularisation application. Replace text, adding objects, rearranging pages, and more. Then select the Documents tab to combine, divide, lock or unlock the file.
4
Save your file. Select it from your records list. Then, click the right toolbar and select one of the various exporting options: save in numerous formats, download as PDF, email, or cloud.
Dealing with documents is always simple with pdfFiller.
Uncompromising security for your PDF editing and eSignature needs
Your private information is safe with pdfFiller. We employ end-to-end encryption, secure cloud storage, and advanced access control to protect your documents and maintain regulatory compliance.
How to fill out building control regularisation application

How to fill out building control regularisation application
01
Obtain the building control regularisation application form from your local council.
02
Fill out all the necessary details on the application form, including details of the building work that needs to be regularized.
03
Provide any relevant documents such as plans, drawings, and certificates that support the application.
04
Pay the required fee for the application (if applicable).
05
Submit the completed application form and supporting documents to the local council for review.
Who needs building control regularisation application?
01
Property owners who have carried out building work without obtaining the necessary building regulations approval need building control regularisation application.
02
Individuals who have purchased a property with previously unapproved building work may also need to apply for building control regularisation.
Fill
form
: Try Risk Free
For pdfFiller’s FAQs
Below is a list of the most common customer questions. If you can’t find an answer to your question, please don’t hesitate to reach out to us.
How can I modify building control regularisation application without leaving Google Drive?
Using pdfFiller with Google Docs allows you to create, amend, and sign documents straight from your Google Drive. The add-on turns your building control regularisation application into a dynamic fillable form that you can manage and eSign from anywhere.
Can I sign the building control regularisation application electronically in Chrome?
You certainly can. You get not just a feature-rich PDF editor and fillable form builder with pdfFiller, but also a robust e-signature solution that you can add right to your Chrome browser. You may use our addon to produce a legally enforceable eSignature by typing, sketching, or photographing your signature with your webcam. Choose your preferred method and eSign your building control regularisation application in minutes.
How do I fill out the building control regularisation application form on my smartphone?
Use the pdfFiller mobile app to fill out and sign building control regularisation application on your phone or tablet. Visit our website to learn more about our mobile apps, how they work, and how to get started.
What is building control regularisation application?
Building control regularisation application is a process to legalize unapproved building work that has already been completed.
Who is required to file building control regularisation application?
Property owners or developers who have undertaken building work without obtaining the necessary approval are required to file a building control regularisation application.
How to fill out building control regularisation application?
To fill out a building control regularisation application, the applicant must provide details of the unapproved building work, including drawings, specifications, and any supporting documentation.
What is the purpose of building control regularisation application?
The purpose of a building control regularisation application is to ensure that unapproved building work meets the required standards and regulations set by the local authority.
What information must be reported on building control regularisation application?
Information that must be reported on a building control regularisation application includes details of the unapproved building work, the reasons for not obtaining approval initially, and any modifications made to comply with building regulations.
Fill out your building control regularisation application online with pdfFiller!
pdfFiller is an end-to-end solution for managing, creating, and editing documents and forms in the cloud. Save time and hassle by preparing your tax forms online.

Building Control Regularisation Application is not the form you're looking for?Search for another form here.
Relevant keywords
Related Forms
If you believe that this page should be taken down, please follow our DMCA take down process
here
.
This form may include fields for payment information. Data entered in these fields is not covered by PCI DSS compliance.