Get the free non-destructive inspection services in Drayton Valley, AB
Show details
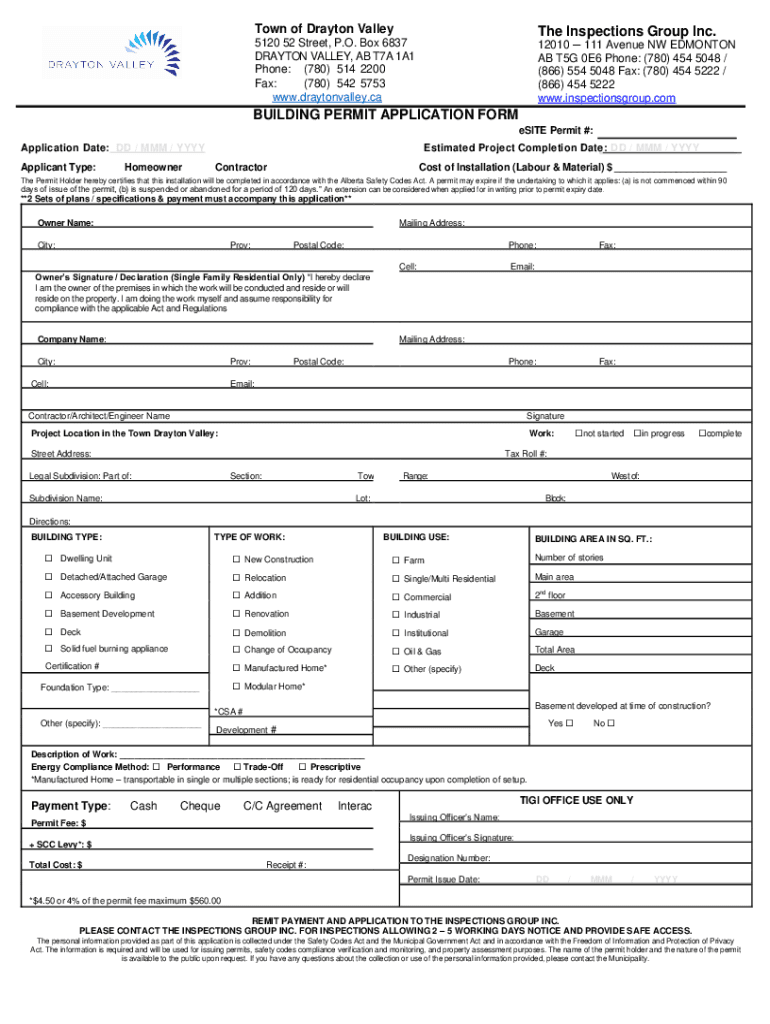
Town of Dayton Valuate Inspections Group Inc. 12010 111 Avenue NW EDMONTON5120 52 Street, P.O. Box 6837 DAYTON VALLEY, AB T7A 1A1 Phone: (780) 514 2200 Fax: (780) 542 5753 www.draytonvalley.caAB T5G
We are not affiliated with any brand or entity on this form
Get, Create, Make and Sign non-destructive inspection services in
Edit your non-destructive inspection services in form online
Type text, complete fillable fields, insert images, highlight or blackout data for discretion, add comments, and more.
Add your legally-binding signature
Draw or type your signature, upload a signature image, or capture it with your digital camera.
Share your form instantly
Email, fax, or share your non-destructive inspection services in form via URL. You can also download, print, or export forms to your preferred cloud storage service.
Editing non-destructive inspection services in online
Follow the guidelines below to benefit from a competent PDF editor:
1
Sign into your account. If you don't have a profile yet, click Start Free Trial and sign up for one.
2
Simply add a document. Select Add New from your Dashboard and import a file into the system by uploading it from your device or importing it via the cloud, online, or internal mail. Then click Begin editing.
3
Edit non-destructive inspection services in. Replace text, adding objects, rearranging pages, and more. Then select the Documents tab to combine, divide, lock or unlock the file.
4
Get your file. When you find your file in the docs list, click on its name and choose how you want to save it. To get the PDF, you can save it, send an email with it, or move it to the cloud.
pdfFiller makes dealing with documents a breeze. Create an account to find out!
Uncompromising security for your PDF editing and eSignature needs
Your private information is safe with pdfFiller. We employ end-to-end encryption, secure cloud storage, and advanced access control to protect your documents and maintain regulatory compliance.
How to fill out non-destructive inspection services in
How to fill out non-destructive inspection services in
01
Start by gathering all the necessary information and documentation related to the non-destructive inspection services.
02
Identify the specific areas or components that require inspection and determine the appropriate inspection methods.
03
Ensure that you have the necessary equipment and tools for the inspection process.
04
Follow the established safety guidelines and procedures to protect yourself and others during the inspection.
05
Carefully examine the components and perform the required non-destructive tests according to the inspection standards.
06
Record and document the inspection results accurately, noting any defects or issues identified.
07
Prepare a comprehensive report summarizing the inspection findings and recommendations for further action, if needed.
08
Communicate the inspection results to the relevant stakeholders and address any questions or concerns they may have.
09
Ensure proper maintenance and calibration of the inspection equipment for future use.
10
Continuously improve your knowledge and expertise in non-destructive inspection techniques to provide better services in the future.
Who needs non-destructive inspection services in?
01
Manufacturing companies that produce critical components or equipment requiring thorough inspection.
02
Aviation, aerospace, and automotive industries where safety and reliability are of utmost importance.
03
Oil and gas companies for inspecting pipelines, storage tanks, and other infrastructure.
04
Construction companies ensuring quality control and safety in buildings and structures.
05
Power generation companies for inspecting turbines, boilers, and other critical assets.
06
Quality control departments of various industries that need to ensure the reliability and durability of their products.
07
Engineering firms and consultants involved in evaluating the structural integrity of different systems.
08
Maintenance and repair services providers that need to identify any potential defects or failures in equipment.
09
Regulatory bodies responsible for enforcing safety standards and regulations in different industries.
10
Research institutions and academic organizations studying and developing non-destructive inspection techniques.
Fill
form
: Try Risk Free
For pdfFiller’s FAQs
Below is a list of the most common customer questions. If you can’t find an answer to your question, please don’t hesitate to reach out to us.
Can I create an electronic signature for the non-destructive inspection services in in Chrome?
Yes. By adding the solution to your Chrome browser, you can use pdfFiller to eSign documents and enjoy all of the features of the PDF editor in one place. Use the extension to create a legally-binding eSignature by drawing it, typing it, or uploading a picture of your handwritten signature. Whatever you choose, you will be able to eSign your non-destructive inspection services in in seconds.
Can I create an electronic signature for signing my non-destructive inspection services in in Gmail?
Use pdfFiller's Gmail add-on to upload, type, or draw a signature. Your non-destructive inspection services in and other papers may be signed using pdfFiller. Register for a free account to preserve signed papers and signatures.
How can I edit non-destructive inspection services in on a smartphone?
The easiest way to edit documents on a mobile device is using pdfFiller’s mobile-native apps for iOS and Android. You can download those from the Apple Store and Google Play, respectively. You can learn more about the apps here. Install and log in to the application to start editing non-destructive inspection services in.
What is non-destructive inspection services in?
Non-destructive inspection services refer to techniques used to evaluate the properties of a material, component, or assembly without causing damage. Common methods include ultrasonic testing, radiographic testing, magnetic particle testing, and dye penetrant testing.
Who is required to file non-destructive inspection services in?
Companies or organizations involved in manufacturing, construction, and maintenance of critical components that require assurance of their integrity and quality are typically required to file for non-destructive inspection services.
How to fill out non-destructive inspection services in?
To fill out non-destructive inspection services, one must complete relevant documentation that includes the type of inspection method used, details of the subject being inspected, results of the inspection, and any anomalies found during the process.
What is the purpose of non-destructive inspection services in?
The purpose of non-destructive inspection services is to ensure the safety, reliability, and longevity of structures and components by identifying defects or irregularities without compromising their integrity.
What information must be reported on non-destructive inspection services in?
The information that must be reported includes the type of inspection performed, the methods used, findings, any defects identified, evaluations made, and recommendations for further actions if necessary.
Fill out your non-destructive inspection services in online with pdfFiller!
pdfFiller is an end-to-end solution for managing, creating, and editing documents and forms in the cloud. Save time and hassle by preparing your tax forms online.
Non-Destructive Inspection Services In is not the form you're looking for?Search for another form here.
Relevant keywords
Related Forms
If you believe that this page should be taken down, please follow our DMCA take down process
here
.
This form may include fields for payment information. Data entered in these fields is not covered by PCI DSS compliance.