Get the free Yakima Planning Department, 129 N 2nd St, ...
Show details
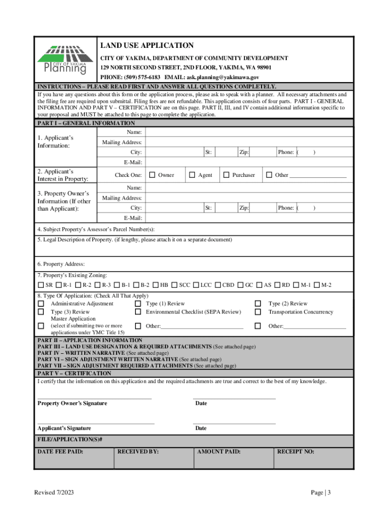
City of YakimaAdministrative Adjustment Application PacketCity of Yakima, Planning Division 129 North 2nd Street, 2nd Floor, Yakima, WA 98901 Phone#: (509) 5756183 Email: ask.planning@yakimawa.gov
We are not affiliated with any brand or entity on this form
Get, Create, Make and Sign yakima planning department 129
Edit your yakima planning department 129 form online
Type text, complete fillable fields, insert images, highlight or blackout data for discretion, add comments, and more.
Add your legally-binding signature
Draw or type your signature, upload a signature image, or capture it with your digital camera.
Share your form instantly
Email, fax, or share your yakima planning department 129 form via URL. You can also download, print, or export forms to your preferred cloud storage service.
Editing yakima planning department 129 online
Follow the guidelines below to benefit from the PDF editor's expertise:
1
Log into your account. In case you're new, it's time to start your free trial.
2
Prepare a file. Use the Add New button to start a new project. Then, using your device, upload your file to the system by importing it from internal mail, the cloud, or adding its URL.
3
Edit yakima planning department 129. Rearrange and rotate pages, insert new and alter existing texts, add new objects, and take advantage of other helpful tools. Click Done to apply changes and return to your Dashboard. Go to the Documents tab to access merging, splitting, locking, or unlocking functions.
4
Save your file. Choose it from the list of records. Then, shift the pointer to the right toolbar and select one of the several exporting methods: save it in multiple formats, download it as a PDF, email it, or save it to the cloud.
It's easier to work with documents with pdfFiller than you can have ever thought. You may try it out for yourself by signing up for an account.
Uncompromising security for your PDF editing and eSignature needs
Your private information is safe with pdfFiller. We employ end-to-end encryption, secure cloud storage, and advanced access control to protect your documents and maintain regulatory compliance.
How to fill out yakima planning department 129
How to fill out yakima planning department 129
01
Collect all the necessary documents and information required to fill out the Yakima Planning Department 129 form.
02
Start by entering your personal information such as your name, address, contact details, and any other required identification information.
03
Provide the relevant project details such as the address and description of the property or land for which the form is being filled.
04
Fill out all the required sections of the form accurately and completely. Make sure to read the instructions carefully to avoid any errors.
05
If there are any additional documents or attachments required, make sure to include them along with the form.
06
Double-check all the information entered to ensure its accuracy and completeness.
07
Sign and date the form as required.
08
Submit the filled-out Yakima Planning Department 129 form along with any accompanying documents to the designated department or address.
09
Keep a copy of the filled-out form and any other related documents for your records.
Who needs yakima planning department 129?
01
Anyone who is planning to undertake a construction or development project in the Yakima area may need to interact with the Yakima Planning Department 129.
02
Property owners, architects, contractors, developers, and individuals who require permits or approvals for their building projects would need to consult and submit the Yakima Planning Department 129 form.
03
Those who need to comply with zoning regulations, land use requirements, or any other planning-related matters may also need to engage with the Yakima Planning Department 129.
Fill
form
: Try Risk Free
For pdfFiller’s FAQs
Below is a list of the most common customer questions. If you can’t find an answer to your question, please don’t hesitate to reach out to us.
How do I make edits in yakima planning department 129 without leaving Chrome?
Install the pdfFiller Google Chrome Extension in your web browser to begin editing yakima planning department 129 and other documents right from a Google search page. When you examine your documents in Chrome, you may make changes to them. With pdfFiller, you can create fillable documents and update existing PDFs from any internet-connected device.
Can I edit yakima planning department 129 on an iOS device?
You certainly can. You can quickly edit, distribute, and sign yakima planning department 129 on your iOS device with the pdfFiller mobile app. Purchase it from the Apple Store and install it in seconds. The program is free, but in order to purchase a subscription or activate a free trial, you must first establish an account.
Can I edit yakima planning department 129 on an Android device?
You can. With the pdfFiller Android app, you can edit, sign, and distribute yakima planning department 129 from anywhere with an internet connection. Take use of the app's mobile capabilities.
What is yakima planning department 129?
Yakima Planning Department 129 is a form or document utilized by the Yakima City Planning Department for the purpose of managing planning and zoning applications within the city.
Who is required to file yakima planning department 129?
Individuals or entities seeking to obtain permits, variances, or any planning approvals from the Yakima Planning Department are required to file Yakima Planning Department 129.
How to fill out yakima planning department 129?
To fill out Yakima Planning Department 129, applicants should provide accurate information regarding their project details, personal or business identification, and any required supporting documents as specified in the form instructions.
What is the purpose of yakima planning department 129?
The purpose of Yakima Planning Department 129 is to collect essential information from applicants to facilitate the evaluation of planning and zoning requests, ensuring compliance with local regulations.
What information must be reported on yakima planning department 129?
The form typically requires details such as the applicant's name and contact information, project address, description of the proposed project, and any existing site conditions.
Fill out your yakima planning department 129 online with pdfFiller!
pdfFiller is an end-to-end solution for managing, creating, and editing documents and forms in the cloud. Save time and hassle by preparing your tax forms online.
Yakima Planning Department 129 is not the form you're looking for?Search for another form here.
Relevant keywords
Related Forms
If you believe that this page should be taken down, please follow our DMCA take down process
here
.
This form may include fields for payment information. Data entered in these fields is not covered by PCI DSS compliance.