
Get the free Including suburb and 6/200 Scoresby Rd Boronia 3155
Show details
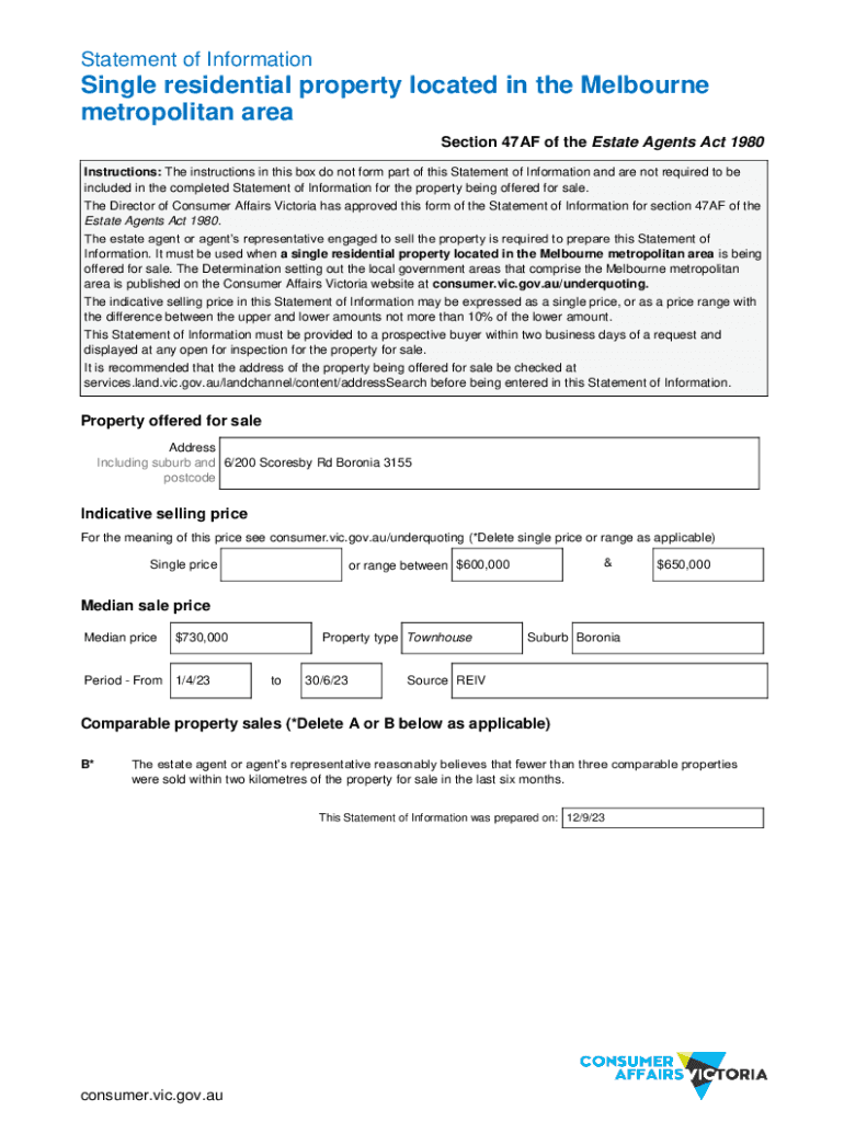
Statement of InformationSingle residential property located in the Melbourne metropolitan area Section 47AF of the Estate Agents Act 1980 Instructions: The instructions in this box do not form part
We are not affiliated with any brand or entity on this form
Get, Create, Make and Sign including suburb and 6200

Edit your including suburb and 6200 form online
Type text, complete fillable fields, insert images, highlight or blackout data for discretion, add comments, and more.

Add your legally-binding signature
Draw or type your signature, upload a signature image, or capture it with your digital camera.

Share your form instantly
Email, fax, or share your including suburb and 6200 form via URL. You can also download, print, or export forms to your preferred cloud storage service.
Editing including suburb and 6200 online
To use our professional PDF editor, follow these steps:
1
Sign into your account. It's time to start your free trial.
2
Simply add a document. Select Add New from your Dashboard and import a file into the system by uploading it from your device or importing it via the cloud, online, or internal mail. Then click Begin editing.
3
Edit including suburb and 6200. Rearrange and rotate pages, add and edit text, and use additional tools. To save changes and return to your Dashboard, click Done. The Documents tab allows you to merge, divide, lock, or unlock files.
4
Save your file. Select it from your records list. Then, click the right toolbar and select one of the various exporting options: save in numerous formats, download as PDF, email, or cloud.
pdfFiller makes working with documents easier than you could ever imagine. Register for an account and see for yourself!
Uncompromising security for your PDF editing and eSignature needs
Your private information is safe with pdfFiller. We employ end-to-end encryption, secure cloud storage, and advanced access control to protect your documents and maintain regulatory compliance.
How to fill out including suburb and 6200

How to fill out including suburb and 6200
01
To fill out including suburb and 6200, follow these steps:
02
Start by writing the name of the suburb in the designated field.
03
Then, enter the postal code '6200' in the appropriate box.
04
Double-check the accuracy of the filled information.
05
Proceed with submitting the form as per the given instructions.
Who needs including suburb and 6200?
01
Anyone residing in the suburb with the postal code '6200' may need to fill out the form including these details.
02
This can include residents, businesses, organizations, or individuals who require accurate identification of their location within the specified suburb.
Fill
form
: Try Risk Free
For pdfFiller’s FAQs
Below is a list of the most common customer questions. If you can’t find an answer to your question, please don’t hesitate to reach out to us.
How do I make edits in including suburb and 6200 without leaving Chrome?
Install the pdfFiller Google Chrome Extension in your web browser to begin editing including suburb and 6200 and other documents right from a Google search page. When you examine your documents in Chrome, you may make changes to them. With pdfFiller, you can create fillable documents and update existing PDFs from any internet-connected device.
Can I sign the including suburb and 6200 electronically in Chrome?
You certainly can. You get not just a feature-rich PDF editor and fillable form builder with pdfFiller, but also a robust e-signature solution that you can add right to your Chrome browser. You may use our addon to produce a legally enforceable eSignature by typing, sketching, or photographing your signature with your webcam. Choose your preferred method and eSign your including suburb and 6200 in minutes.
Can I edit including suburb and 6200 on an iOS device?
Yes, you can. With the pdfFiller mobile app, you can instantly edit, share, and sign including suburb and 6200 on your iOS device. Get it at the Apple Store and install it in seconds. The application is free, but you will have to create an account to purchase a subscription or activate a free trial.
What is including suburb and 6200?
Including suburb and 6200 refers to a specific form or document used for reporting certain information related to property or taxation in a designated suburb area.
Who is required to file including suburb and 6200?
Individuals or entities that own property or conduct business activities within the specified suburb and are subject to local reporting requirements must file including suburb and 6200.
How to fill out including suburb and 6200?
To fill out including suburb and 6200, you need to provide personal information, property details, income earned in the suburb, and any other relevant financial data as specified in the instructions accompanying the form.
What is the purpose of including suburb and 6200?
The purpose of including suburb and 6200 is to ensure proper reporting for tax purposes, allowing local authorities to assess property values and related taxes efficiently.
What information must be reported on including suburb and 6200?
Information that must be reported includes property addresses, owner details, income generated from the property, any deductions, and compliance with local regulations.
Fill out your including suburb and 6200 online with pdfFiller!
pdfFiller is an end-to-end solution for managing, creating, and editing documents and forms in the cloud. Save time and hassle by preparing your tax forms online.

Including Suburb And 6200 is not the form you're looking for?Search for another form here.
Relevant keywords
Related Forms
If you believe that this page should be taken down, please follow our DMCA take down process
here
.
This form may include fields for payment information. Data entered in these fields is not covered by PCI DSS compliance.