Form preview

Get the free P-084 - 102 S Iowa - building - DT-052 - 92-00509

Get Form
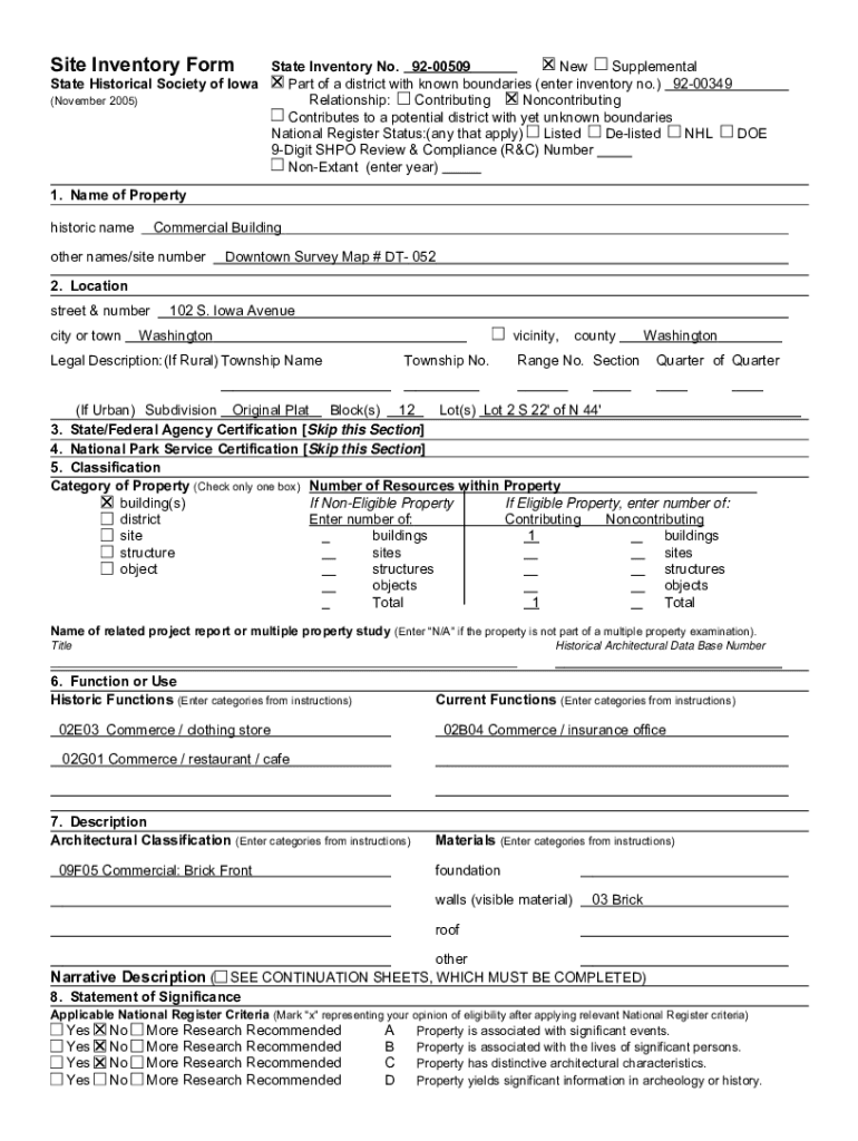
Site Inventory Form State Historical Society of Iowa (November 2005)State Inventory No. 9200509 New Supplemental Part of a district with known boundaries (enter inventory no.) 9200349 Relationship:
We are not affiliated with any brand or entity on this form

Get, Create, Make and Sign p-084 - 102 s

Edit
Edit your p-084 - 102 s form online
Type text, complete fillable fields, insert images, highlight or blackout data for discretion, add comments, and more.
Add
Add your legally-binding signature
Draw or type your signature, upload a signature image, or capture it with your digital camera.
Share
Share your form instantly
Email, fax, or share your p-084 - 102 s form via URL. You can also download, print, or export forms to your preferred cloud storage service.

How to edit p-084 - 102 s online

9.5
Ease of Setup
pdfFiller User Ratings on G2
9.0
Ease of Use
pdfFiller User Ratings on G2
In order to make advantage of the professional PDF editor, follow these steps:
1
Log into your account. It's time to start your free trial.
2
Upload a file. Select Add New on your Dashboard and upload a file from your device or import it from the cloud, online, or internal mail. Then click Edit.
3
Edit p-084 - 102 s. Rearrange and rotate pages, insert new and alter existing texts, add new objects, and take advantage of other helpful tools. Click Done to apply changes and return to your Dashboard. Go to the Documents tab to access merging, splitting, locking, or unlocking functions.
4
Get your file. Select the name of your file in the docs list and choose your preferred exporting method. You can download it as a PDF, save it in another format, send it by email, or transfer it to the cloud.
pdfFiller makes dealing with documents a breeze. Create an account to find out!

Uncompromising security for your PDF editing and eSignature needs

Your private information is safe with pdfFiller. We employ end-to-end encryption, secure cloud storage, and advanced access control to protect your documents and maintain regulatory compliance.
GDPR
AICPA SOC 2
PCI
HIPAA
CCPA
FDA

How to fill out p-084 - 102 s

Illustration

How to fill out p-084 - 102 s

01
To fill out p-084 - 102s, follow these steps:
02
Start by gathering all the necessary information and documents required to complete the form.
03
Begin by providing your personal information in the designated fields, such as your name, address, and contact details.
04
Proceed to fill out the specific sections of the form based on the instructions provided. This may include details regarding the purpose of the form, any related organizations or individuals, and any supporting documents or evidence.
05
Double-check all the information you have entered to ensure accuracy and completeness.
06
Sign and date the form as required.
07
Review the completed form one final time to make sure everything is filled out correctly and legibly.
08
Submit the filled-out form to the appropriate recipient or authority as instructed.

Who needs p-084 - 102 s?

01
p-084 - 102s is needed by individuals or organizations who are required to provide specific information or evidence for a particular purpose. The specific requirements may vary depending on the context, but generally, anyone who needs to submit this form should do so as mandated by the relevant governing body or entity.
Fill form : Try Risk Free
Users Most Likely To Recommend - Summer 2025
Grid Leader in Small-Business - Summer 2025
High Performer - Summer 2025
Regional Leader - Summer 2025
Easiest To Do Business With - Summer 2025
Best Meets Requirements- Summer 2025
Rate the form
4.7
Satisfied
30 Votes

For pdfFiller’s FAQs

Below is a list of the most common customer questions. If you can’t find an answer to your question, please don’t hesitate to reach out to us.

The editing procedure is simple with pdfFiller. Open your p-084 - 102 s in the editor. You may also add photos, draw arrows and lines, insert sticky notes and text boxes, and more.
You can. With pdfFiller, you get a strong e-signature solution built right into your Chrome browser. Using our addon, you may produce a legally enforceable eSignature by typing, sketching, or photographing it. Choose your preferred method and eSign in minutes.
Complete p-084 - 102 s and other documents on your Android device with the pdfFiller app. The software allows you to modify information, eSign, annotate, and share files. You may view your papers from anywhere with an internet connection.
The p-084 - 102 s is a specific tax form used for reporting certain financial information to the tax authorities.
Individuals or entities that meet specific financial thresholds or criteria set by the tax authorities are required to file p-084 - 102 s.
To fill out p-084 - 102 s, gather the required financial documents, follow the instructions provided with the form, accurately enter income and deduction information, and review for completeness before submission.
The purpose of p-084 - 102 s is to collect necessary tax information for assessment and compliance by the tax authorities.
Information to be reported on p-084 - 102 s typically includes total income, deductions, credits, and other pertinent financial data.
Fill out your p-084 - 102 s online with pdfFiller!

pdfFiller is an end-to-end solution for managing, creating, and editing documents and forms in the cloud. Save time and hassle by preparing your tax forms online.

Get started now
Form preview
If you believe that this page should be taken down, please follow our DMCA take down process here .
This form may include fields for payment information. Data entered in these fields is not covered by PCI DSS compliance.