
Get the free Town of Milton Phosphorus Control Plan
Show details
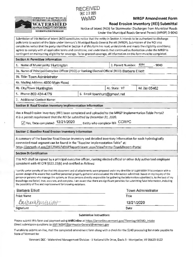
RECEIVED
DEC 23 2020
VERMONT DEPARTMENT OJ!WsMDMANAGEMENT DIVISIONNotice of Intent (NOi) for Stormwater Discharges from Municipal RoadsWl;;i;;TI;;
SfORMWATER PROGRAMMRGP Amendment Form
Road Erosion
We are not affiliated with any brand or entity on this form
Get, Create, Make and Sign town of milton phosphorus

Edit your town of milton phosphorus form online
Type text, complete fillable fields, insert images, highlight or blackout data for discretion, add comments, and more.

Add your legally-binding signature
Draw or type your signature, upload a signature image, or capture it with your digital camera.

Share your form instantly
Email, fax, or share your town of milton phosphorus form via URL. You can also download, print, or export forms to your preferred cloud storage service.
Editing town of milton phosphorus online
Use the instructions below to start using our professional PDF editor:
1
Register the account. Begin by clicking Start Free Trial and create a profile if you are a new user.
2
Prepare a file. Use the Add New button. Then upload your file to the system from your device, importing it from internal mail, the cloud, or by adding its URL.
3
Edit town of milton phosphorus. Rearrange and rotate pages, insert new and alter existing texts, add new objects, and take advantage of other helpful tools. Click Done to apply changes and return to your Dashboard. Go to the Documents tab to access merging, splitting, locking, or unlocking functions.
4
Save your file. Choose it from the list of records. Then, shift the pointer to the right toolbar and select one of the several exporting methods: save it in multiple formats, download it as a PDF, email it, or save it to the cloud.
Dealing with documents is always simple with pdfFiller.
Uncompromising security for your PDF editing and eSignature needs
Your private information is safe with pdfFiller. We employ end-to-end encryption, secure cloud storage, and advanced access control to protect your documents and maintain regulatory compliance.
How to fill out town of milton phosphorus

How to fill out town of milton phosphorus
01
To fill out the Town of Milton phosphorus form, follow these steps:
02
Obtain the Town of Milton phosphorus form from the appropriate department or website.
03
Fill in your personal information, such as name, address, and contact details.
04
Provide the necessary details about the project or activity that requires phosphorus usage.
05
Describe the specific amount or quantity of phosphorus you plan to use or discharge.
06
Include any supporting documents or permits required for the phosphorus usage.
07
Review the completed form for accuracy and make any necessary corrections.
08
Submit the filled-out form to the designated department or authority.
09
Keep a copy of the filled-out form for your records.
Who needs town of milton phosphorus?
01
The Town of Milton phosphorus form may be needed by individuals, businesses, or organizations that are involved in activities or projects that require the usage or discharge of phosphorus.
02
This may include but is not limited to:
03
- Farmers or agricultural businesses using phosphorus-based fertilizers.
04
- Industries or facilities using phosphorus in their manufacturing processes.
05
- Construction companies or contractors working on projects that involve phosphorus-based materials.
06
- Municipalities or public works departments planning phosphorus-related activities.
07
- Researchers or scientists conducting studies or experiments involving phosphorus.
08
It is important to consult with the specific regulations or guidelines of the Town of Milton to determine if the phosphorus form is required for your particular situation.
Fill
form
: Try Risk Free
For pdfFiller’s FAQs
Below is a list of the most common customer questions. If you can’t find an answer to your question, please don’t hesitate to reach out to us.
How can I send town of milton phosphorus to be eSigned by others?
Once you are ready to share your town of milton phosphorus, you can easily send it to others and get the eSigned document back just as quickly. Share your PDF by email, fax, text message, or USPS mail, or notarize it online. You can do all of this without ever leaving your account.
How do I edit town of milton phosphorus online?
pdfFiller allows you to edit not only the content of your files, but also the quantity and sequence of the pages. Upload your town of milton phosphorus to the editor and make adjustments in a matter of seconds. Text in PDFs may be blacked out, typed in, and erased using the editor. You may also include photos, sticky notes, and text boxes, among other things.
How do I make edits in town of milton phosphorus without leaving Chrome?
Download and install the pdfFiller Google Chrome Extension to your browser to edit, fill out, and eSign your town of milton phosphorus, which you can open in the editor with a single click from a Google search page. Fillable documents may be executed from any internet-connected device without leaving Chrome.
What is town of milton phosphorus?
The Town of Milton Phosphorus refers to the regulations and guidelines established by the Town of Milton regarding the management and reporting of phosphorus usage and runoff to protect local water bodies from nutrient pollution.
Who is required to file town of milton phosphorus?
Individuals and businesses that apply phosphorus-based fertilizers or other phosphorus-containing products in the Town of Milton are required to file the Town of Milton Phosphorus report.
How to fill out town of milton phosphorus?
To fill out the Town of Milton Phosphorus report, applicants must collect data on the type and amount of phosphorus applied, provide information about the property and land use, and submit the report by the designated deadline.
What is the purpose of town of milton phosphorus?
The purpose of the Town of Milton Phosphorus regulations is to minimize phosphorus runoff into waterways, thereby reducing the risk of algal blooms and improving water quality in the area.
What information must be reported on town of milton phosphorus?
The report must include information such as the amount of phosphorus applied, the type of products used, the purpose of application, and specific areas where the application occurred.
Fill out your town of milton phosphorus online with pdfFiller!
pdfFiller is an end-to-end solution for managing, creating, and editing documents and forms in the cloud. Save time and hassle by preparing your tax forms online.

Town Of Milton Phosphorus is not the form you're looking for?Search for another form here.
Relevant keywords
Related Forms
If you believe that this page should be taken down, please follow our DMCA take down process
here
.
This form may include fields for payment information. Data entered in these fields is not covered by PCI DSS compliance.