
Get the free x x 300 Meters 10 feet Flood Fringe
Show details
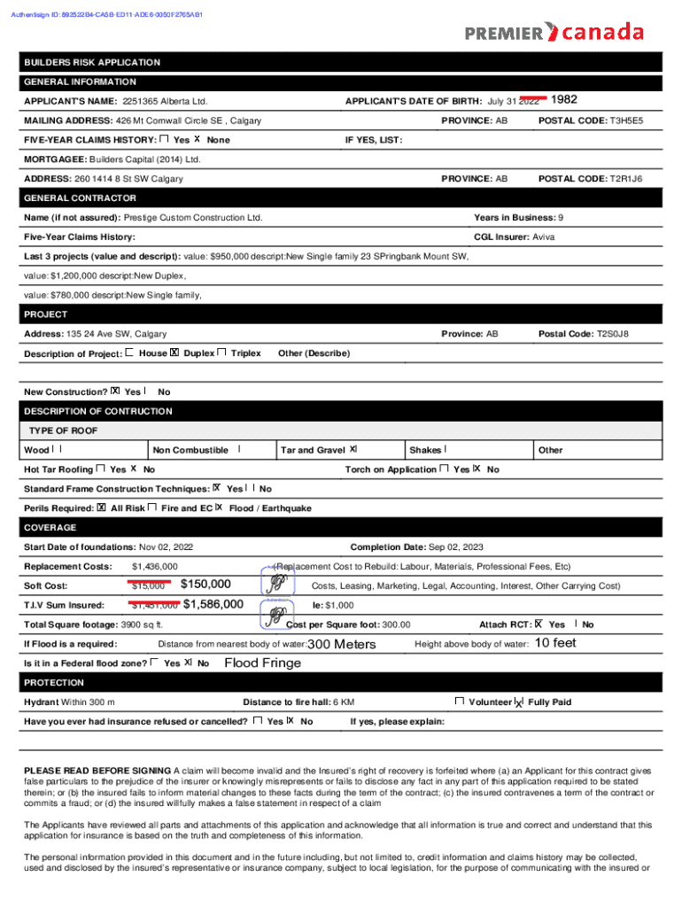
Authentisign ID: 892522B4CA5BED11ADE60050F2765AB1BUILDERS RISK APPLICATION GENERAL INFORMATION APPLICANT\'S NAME: 2251365 Alberta Ltd.APPLICANT\'S DATE OF BIRTH: July 31 2022MAILING ADDRESS: 426 Mt
We are not affiliated with any brand or entity on this form
Get, Create, Make and Sign x x 300 meters

Edit your x x 300 meters form online
Type text, complete fillable fields, insert images, highlight or blackout data for discretion, add comments, and more.

Add your legally-binding signature
Draw or type your signature, upload a signature image, or capture it with your digital camera.

Share your form instantly
Email, fax, or share your x x 300 meters form via URL. You can also download, print, or export forms to your preferred cloud storage service.
How to edit x x 300 meters online
Use the instructions below to start using our professional PDF editor:
1
Log in to account. Start Free Trial and sign up a profile if you don't have one yet.
2
Prepare a file. Use the Add New button. Then upload your file to the system from your device, importing it from internal mail, the cloud, or by adding its URL.
3
Edit x x 300 meters. Add and change text, add new objects, move pages, add watermarks and page numbers, and more. Then click Done when you're done editing and go to the Documents tab to merge or split the file. If you want to lock or unlock the file, click the lock or unlock button.
4
Get your file. Select the name of your file in the docs list and choose your preferred exporting method. You can download it as a PDF, save it in another format, send it by email, or transfer it to the cloud.
It's easier to work with documents with pdfFiller than you can have believed. Sign up for a free account to view.
Uncompromising security for your PDF editing and eSignature needs
Your private information is safe with pdfFiller. We employ end-to-end encryption, secure cloud storage, and advanced access control to protect your documents and maintain regulatory compliance.
How to fill out x x 300 meters

How to fill out x x 300 meters
01
Measure 300 meters starting from the designated point.
02
Place a marker or object at the end of the measured distance.
03
Repeat the process for the desired number of times or locations.
Who needs x x 300 meters?
01
Individuals or organizations involved in surveying, construction, or land measurement may need to fill out x x 300 meters.
Fill
form
: Try Risk Free
For pdfFiller’s FAQs
Below is a list of the most common customer questions. If you can’t find an answer to your question, please don’t hesitate to reach out to us.
How can I send x x 300 meters for eSignature?
x x 300 meters is ready when you're ready to send it out. With pdfFiller, you can send it out securely and get signatures in just a few clicks. PDFs can be sent to you by email, text message, fax, USPS mail, or notarized on your account. You can do this right from your account. Become a member right now and try it out for yourself!
Can I create an electronic signature for the x x 300 meters in Chrome?
Yes. By adding the solution to your Chrome browser, you can use pdfFiller to eSign documents and enjoy all of the features of the PDF editor in one place. Use the extension to create a legally-binding eSignature by drawing it, typing it, or uploading a picture of your handwritten signature. Whatever you choose, you will be able to eSign your x x 300 meters in seconds.
Can I edit x x 300 meters on an Android device?
You can make any changes to PDF files, such as x x 300 meters, with the help of the pdfFiller mobile app for Android. Edit, sign, and send documents right from your mobile device. Install the app and streamline your document management wherever you are.
What is x x 300 meters?
X x 300 meters refers to a measurement of length that equals 300 meters.
Who is required to file x x 300 meters?
Individuals or organizations who have conducted activities or projects related to x x 300 meters may be required to file reports.
How to fill out x x 300 meters?
To fill out x x 300 meters, you may need to provide details about the activities or projects conducted within the 300 meters area.
What is the purpose of x x 300 meters?
The purpose of x x 300 meters may be to assess the impact of activities or projects within that specific area.
What information must be reported on x x 300 meters?
Information such as the type of activities, duration, and any environmental impact within the 300 meters area may need to be reported.
Fill out your x x 300 meters online with pdfFiller!
pdfFiller is an end-to-end solution for managing, creating, and editing documents and forms in the cloud. Save time and hassle by preparing your tax forms online.

X X 300 Meters is not the form you're looking for?Search for another form here.
Relevant keywords
Related Forms
If you believe that this page should be taken down, please follow our DMCA take down process
here
.
This form may include fields for payment information. Data entered in these fields is not covered by PCI DSS compliance.