Get the free Situs Address 16500 S
Show details
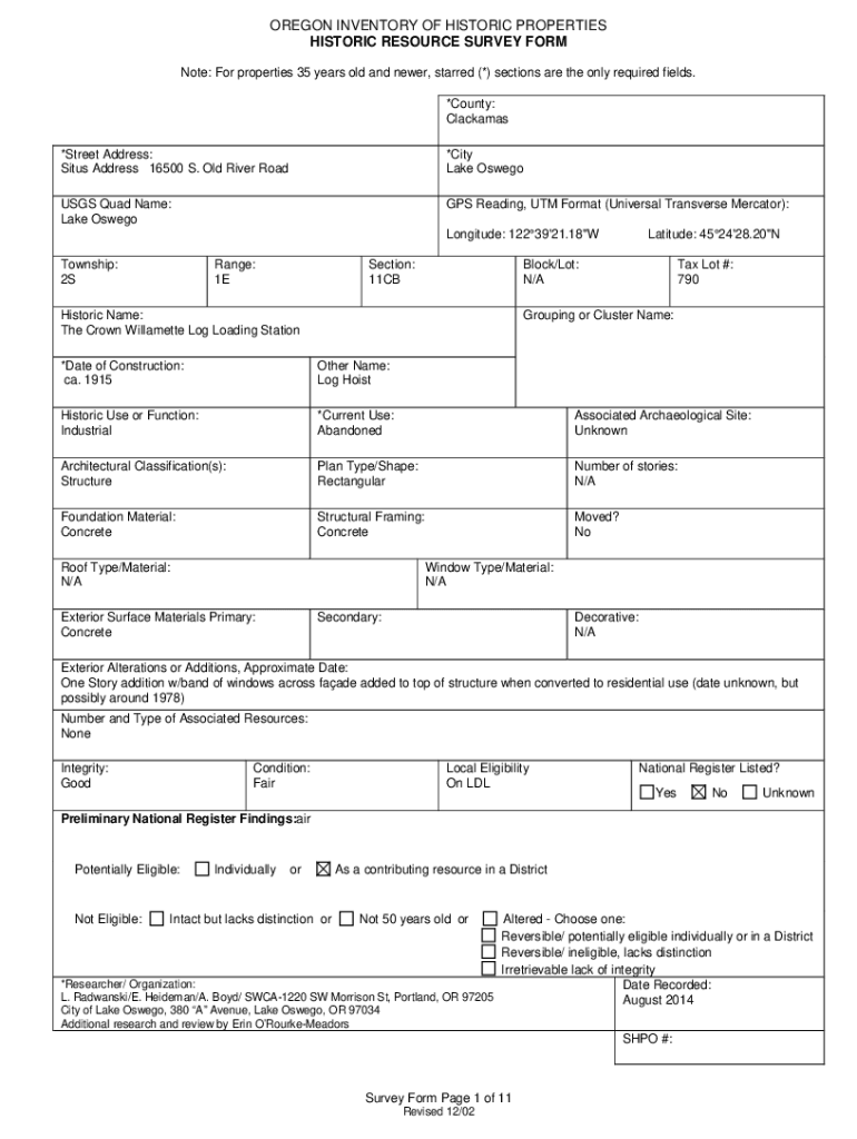
OREGON INVENTORY OF HISTORIC PROPERTIES HISTORIC RESOURCE SURVEY FORM Note: For properties 35 years old and newer, starred (*) sections are the only required fields. *County: Clackamas *Street Address:
We are not affiliated with any brand or entity on this form
Get, Create, Make and Sign situs address 16500 s
Edit your situs address 16500 s form online
Type text, complete fillable fields, insert images, highlight or blackout data for discretion, add comments, and more.
Add your legally-binding signature
Draw or type your signature, upload a signature image, or capture it with your digital camera.
Share your form instantly
Email, fax, or share your situs address 16500 s form via URL. You can also download, print, or export forms to your preferred cloud storage service.
Editing situs address 16500 s online
In order to make advantage of the professional PDF editor, follow these steps below:
1
Log in to account. Click on Start Free Trial and sign up a profile if you don't have one yet.
2
Prepare a file. Use the Add New button to start a new project. Then, using your device, upload your file to the system by importing it from internal mail, the cloud, or adding its URL.
3
Edit situs address 16500 s. Rearrange and rotate pages, insert new and alter existing texts, add new objects, and take advantage of other helpful tools. Click Done to apply changes and return to your Dashboard. Go to the Documents tab to access merging, splitting, locking, or unlocking functions.
4
Save your file. Select it from your list of records. Then, move your cursor to the right toolbar and choose one of the exporting options. You can save it in multiple formats, download it as a PDF, send it by email, or store it in the cloud, among other things.
With pdfFiller, dealing with documents is always straightforward. Try it right now!
Uncompromising security for your PDF editing and eSignature needs
Your private information is safe with pdfFiller. We employ end-to-end encryption, secure cloud storage, and advanced access control to protect your documents and maintain regulatory compliance.
How to fill out situs address 16500 s
How to fill out situs address 16500 s
01
To fill out the situs address 16500 s, follow these steps:
02
Start by writing the number '16500' in the appropriate field, indicating the street number.
03
Write the letter 's' next to it, indicating the street direction (in this case, 'south').
04
If there are any additional fields for apartment or unit numbers, fill those out as well.
05
Check for any other fields such as city, state, and ZIP code, and provide the relevant information.
06
Double-check all the filled-out information for accuracy and completeness.
07
Submit the form or document containing the situs address 16500 s.
Who needs situs address 16500 s?
01
The situs address 16500 s may be needed by anyone who requires accurate and specific location information.
02
Some potential users of this address could be:
03
- Individuals or businesses sending mail or packages to that location.
04
- Real estate agents or property managers handling properties with this address.
05
- Movers or delivery services needing to locate or deliver items to this address.
06
- Utility companies or service providers needing to identify the location for installation or maintenance purposes.
07
- Government agencies or departments requiring the address for official records or documentation.
08
- Emergency responders or dispatchers who need to locate or respond to incidents at this address.
Fill
form
: Try Risk Free
For pdfFiller’s FAQs
Below is a list of the most common customer questions. If you can’t find an answer to your question, please don’t hesitate to reach out to us.
How can I modify situs address 16500 s without leaving Google Drive?
By combining pdfFiller with Google Docs, you can generate fillable forms directly in Google Drive. No need to leave Google Drive to make edits or sign documents, including situs address 16500 s. Use pdfFiller's features in Google Drive to handle documents on any internet-connected device.
Where do I find situs address 16500 s?
The premium pdfFiller subscription gives you access to over 25M fillable templates that you can download, fill out, print, and sign. The library has state-specific situs address 16500 s and other forms. Find the template you need and change it using powerful tools.
How can I edit situs address 16500 s on a smartphone?
The pdfFiller apps for iOS and Android smartphones are available in the Apple Store and Google Play Store. You may also get the program at https://edit-pdf-ios-android.pdffiller.com/. Open the web app, sign in, and start editing situs address 16500 s.
What is situs address 16500 s?
Situs address 16500 S refers to a specific location designated for regulatory or administrative purposes, often used in tax and assessment documentation.
Who is required to file situs address 16500 s?
Individuals or entities that own property or have taxable business operations at the situs address 16500 S are typically required to file.
How to fill out situs address 16500 s?
To fill out the situs address 16500 S, one must provide the required details, including property descriptions, ownership information, and any applicable assessments, following the guidelines provided by the local authority.
What is the purpose of situs address 16500 s?
The purpose of the situs address 16500 S is to establish a clear and identifiable location for property assessment, tax calculations, and jurisdictional matters.
What information must be reported on situs address 16500 s?
Information that must be reported typically includes owner details, property characteristics, zoning information, and financial assessments related to the property.
Fill out your situs address 16500 s online with pdfFiller!
pdfFiller is an end-to-end solution for managing, creating, and editing documents and forms in the cloud. Save time and hassle by preparing your tax forms online.
Situs Address 16500 S is not the form you're looking for?Search for another form here.
Relevant keywords
Related Forms
If you believe that this page should be taken down, please follow our DMCA take down process
here
.
This form may include fields for payment information. Data entered in these fields is not covered by PCI DSS compliance.