
Get the free Swimming Pool Application Package
Show details
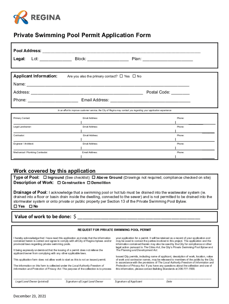
Clear FormPrivate Swimming Pool Permit Application Form Pool Address: ___ Legal:Lot: ___ Block: ___ Plan: ___Applicant Information:Are you also the primary contact? Yes NoName: ___ Address: ___ Postal
We are not affiliated with any brand or entity on this form
Get, Create, Make and Sign swimming pool application package

Edit your swimming pool application package form online
Type text, complete fillable fields, insert images, highlight or blackout data for discretion, add comments, and more.

Add your legally-binding signature
Draw or type your signature, upload a signature image, or capture it with your digital camera.

Share your form instantly
Email, fax, or share your swimming pool application package form via URL. You can also download, print, or export forms to your preferred cloud storage service.
Editing swimming pool application package online
Follow the steps below to take advantage of the professional PDF editor:
1
Register the account. Begin by clicking Start Free Trial and create a profile if you are a new user.
2
Prepare a file. Use the Add New button to start a new project. Then, using your device, upload your file to the system by importing it from internal mail, the cloud, or adding its URL.
3
Edit swimming pool application package. Rearrange and rotate pages, add and edit text, and use additional tools. To save changes and return to your Dashboard, click Done. The Documents tab allows you to merge, divide, lock, or unlock files.
4
Get your file. Select the name of your file in the docs list and choose your preferred exporting method. You can download it as a PDF, save it in another format, send it by email, or transfer it to the cloud.
It's easier to work with documents with pdfFiller than you could have believed. Sign up for a free account to view.
Uncompromising security for your PDF editing and eSignature needs
Your private information is safe with pdfFiller. We employ end-to-end encryption, secure cloud storage, and advanced access control to protect your documents and maintain regulatory compliance.
How to fill out swimming pool application package

How to fill out swimming pool application package
01
Start by obtaining an application package from the relevant authority or organization responsible for overseeing swimming pool construction and safety regulations.
02
Read the instructions and requirements carefully to ensure you have all the necessary documents and information.
03
Fill out the application form with accurate and complete information about the swimming pool project, including its location, dimensions, design, and intended use.
04
Attach any supporting documents required, such as property ownership proof, building plans, engineering drawings, and construction permits.
05
Provide any additional information or documents requested, such as water supply and drainage plans, fencing details, safety features, or environmental impact assessments.
06
Review the completed application package to verify that all information is correct and all necessary documents are included.
07
Submit the application package along with any applicable fees to the designated authority or organization.
08
Keep copies of all submitted documents for your records.
09
Await the approval or feedback from the authority, which may include inspections or further clarifications.
10
Once approved, follow any additional instructions provided and comply with all applicable regulations during the construction and maintenance of the swimming pool.
Who needs swimming pool application package?
01
The swimming pool application package is typically needed by individuals or organizations planning to construct a new swimming pool or renovate an existing one.
02
This includes homeowners, property developers, contractors, and any other parties involved in the design, construction, or maintenance of a swimming pool.
03
The exact requirements for the application package may vary depending on the local regulations and authorities responsible for overseeing swimming pool safety and construction standards.
Fill
form
: Try Risk Free
For pdfFiller’s FAQs
Below is a list of the most common customer questions. If you can’t find an answer to your question, please don’t hesitate to reach out to us.
How do I make changes in swimming pool application package?
pdfFiller not only lets you change the content of your files, but you can also change the number and order of pages. Upload your swimming pool application package to the editor and make any changes in a few clicks. The editor lets you black out, type, and erase text in PDFs. You can also add images, sticky notes, and text boxes, as well as many other things.
Can I create an electronic signature for signing my swimming pool application package in Gmail?
Use pdfFiller's Gmail add-on to upload, type, or draw a signature. Your swimming pool application package and other papers may be signed using pdfFiller. Register for a free account to preserve signed papers and signatures.
How can I fill out swimming pool application package on an iOS device?
In order to fill out documents on your iOS device, install the pdfFiller app. Create an account or log in to an existing one if you have a subscription to the service. Once the registration process is complete, upload your swimming pool application package. You now can take advantage of pdfFiller's advanced functionalities: adding fillable fields and eSigning documents, and accessing them from any device, wherever you are.
What is swimming pool application package?
The swimming pool application package is a set of forms and documents required for the approval and permitting of swimming pool construction or installation.
Who is required to file swimming pool application package?
Typically, homeowners, contractors, or builders intending to construct or install a swimming pool are required to file the swimming pool application package.
How to fill out swimming pool application package?
To fill out the swimming pool application package, gather necessary information such as the site plan, pool specifications, and any required permits, and complete the forms as directed by the local authority.
What is the purpose of swimming pool application package?
The purpose of the swimming pool application package is to ensure that the swimming pool project complies with local safety, zoning, and building regulations.
What information must be reported on swimming pool application package?
The information typically required includes the pool location, size, depth, construction materials, safety features, and compliance with local codes.
Fill out your swimming pool application package online with pdfFiller!
pdfFiller is an end-to-end solution for managing, creating, and editing documents and forms in the cloud. Save time and hassle by preparing your tax forms online.

Swimming Pool Application Package is not the form you're looking for?Search for another form here.
Relevant keywords
Related Forms
If you believe that this page should be taken down, please follow our DMCA take down process
here
.
This form may include fields for payment information. Data entered in these fields is not covered by PCI DSS compliance.