
Get the free Including suburb and Lot 8 Yellowgum Ave, Riddells Creek
Show details
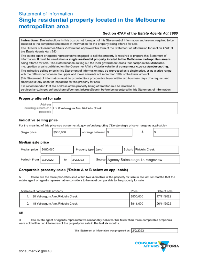
Statement of InformationSingle residential property located in the Melbourne metropolitan area Section 47AF of the Estate Agents Act 1980 Instructions: The instructions in this box do not form part
We are not affiliated with any brand or entity on this form
Get, Create, Make and Sign including suburb and lot

Edit your including suburb and lot form online
Type text, complete fillable fields, insert images, highlight or blackout data for discretion, add comments, and more.

Add your legally-binding signature
Draw or type your signature, upload a signature image, or capture it with your digital camera.

Share your form instantly
Email, fax, or share your including suburb and lot form via URL. You can also download, print, or export forms to your preferred cloud storage service.
How to edit including suburb and lot online
To use our professional PDF editor, follow these steps:
1
Log into your account. If you don't have a profile yet, click Start Free Trial and sign up for one.
2
Simply add a document. Select Add New from your Dashboard and import a file into the system by uploading it from your device or importing it via the cloud, online, or internal mail. Then click Begin editing.
3
Edit including suburb and lot. Rearrange and rotate pages, add and edit text, and use additional tools. To save changes and return to your Dashboard, click Done. The Documents tab allows you to merge, divide, lock, or unlock files.
4
Get your file. When you find your file in the docs list, click on its name and choose how you want to save it. To get the PDF, you can save it, send an email with it, or move it to the cloud.
pdfFiller makes working with documents easier than you could ever imagine. Try it for yourself by creating an account!
Uncompromising security for your PDF editing and eSignature needs
Your private information is safe with pdfFiller. We employ end-to-end encryption, secure cloud storage, and advanced access control to protect your documents and maintain regulatory compliance.
How to fill out including suburb and lot

How to fill out including suburb and lot
01
Start by obtaining the proper form for filling out including suburb and lot.
02
Begin by filling out your personal information such as name, address, and contact details.
03
Specify the suburb and lot number in the designated section on the form.
04
Double-check all the information provided for accuracy before submitting the form.
Who needs including suburb and lot?
01
Those who are involved in real estate transactions and need to specify the exact location of a property such as buyers, sellers, real estate agents, and land developers.
Fill
form
: Try Risk Free
For pdfFiller’s FAQs
Below is a list of the most common customer questions. If you can’t find an answer to your question, please don’t hesitate to reach out to us.
Where do I find including suburb and lot?
It's simple using pdfFiller, an online document management tool. Use our huge online form collection (over 25M fillable forms) to quickly discover the including suburb and lot. Open it immediately and start altering it with sophisticated capabilities.
How do I execute including suburb and lot online?
With pdfFiller, you may easily complete and sign including suburb and lot online. It lets you modify original PDF material, highlight, blackout, erase, and write text anywhere on a page, legally eSign your document, and do a lot more. Create a free account to handle professional papers online.
How do I edit including suburb and lot on an Android device?
The pdfFiller app for Android allows you to edit PDF files like including suburb and lot. Mobile document editing, signing, and sending. Install the app to ease document management anywhere.
What is including suburb and lot?
Including suburb and lot refers to a detailed designation of a property within a real estate or taxation context, indicating the specific suburb and the lot number associated with a property.
Who is required to file including suburb and lot?
Property owners and real estate developers are typically required to file including suburb and lot as part of the property registration and taxation processes.
How to fill out including suburb and lot?
To fill out including suburb and lot, one must provide the accurately completed property address, specifying the suburb and the unique lot number, typically found on property deeds or official records.
What is the purpose of including suburb and lot?
The purpose of including suburb and lot is to accurately identify and locate a piece of property for purposes such as taxation, property assessment, and legal documentation.
What information must be reported on including suburb and lot?
The information that must be reported includes the property's address, the suburb in which it is located, the lot number, and any associated property details relevant to taxes or ownership.
Fill out your including suburb and lot online with pdfFiller!
pdfFiller is an end-to-end solution for managing, creating, and editing documents and forms in the cloud. Save time and hassle by preparing your tax forms online.

Including Suburb And Lot is not the form you're looking for?Search for another form here.
Relevant keywords
Related Forms
If you believe that this page should be taken down, please follow our DMCA take down process
here
.
This form may include fields for payment information. Data entered in these fields is not covered by PCI DSS compliance.