Get the free Building Authority - Rogers City, Michigan
Show details
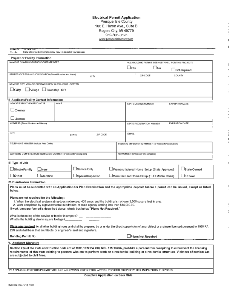
Electrical Permit ApplicationPresque Isle County 106 E. Huron Ave., Suite B Rogers City, Mi 49779 9893060525 www.presqueislecounty.orgFailure to provide information may result in denial of your request.I.
We are not affiliated with any brand or entity on this form
Get, Create, Make and Sign building authority - rogers
Edit your building authority - rogers form online
Type text, complete fillable fields, insert images, highlight or blackout data for discretion, add comments, and more.
Add your legally-binding signature
Draw or type your signature, upload a signature image, or capture it with your digital camera.
Share your form instantly
Email, fax, or share your building authority - rogers form via URL. You can also download, print, or export forms to your preferred cloud storage service.
Editing building authority - rogers online
In order to make advantage of the professional PDF editor, follow these steps below:
1
Log in to your account. Start Free Trial and register a profile if you don't have one.
2
Prepare a file. Use the Add New button. Then upload your file to the system from your device, importing it from internal mail, the cloud, or by adding its URL.
3
Edit building authority - rogers. Add and change text, add new objects, move pages, add watermarks and page numbers, and more. Then click Done when you're done editing and go to the Documents tab to merge or split the file. If you want to lock or unlock the file, click the lock or unlock button.
4
Save your file. Select it in the list of your records. Then, move the cursor to the right toolbar and choose one of the available exporting methods: save it in multiple formats, download it as a PDF, send it by email, or store it in the cloud.
It's easier to work with documents with pdfFiller than you can have believed. You can sign up for an account to see for yourself.
Uncompromising security for your PDF editing and eSignature needs
Your private information is safe with pdfFiller. We employ end-to-end encryption, secure cloud storage, and advanced access control to protect your documents and maintain regulatory compliance.
How to fill out building authority - rogers
How to fill out building authority - rogers
01
Obtain the necessary application form from the building authority office.
02
Fill out the form with accurate information about the proposed building project.
03
Attach any required documents such as architectural plans, land titles, and proof of ownership.
04
Submit the completed form and documents to the building authority office for review.
05
Pay any required fees for processing the building authority application.
06
Wait for approval or feedback from the building authority regarding the proposed project.
Who needs building authority - rogers?
01
Property owners who are planning to construct or renovate a building in the jurisdiction of the building authority - rogers.
Fill
form
: Try Risk Free
For pdfFiller’s FAQs
Below is a list of the most common customer questions. If you can’t find an answer to your question, please don’t hesitate to reach out to us.
How can I modify building authority - rogers without leaving Google Drive?
It is possible to significantly enhance your document management and form preparation by combining pdfFiller with Google Docs. This will allow you to generate papers, amend them, and sign them straight from your Google Drive. Use the add-on to convert your building authority - rogers into a dynamic fillable form that can be managed and signed using any internet-connected device.
Where do I find building authority - rogers?
The premium subscription for pdfFiller provides you with access to an extensive library of fillable forms (over 25M fillable templates) that you can download, fill out, print, and sign. You won’t have any trouble finding state-specific building authority - rogers and other forms in the library. Find the template you need and customize it using advanced editing functionalities.
How do I edit building authority - rogers on an iOS device?
Create, modify, and share building authority - rogers using the pdfFiller iOS app. Easy to install from the Apple Store. You may sign up for a free trial and then purchase a membership.
What is building authority - rogers?
Building Authority - Rogers refers to the regulatory body or agency responsible for overseeing the construction, safety, and compliance of buildings within the Rogers area.
Who is required to file building authority - rogers?
Typically, homeowners, builders, and contractors involved in construction or renovation projects within the jurisdiction of the Rogers building authority are required to file the necessary documents.
How to fill out building authority - rogers?
To fill out the building authority application, individuals must complete the designated forms provided by the Rogers building authority, supplying necessary information about the project, including plans, permits, and required fees.
What is the purpose of building authority - rogers?
The purpose of the building authority - Rogers is to ensure that construction standards are met for public safety, compliance with local codes, and to facilitate orderly development in the area.
What information must be reported on building authority - rogers?
The information that must be reported includes project details, property location, applicant information, construction plans, and compliance with zoning and safety regulations.
Fill out your building authority - rogers online with pdfFiller!
pdfFiller is an end-to-end solution for managing, creating, and editing documents and forms in the cloud. Save time and hassle by preparing your tax forms online.
Building Authority - Rogers is not the form you're looking for?Search for another form here.
Relevant keywords
Related Forms
If you believe that this page should be taken down, please follow our DMCA take down process
here
.
This form may include fields for payment information. Data entered in these fields is not covered by PCI DSS compliance.