
Get the free Construcii Civile Industrial i Agricole CCIA / Inginer
Show details
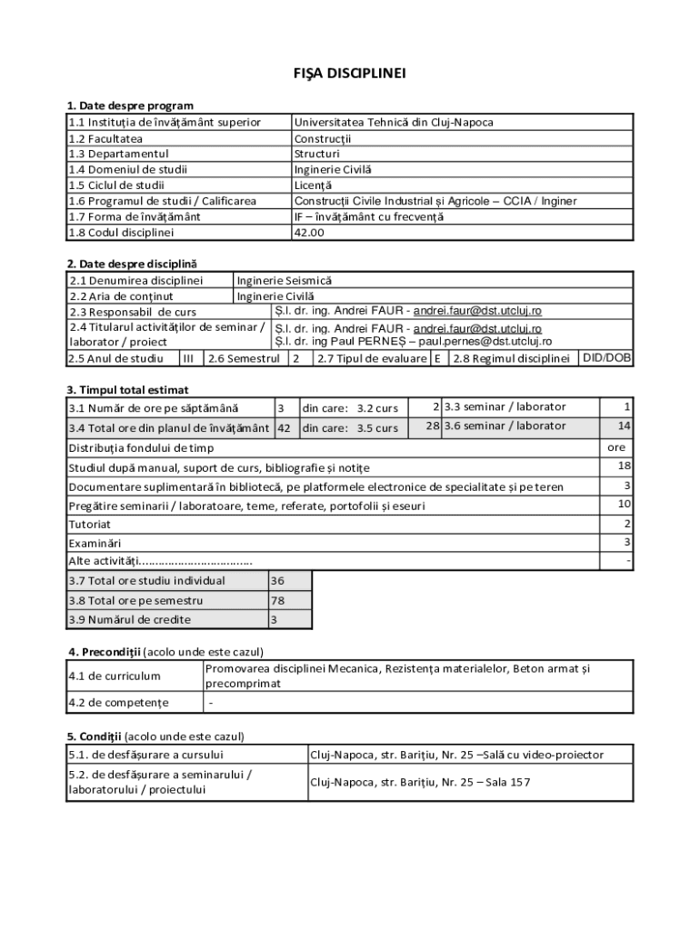
FIA DISCIPLINEI 1. Date despre program 1.1 Instituia de nvmnt superior 1.2 Facultatea 1.3 Departamentul 1.4 Domeniul de studii 1.5 Ciclul de studii 1.6 Programul de studii / Calificarea 1.7 Forma
We are not affiliated with any brand or entity on this form
Get, Create, Make and Sign construcii civile industrial i

Edit your construcii civile industrial i form online
Type text, complete fillable fields, insert images, highlight or blackout data for discretion, add comments, and more.

Add your legally-binding signature
Draw or type your signature, upload a signature image, or capture it with your digital camera.

Share your form instantly
Email, fax, or share your construcii civile industrial i form via URL. You can also download, print, or export forms to your preferred cloud storage service.
Editing construcii civile industrial i online
Follow the steps down below to take advantage of the professional PDF editor:
1
Create an account. Begin by choosing Start Free Trial and, if you are a new user, establish a profile.
2
Prepare a file. Use the Add New button to start a new project. Then, using your device, upload your file to the system by importing it from internal mail, the cloud, or adding its URL.
3
Edit construcii civile industrial i. Add and change text, add new objects, move pages, add watermarks and page numbers, and more. Then click Done when you're done editing and go to the Documents tab to merge or split the file. If you want to lock or unlock the file, click the lock or unlock button.
4
Save your file. Select it from your list of records. Then, move your cursor to the right toolbar and choose one of the exporting options. You can save it in multiple formats, download it as a PDF, send it by email, or store it in the cloud, among other things.
pdfFiller makes working with documents easier than you could ever imagine. Register for an account and see for yourself!
Uncompromising security for your PDF editing and eSignature needs
Your private information is safe with pdfFiller. We employ end-to-end encryption, secure cloud storage, and advanced access control to protect your documents and maintain regulatory compliance.
How to fill out construcii civile industrial i

How to fill out construcii civile industrial i
01
Obtain the necessary forms and documents for filling out construcii civile industrial i.
02
Fill in all required information accurately and completely on the forms.
03
Make sure to include all relevant details about the industrial construction project.
04
Double check the filled out forms for any errors or missing information before submitting.
Who needs construcii civile industrial i?
01
Construction companies involved in industrial projects
02
Engineers and architects working on industrial building designs
03
Government agencies overseeing industrial construction regulations
Fill
form
: Try Risk Free
For pdfFiller’s FAQs
Below is a list of the most common customer questions. If you can’t find an answer to your question, please don’t hesitate to reach out to us.
How do I edit construcii civile industrial i in Chrome?
construcii civile industrial i can be edited, filled out, and signed with the pdfFiller Google Chrome Extension. You can open the editor right from a Google search page with just one click. Fillable documents can be done on any web-connected device without leaving Chrome.
Can I create an electronic signature for the construcii civile industrial i in Chrome?
You certainly can. You get not just a feature-rich PDF editor and fillable form builder with pdfFiller, but also a robust e-signature solution that you can add right to your Chrome browser. You may use our addon to produce a legally enforceable eSignature by typing, sketching, or photographing your signature with your webcam. Choose your preferred method and eSign your construcii civile industrial i in minutes.
How do I edit construcii civile industrial i straight from my smartphone?
The easiest way to edit documents on a mobile device is using pdfFiller’s mobile-native apps for iOS and Android. You can download those from the Apple Store and Google Play, respectively. You can learn more about the apps here. Install and log in to the application to start editing construcii civile industrial i.
What is construcii civile industrial i?
Construcii civile industrial i refers to the quarterly report that must be filed by industrial construction companies in Romania.
Who is required to file construcii civile industrial i?
Industrial construction companies in Romania are required to file construcii civile industrial i.
How to fill out construcii civile industrial i?
Construcii civile industrial i can be filled out online through the relevant government portal or by submitting physical forms to the appropriate authorities.
What is the purpose of construcii civile industrial i?
The purpose of construcii civile industrial i is to provide information on the activities and financial status of industrial construction companies in Romania.
What information must be reported on construcii civile industrial i?
Information such as financial statements, project progress, and employment data must be reported on construcii civile industrial i.
Fill out your construcii civile industrial i online with pdfFiller!
pdfFiller is an end-to-end solution for managing, creating, and editing documents and forms in the cloud. Save time and hassle by preparing your tax forms online.

Construcii Civile Industrial I is not the form you're looking for?Search for another form here.
Relevant keywords
Related Forms
If you believe that this page should be taken down, please follow our DMCA take down process
here
.
This form may include fields for payment information. Data entered in these fields is not covered by PCI DSS compliance.