Form preview

Get the free o/)r;J9

Get Form
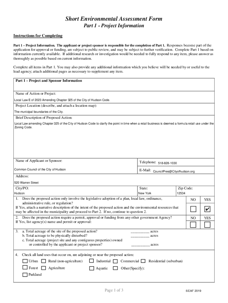
RESOLUTION NO.__ May 16, 2023 A RESOLUTION DECLARING A NEGATIVE DECLARATION UNDER SEQR WITH REGARD TO LOCAL LAW INTRODUCTORY E OF 2023 WHEREAS, the City of Hudson is considering passage of proposed
We are not affiliated with any brand or entity on this form

Get, Create, Make and Sign orj9

Edit
Edit your orj9 form online
Type text, complete fillable fields, insert images, highlight or blackout data for discretion, add comments, and more.
Add
Add your legally-binding signature
Draw or type your signature, upload a signature image, or capture it with your digital camera.
Share
Share your form instantly
Email, fax, or share your orj9 form via URL. You can also download, print, or export forms to your preferred cloud storage service.

How to edit orj9 online

9.5
Ease of Setup
pdfFiller User Ratings on G2
9.0
Ease of Use
pdfFiller User Ratings on G2
Follow the guidelines below to benefit from the PDF editor's expertise:
1
Log in. Click Start Free Trial and create a profile if necessary.
2
Prepare a file. Use the Add New button to start a new project. Then, using your device, upload your file to the system by importing it from internal mail, the cloud, or adding its URL.
3
Edit orj9. Rearrange and rotate pages, insert new and alter existing texts, add new objects, and take advantage of other helpful tools. Click Done to apply changes and return to your Dashboard. Go to the Documents tab to access merging, splitting, locking, or unlocking functions.
4
Save your file. Select it in the list of your records. Then, move the cursor to the right toolbar and choose one of the available exporting methods: save it in multiple formats, download it as a PDF, send it by email, or store it in the cloud.
Dealing with documents is always simple with pdfFiller.

Uncompromising security for your PDF editing and eSignature needs

Your private information is safe with pdfFiller. We employ end-to-end encryption, secure cloud storage, and advanced access control to protect your documents and maintain regulatory compliance.
GDPR
AICPA SOC 2
PCI
HIPAA
CCPA
FDA

How to fill out orj9

Illustration

How to fill out orj9

01
Collect all necessary information needed to fill out the ORJ9 form.
02
Start by entering your personal details such as name, address, and contact information.
03
Provide information about your employment status and income.
04
Include details about any dependents or family members that you are supporting.
05
Fill out any specific sections related to the purpose of the ORJ9 form, such as applying for financial assistance or requesting a service.
06
Review the completed form for accuracy and make any necessary corrections before submitting.

Who needs orj9?

01
Individuals who are applying for financial assistance
02
Employees who require documentation for HR purposes
03
Students who need to provide information for scholarships or grants
04
Anyone seeking to access specific services or benefits requiring the ORJ9 form
Fill form : Try Risk Free
Users Most Likely To Recommend - Summer 2025
Grid Leader in Small-Business - Summer 2025
High Performer - Summer 2025
Regional Leader - Summer 2025
Easiest To Do Business With - Summer 2025
Best Meets Requirements- Summer 2025
Rate the form
4.5
Satisfied
29 Votes

For pdfFiller’s FAQs

Below is a list of the most common customer questions. If you can’t find an answer to your question, please don’t hesitate to reach out to us.

It's simple with pdfFiller, a full online document management tool. Access our huge online form collection (over 25M fillable forms are accessible) and find the orj9 in seconds. Open it immediately and begin modifying it with powerful editing options.
Use pdfFiller's Gmail add-on to upload, type, or draw a signature. Your orj9 and other papers may be signed using pdfFiller. Register for a free account to preserve signed papers and signatures.
Install the pdfFiller app on your iOS device to fill out papers. Create an account or log in if you already have one. After registering, upload your orj9. You may now use pdfFiller's advanced features like adding fillable fields and eSigning documents from any device, anywhere.
ORJ9 is a specific form or document used for reporting certain financial or regulatory information.
Entities or individuals who meet specific criteria set by the governing body or regulation, often based on their income, activities, or status.
To fill out ORJ9, complete all required fields accurately, providing necessary supporting documentation and information as specified in the filing instructions.
The purpose of ORJ9 is to collect necessary information for compliance, regulatory assessment, or tax reporting.
Typically, ORJ9 requires reporting of financial details, operational data, and other relevant information as outlined in the filing instructions.
Fill out your orj9 online with pdfFiller!

pdfFiller is an end-to-end solution for managing, creating, and editing documents and forms in the cloud. Save time and hassle by preparing your tax forms online.

Get started now
Form preview
If you believe that this page should be taken down, please follow our DMCA take down process here .
This form may include fields for payment information. Data entered in these fields is not covered by PCI DSS compliance.