Get the free New Home Construction - pnmprod
Show details
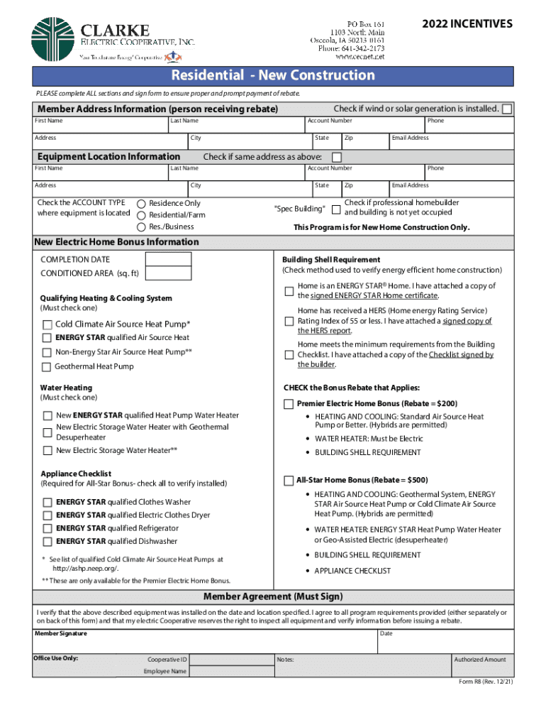
2022 INCENTIVESResidential New Construction PLEASE complete ALL sections and sign form to ensure proper and prompt payment of rebate.Member Address Information (person receiving rebate) First NameCheck
We are not affiliated with any brand or entity on this form
Get, Create, Make and Sign new home construction
Edit your new home construction form online
Type text, complete fillable fields, insert images, highlight or blackout data for discretion, add comments, and more.
Add your legally-binding signature
Draw or type your signature, upload a signature image, or capture it with your digital camera.
Share your form instantly
Email, fax, or share your new home construction form via URL. You can also download, print, or export forms to your preferred cloud storage service.
How to edit new home construction online
Follow the guidelines below to benefit from a competent PDF editor:
1
Register the account. Begin by clicking Start Free Trial and create a profile if you are a new user.
2
Prepare a file. Use the Add New button. Then upload your file to the system from your device, importing it from internal mail, the cloud, or by adding its URL.
3
Edit new home construction. Add and replace text, insert new objects, rearrange pages, add watermarks and page numbers, and more. Click Done when you are finished editing and go to the Documents tab to merge, split, lock or unlock the file.
4
Get your file. Select your file from the documents list and pick your export method. You may save it as a PDF, email it, or upload it to the cloud.
pdfFiller makes dealing with documents a breeze. Create an account to find out!
Uncompromising security for your PDF editing and eSignature needs
Your private information is safe with pdfFiller. We employ end-to-end encryption, secure cloud storage, and advanced access control to protect your documents and maintain regulatory compliance.
How to fill out new home construction
How to fill out new home construction
01
Begin by finding a reputable contractor or builder for your new home construction project.
02
Have a clear vision of what you want in your new home, including the layout, design, and features.
03
Work with the contractor to finalize the design plans and obtain any necessary permits for construction.
04
Select materials, finishes, and fixtures for your new home, keeping budget and style preferences in mind.
05
Monitor the progress of the construction process closely and communicate any changes or concerns with the contractor.
06
Conduct a final inspection of the completed new home construction to ensure it meets your expectations before moving in.
Who needs new home construction?
01
Individuals or families looking to build a customized home that meets their specific needs and preferences.
02
Real estate developers or investors aiming to construct new residential properties for sale or rental purposes.
03
People interested in upgrading or modernizing their current living space with a brand new home.
Fill
form
: Try Risk Free
For pdfFiller’s FAQs
Below is a list of the most common customer questions. If you can’t find an answer to your question, please don’t hesitate to reach out to us.
Can I sign the new home construction electronically in Chrome?
Yes. By adding the solution to your Chrome browser, you can use pdfFiller to eSign documents and enjoy all of the features of the PDF editor in one place. Use the extension to create a legally-binding eSignature by drawing it, typing it, or uploading a picture of your handwritten signature. Whatever you choose, you will be able to eSign your new home construction in seconds.
Can I create an electronic signature for signing my new home construction in Gmail?
With pdfFiller's add-on, you may upload, type, or draw a signature in Gmail. You can eSign your new home construction and other papers directly in your mailbox with pdfFiller. To preserve signed papers and your personal signatures, create an account.
Can I edit new home construction on an iOS device?
You certainly can. You can quickly edit, distribute, and sign new home construction on your iOS device with the pdfFiller mobile app. Purchase it from the Apple Store and install it in seconds. The program is free, but in order to purchase a subscription or activate a free trial, you must first establish an account.
What is new home construction?
New home construction refers to the process of building a residential property from the ground up, including the design, planning, and physical construction of new houses.
Who is required to file new home construction?
Typically, builders, contractors, or owners of new residential properties are required to file new home construction applications, registrations, or permits according to local regulations.
How to fill out new home construction?
Filling out new home construction usually involves completing specific forms provided by the local authorities, detailing the project scope, builder information, zoning compliance, and any necessary permits.
What is the purpose of new home construction?
The purpose of new home construction is to create new living spaces to meet housing demand, enhance neighborhoods, and provide individuals and families with modern and efficient homes.
What information must be reported on new home construction?
Information that must be reported often includes builder details, property location, architectural plans, construction timelines, and compliance with safety and zoning regulations.
Fill out your new home construction online with pdfFiller!
pdfFiller is an end-to-end solution for managing, creating, and editing documents and forms in the cloud. Save time and hassle by preparing your tax forms online.
New Home Construction is not the form you're looking for?Search for another form here.
Relevant keywords
Related Forms
If you believe that this page should be taken down, please follow our DMCA take down process
here
.
This form may include fields for payment information. Data entered in these fields is not covered by PCI DSS compliance.