Get the free 307/64 Sahi Crescent, ROXBURGH PARK, VIC, 3064
Show details
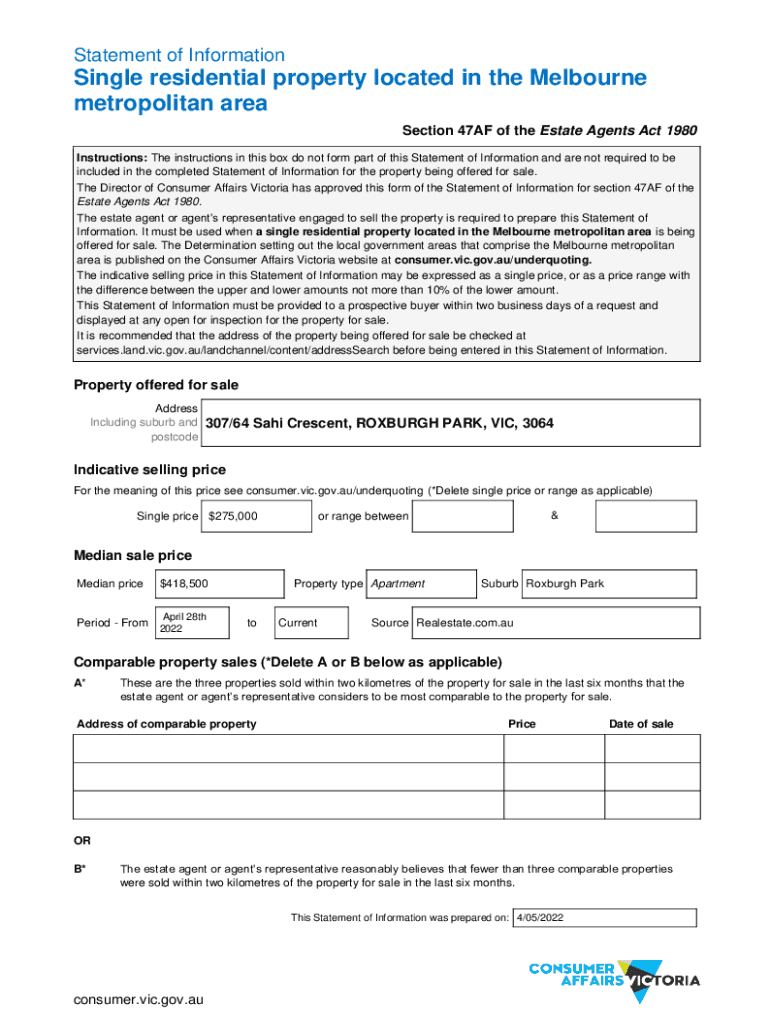
Statement of InformationSingle residential property located in the Melbourne metropolitan area Section 47AF of the Estate Agents Act 1980 Instructions: The instructions in this box do not form part
We are not affiliated with any brand or entity on this form
Get, Create, Make and Sign 30764 sahi crescent roxburgh
Edit your 30764 sahi crescent roxburgh form online
Type text, complete fillable fields, insert images, highlight or blackout data for discretion, add comments, and more.
Add your legally-binding signature
Draw or type your signature, upload a signature image, or capture it with your digital camera.
Share your form instantly
Email, fax, or share your 30764 sahi crescent roxburgh form via URL. You can also download, print, or export forms to your preferred cloud storage service.
Editing 30764 sahi crescent roxburgh online
Follow the steps down below to benefit from a competent PDF editor:
1
Check your account. In case you're new, it's time to start your free trial.
2
Upload a file. Select Add New on your Dashboard and upload a file from your device or import it from the cloud, online, or internal mail. Then click Edit.
3
Edit 30764 sahi crescent roxburgh. Add and change text, add new objects, move pages, add watermarks and page numbers, and more. Then click Done when you're done editing and go to the Documents tab to merge or split the file. If you want to lock or unlock the file, click the lock or unlock button.
4
Save your file. Select it from your list of records. Then, move your cursor to the right toolbar and choose one of the exporting options. You can save it in multiple formats, download it as a PDF, send it by email, or store it in the cloud, among other things.
It's easier to work with documents with pdfFiller than you can have believed. You may try it out for yourself by signing up for an account.
Uncompromising security for your PDF editing and eSignature needs
Your private information is safe with pdfFiller. We employ end-to-end encryption, secure cloud storage, and advanced access control to protect your documents and maintain regulatory compliance.
How to fill out 30764 sahi crescent roxburgh
How to fill out 30764 sahi crescent roxburgh
01
Start by gathering all the necessary information such as your full name, contact information, and any other required details.
02
Write the full address '30764 Sahi Crescent Roxburgh' in the appropriate section provided on the form.
03
Double-check to ensure the accuracy of the address before submitting the form.
Who needs 30764 sahi crescent roxburgh?
01
Individuals who are required to provide their address for a specific purpose such as filling out official documents or applying for services.
Fill
form
: Try Risk Free
For pdfFiller’s FAQs
Below is a list of the most common customer questions. If you can’t find an answer to your question, please don’t hesitate to reach out to us.
How can I edit 30764 sahi crescent roxburgh on a smartphone?
You can do so easily with pdfFiller’s applications for iOS and Android devices, which can be found at the Apple Store and Google Play Store, respectively. Alternatively, you can get the app on our web page: https://edit-pdf-ios-android.pdffiller.com/. Install the application, log in, and start editing 30764 sahi crescent roxburgh right away.
How do I edit 30764 sahi crescent roxburgh on an Android device?
The pdfFiller app for Android allows you to edit PDF files like 30764 sahi crescent roxburgh. Mobile document editing, signing, and sending. Install the app to ease document management anywhere.
How do I fill out 30764 sahi crescent roxburgh on an Android device?
Use the pdfFiller app for Android to finish your 30764 sahi crescent roxburgh. The application lets you do all the things you need to do with documents, like add, edit, and remove text, sign, annotate, and more. There is nothing else you need except your smartphone and an internet connection to do this.
What is 30764 sahi crescent roxburgh?
30764 Sahi Crescent in Roxburgh is an address, possibly indicating a residential or commercial property located in the suburbs of Roxburgh.
Who is required to file 30764 sahi crescent roxburgh?
The term 'file' in the context of an address is unclear; however, if referring to property-related documents, property owners or tenants may need to file specific forms with local authorities.
How to fill out 30764 sahi crescent roxburgh?
Filling out any documentation related to 30764 Sahi Crescent would depend on the specific form or application in question. Generally, it involves providing personal information and details regarding the property.
What is the purpose of 30764 sahi crescent roxburgh?
The purpose of the address is to designate a specific location for various activities such as residential living, business operations, or local governance.
What information must be reported on 30764 sahi crescent roxburgh?
Typically, information such as the owner's name, property details, and any relevant transactions or permits might need to be reported, depending on the context of filing.
Fill out your 30764 sahi crescent roxburgh online with pdfFiller!
pdfFiller is an end-to-end solution for managing, creating, and editing documents and forms in the cloud. Save time and hassle by preparing your tax forms online.
30764 Sahi Crescent Roxburgh is not the form you're looking for?Search for another form here.
Relevant keywords
Related Forms
If you believe that this page should be taken down, please follow our DMCA take down process
here
.
This form may include fields for payment information. Data entered in these fields is not covered by PCI DSS compliance.