
Get the free Pre Tender Cost Estimation for - prasarbharati gov
Show details
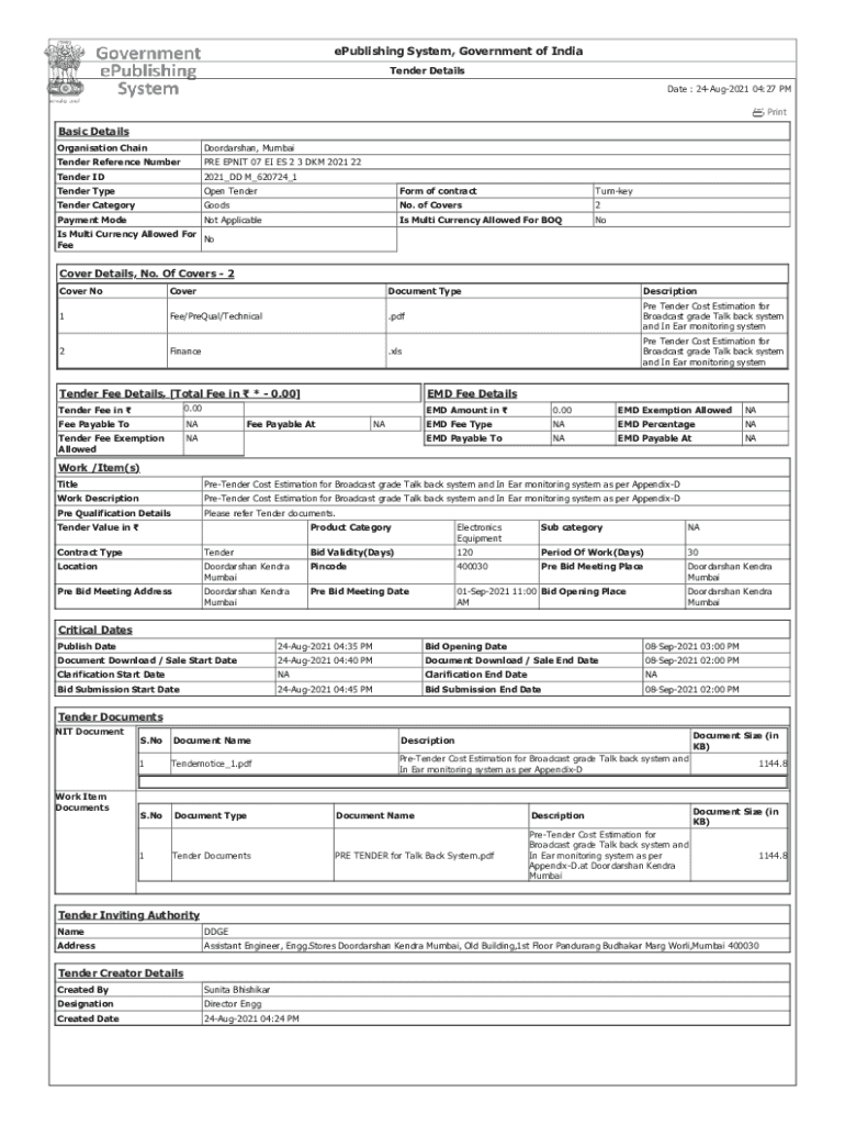
EPublishing System, Government of India
Tender Details
Date : 24Aug2021 04:27 PM
PrintBasic Details
Organisation ChainDoordarshan, MumbaiTender Reference NumberPRE EPNIT 07 EI ES 2 3 DKM 2021 22Tender
We are not affiliated with any brand or entity on this form
Get, Create, Make and Sign pre tender cost estimation

Edit your pre tender cost estimation form online
Type text, complete fillable fields, insert images, highlight or blackout data for discretion, add comments, and more.

Add your legally-binding signature
Draw or type your signature, upload a signature image, or capture it with your digital camera.

Share your form instantly
Email, fax, or share your pre tender cost estimation form via URL. You can also download, print, or export forms to your preferred cloud storage service.
How to edit pre tender cost estimation online
Follow the steps down below to benefit from a competent PDF editor:
1
Check your account. If you don't have a profile yet, click Start Free Trial and sign up for one.
2
Prepare a file. Use the Add New button. Then upload your file to the system from your device, importing it from internal mail, the cloud, or by adding its URL.
3
Edit pre tender cost estimation. Replace text, adding objects, rearranging pages, and more. Then select the Documents tab to combine, divide, lock or unlock the file.
4
Save your file. Select it from your records list. Then, click the right toolbar and select one of the various exporting options: save in numerous formats, download as PDF, email, or cloud.
pdfFiller makes working with documents easier than you could ever imagine. Register for an account and see for yourself!
Uncompromising security for your PDF editing and eSignature needs
Your private information is safe with pdfFiller. We employ end-to-end encryption, secure cloud storage, and advanced access control to protect your documents and maintain regulatory compliance.
How to fill out pre tender cost estimation

How to fill out pre tender cost estimation
01
Gather all relevant project information such as architectural drawings, engineering plans, and specifications.
02
Break down the project into different sections or work packages.
03
Estimate the quantities of materials and labor required for each work package.
04
Obtain current pricing data for materials and labor in the project area.
05
Calculate the cost of each work package by multiplying the quantity with the unit cost.
06
Add up all the work package costs to get the total pre tender cost estimation for the project.
Who needs pre tender cost estimation?
01
Contractors who are bidding on construction projects.
02
Project managers who are planning and budgeting for upcoming projects.
03
Architects and engineers who need to estimate the cost of their design proposals.
Fill
form
: Try Risk Free
For pdfFiller’s FAQs
Below is a list of the most common customer questions. If you can’t find an answer to your question, please don’t hesitate to reach out to us.
How can I manage my pre tender cost estimation directly from Gmail?
Using pdfFiller's Gmail add-on, you can edit, fill out, and sign your pre tender cost estimation and other papers directly in your email. You may get it through Google Workspace Marketplace. Make better use of your time by handling your papers and eSignatures.
Where do I find pre tender cost estimation?
With pdfFiller, an all-in-one online tool for professional document management, it's easy to fill out documents. Over 25 million fillable forms are available on our website, and you can find the pre tender cost estimation in a matter of seconds. Open it right away and start making it your own with help from advanced editing tools.
Can I sign the pre tender cost estimation electronically in Chrome?
Yes. By adding the solution to your Chrome browser, you may use pdfFiller to eSign documents while also enjoying all of the PDF editor's capabilities in one spot. Create a legally enforceable eSignature by sketching, typing, or uploading a photo of your handwritten signature using the extension. Whatever option you select, you'll be able to eSign your pre tender cost estimation in seconds.
What is pre tender cost estimation?
Pre tender cost estimation is the process of calculating the projected costs associated with a project before it is formally tendered out for bidding. It involves analyzing project requirements and costs to provide an accurate estimate that can guide decision-making.
Who is required to file pre tender cost estimation?
Typically, project managers, contractors, or firms preparing to submit a bid on a project are required to file pre tender cost estimation.
How to fill out pre tender cost estimation?
To fill out pre tender cost estimation, one must gather relevant project information, calculate costs associated with labor, materials, overhead, and any other expenses, and then compile this data into a detailed estimation document that adheres to regulatory standards.
What is the purpose of pre tender cost estimation?
The purpose of pre tender cost estimation is to provide a clear and realistic financial framework for a project, ensuring that bids are competitive and reflective of actual potential costs.
What information must be reported on pre tender cost estimation?
Pre tender cost estimation must report detailed information such as projected costs for materials, labor, equipment, overhead, contingencies, and any other relevant financial details associated with the project.
Fill out your pre tender cost estimation online with pdfFiller!
pdfFiller is an end-to-end solution for managing, creating, and editing documents and forms in the cloud. Save time and hassle by preparing your tax forms online.

Pre Tender Cost Estimation is not the form you're looking for?Search for another form here.
Relevant keywords
Related Forms
If you believe that this page should be taken down, please follow our DMCA take down process
here
.
This form may include fields for payment information. Data entered in these fields is not covered by PCI DSS compliance.