Get the free DR 0992 Application for Wildfire Rebuild Exemption Certificate
Show details
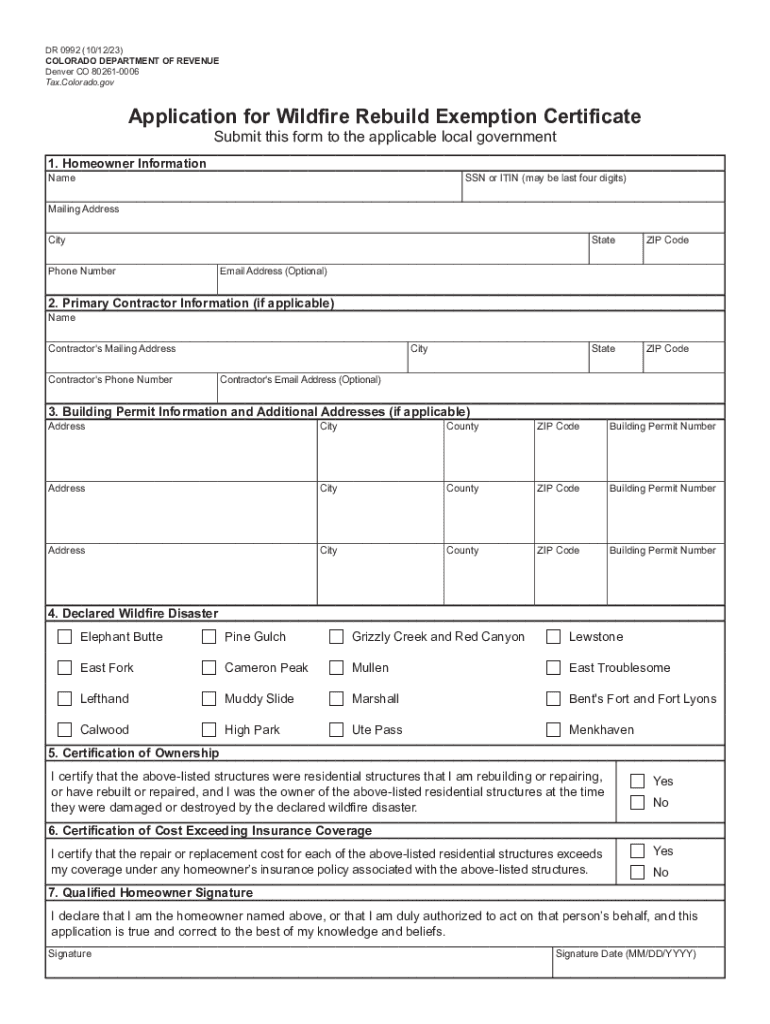
DR 0992 (10/12/23) COLORADO DEPARTMENT OF REVENUE Denver CO 802610006 Tax.Colorado.govApplication for Wildfire Rebuild Exemption Certificate InstructionsGeneral Instructions Qualified homeowners are
We are not affiliated with any brand or entity on this form
Get, Create, Make and Sign dr 0992 application for
Edit your dr 0992 application for form online
Type text, complete fillable fields, insert images, highlight or blackout data for discretion, add comments, and more.
Add your legally-binding signature
Draw or type your signature, upload a signature image, or capture it with your digital camera.
Share your form instantly
Email, fax, or share your dr 0992 application for form via URL. You can also download, print, or export forms to your preferred cloud storage service.
Editing dr 0992 application for online
To use the services of a skilled PDF editor, follow these steps below:
1
Check your account. If you don't have a profile yet, click Start Free Trial and sign up for one.
2
Prepare a file. Use the Add New button to start a new project. Then, using your device, upload your file to the system by importing it from internal mail, the cloud, or adding its URL.
3
Edit dr 0992 application for. Rearrange and rotate pages, add new and changed texts, add new objects, and use other useful tools. When you're done, click Done. You can use the Documents tab to merge, split, lock, or unlock your files.
4
Save your file. Select it in the list of your records. Then, move the cursor to the right toolbar and choose one of the available exporting methods: save it in multiple formats, download it as a PDF, send it by email, or store it in the cloud.
With pdfFiller, it's always easy to deal with documents. Try it right now
Uncompromising security for your PDF editing and eSignature needs
Your private information is safe with pdfFiller. We employ end-to-end encryption, secure cloud storage, and advanced access control to protect your documents and maintain regulatory compliance.
How to fill out dr 0992 application for
How to fill out dr 0992 application for
01
Obtain a copy of the DR 0992 application form.
02
Fill out the personal information section, including your name, address, and contact information.
03
Provide information about your employer or organization, including their name and address.
04
Fill out the reason for requesting the DR 0992 application, including any relevant details.
05
Sign and date the application form before submitting it.
Who needs dr 0992 application for?
01
Individuals who are applying for a job that requires a DR 0992 background check may need to fill out this application form.
02
Employers who need to request a DR 0992 background check on a potential employee may also need to fill out this form.
Fill
form
: Try Risk Free
For pdfFiller’s FAQs
Below is a list of the most common customer questions. If you can’t find an answer to your question, please don’t hesitate to reach out to us.
Can I create an electronic signature for signing my dr 0992 application for in Gmail?
Upload, type, or draw a signature in Gmail with the help of pdfFiller’s add-on. pdfFiller enables you to eSign your dr 0992 application for and other documents right in your inbox. Register your account in order to save signed documents and your personal signatures.
How do I edit dr 0992 application for straight from my smartphone?
The best way to make changes to documents on a mobile device is to use pdfFiller's apps for iOS and Android. You may get them from the Apple Store and Google Play. Learn more about the apps here. To start editing dr 0992 application for, you need to install and log in to the app.
How do I fill out the dr 0992 application for form on my smartphone?
You can quickly make and fill out legal forms with the help of the pdfFiller app on your phone. Complete and sign dr 0992 application for and other documents on your mobile device using the application. If you want to learn more about how the PDF editor works, go to pdfFiller.com.
What is dr 0992 application for?
The DR 0992 application is used for reporting and applying for specific tax credits or exemptions associated with property taxes.
Who is required to file dr 0992 application for?
Individuals or entities that are seeking property tax credits or exemptions in their respective jurisdictions are typically required to file the DR 0992 application.
How to fill out dr 0992 application for?
To fill out the DR 0992 application, an applicant should provide accurate personal and property information, indicate the type of credit or exemption being applied for, and attach any required documentation.
What is the purpose of dr 0992 application for?
The purpose of the DR 0992 application is to allow taxpayers to request property tax relief through eligible credits or exemptions based on qualifying criteria.
What information must be reported on dr 0992 application for?
The application must report personal identification information, details about the property, the type of tax credit or exemption sought, and any necessary supporting documentation.
Fill out your dr 0992 application for online with pdfFiller!
pdfFiller is an end-to-end solution for managing, creating, and editing documents and forms in the cloud. Save time and hassle by preparing your tax forms online.
Dr 0992 Application For is not the form you're looking for?Search for another form here.
Relevant keywords
Related Forms
If you believe that this page should be taken down, please follow our DMCA take down process
here
.
This form may include fields for payment information. Data entered in these fields is not covered by PCI DSS compliance.