Get the free Application for Permission to Abstract Ground Water for ... - dnrc mt
Show details
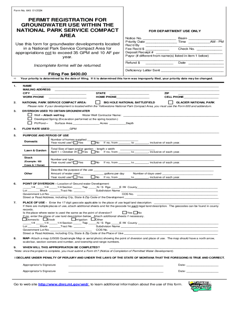
Form No. 645 01/2024PERMIT REGISTRATION FOR GROUNDWATER USE WITHIN THE NATIONAL PARK SERVICE COMPACT AREA Use this form for groundwater developments located in a National Park Service Compact Area
We are not affiliated with any brand or entity on this form
Get, Create, Make and Sign application for permission to
Edit your application for permission to form online
Type text, complete fillable fields, insert images, highlight or blackout data for discretion, add comments, and more.
Add your legally-binding signature
Draw or type your signature, upload a signature image, or capture it with your digital camera.
Share your form instantly
Email, fax, or share your application for permission to form via URL. You can also download, print, or export forms to your preferred cloud storage service.
Editing application for permission to online
To use the services of a skilled PDF editor, follow these steps below:
1
Log in. Click Start Free Trial and create a profile if necessary.
2
Upload a file. Select Add New on your Dashboard and upload a file from your device or import it from the cloud, online, or internal mail. Then click Edit.
3
Edit application for permission to. Rearrange and rotate pages, add new and changed texts, add new objects, and use other useful tools. When you're done, click Done. You can use the Documents tab to merge, split, lock, or unlock your files.
4
Save your file. Select it in the list of your records. Then, move the cursor to the right toolbar and choose one of the available exporting methods: save it in multiple formats, download it as a PDF, send it by email, or store it in the cloud.
pdfFiller makes working with documents easier than you could ever imagine. Try it for yourself by creating an account!
Uncompromising security for your PDF editing and eSignature needs
Your private information is safe with pdfFiller. We employ end-to-end encryption, secure cloud storage, and advanced access control to protect your documents and maintain regulatory compliance.
How to fill out application for permission to
How to fill out application for permission to
01
Obtain the application form for permission to from the relevant authority.
02
Fill out the application form completely and accurately with all required information.
03
Attach any necessary supporting documents as specified in the application form.
04
Double-check the completed form and documents for any errors or missing information.
05
Submit the application form and supporting documents to the designated authority at the specified location.
Who needs application for permission to?
01
Individuals or organizations who require permission to undertake certain activities or projects that are regulated by the relevant authority.
Fill
form
: Try Risk Free
For pdfFiller’s FAQs
Below is a list of the most common customer questions. If you can’t find an answer to your question, please don’t hesitate to reach out to us.
How can I get application for permission to?
With pdfFiller, an all-in-one online tool for professional document management, it's easy to fill out documents. Over 25 million fillable forms are available on our website, and you can find the application for permission to in a matter of seconds. Open it right away and start making it your own with help from advanced editing tools.
How do I complete application for permission to online?
Easy online application for permission to completion using pdfFiller. Also, it allows you to legally eSign your form and change original PDF material. Create a free account and manage documents online.
How do I edit application for permission to online?
The editing procedure is simple with pdfFiller. Open your application for permission to in the editor, which is quite user-friendly. You may use it to blackout, redact, write, and erase text, add photos, draw arrows and lines, set sticky notes and text boxes, and much more.
What is application for permission to?
An application for permission to is a formal request submitted to a relevant authority seeking approval for a specific action or activity.
Who is required to file application for permission to?
Individuals or organizations that intend to perform activities requiring regulatory approval, such as construction, business operations, or other regulated actions, are required to file an application for permission to.
How to fill out application for permission to?
To fill out an application for permission to, gather the required information, complete the application form accurately, attach any necessary documents, and submit it to the appropriate authority.
What is the purpose of application for permission to?
The purpose of an application for permission to is to obtain official consent from authorities to ensure that the proposed activities comply with regulations and standards.
What information must be reported on application for permission to?
The information that must be reported on an application for permission to typically includes the applicant's details, a description of the proposed activity, supporting documentation, and any potential impacts.
Fill out your application for permission to online with pdfFiller!
pdfFiller is an end-to-end solution for managing, creating, and editing documents and forms in the cloud. Save time and hassle by preparing your tax forms online.
Application For Permission To is not the form you're looking for?Search for another form here.
Relevant keywords
Related Forms
If you believe that this page should be taken down, please follow our DMCA take down process
here
.
This form may include fields for payment information. Data entered in these fields is not covered by PCI DSS compliance.