Get the free If your national identity card doesn't have an expiry date ...
Show details
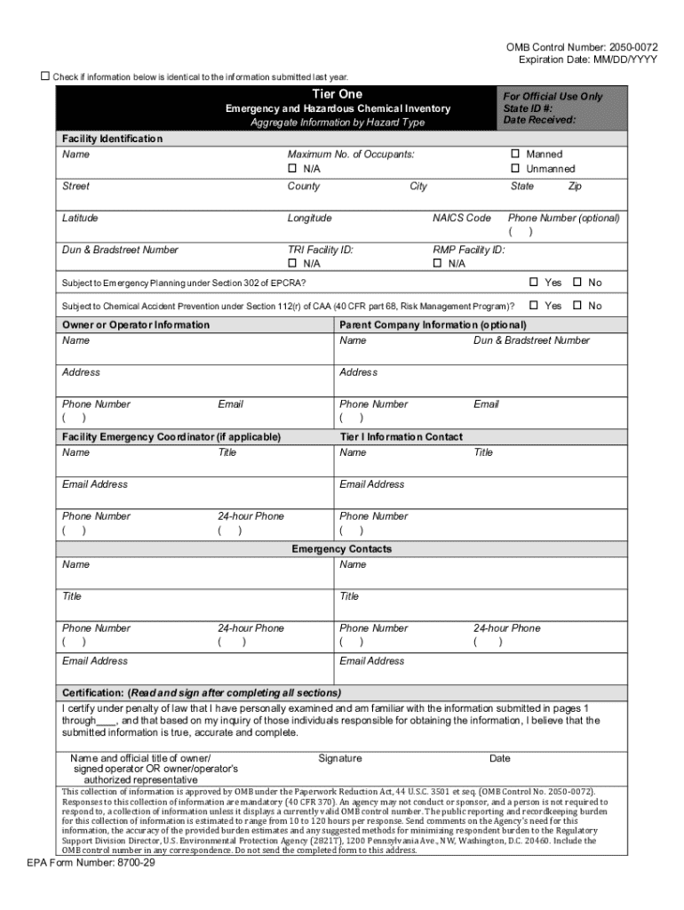
OMB Control Number: 20500072
Expiration Date: MM/DD/YYY Check if information below is identical to the information submitted last year. Tier For Official Use Only
State ID #:
Date Received:Emergency
We are not affiliated with any brand or entity on this form
Get, Create, Make and Sign if your national identity
Edit your if your national identity form online
Type text, complete fillable fields, insert images, highlight or blackout data for discretion, add comments, and more.
Add your legally-binding signature
Draw or type your signature, upload a signature image, or capture it with your digital camera.
Share your form instantly
Email, fax, or share your if your national identity form via URL. You can also download, print, or export forms to your preferred cloud storage service.
Editing if your national identity online
Follow the guidelines below to take advantage of the professional PDF editor:
1
Create an account. Begin by choosing Start Free Trial and, if you are a new user, establish a profile.
2
Prepare a file. Use the Add New button to start a new project. Then, using your device, upload your file to the system by importing it from internal mail, the cloud, or adding its URL.
3
Edit if your national identity. Rearrange and rotate pages, insert new and alter existing texts, add new objects, and take advantage of other helpful tools. Click Done to apply changes and return to your Dashboard. Go to the Documents tab to access merging, splitting, locking, or unlocking functions.
4
Save your file. Select it from your list of records. Then, move your cursor to the right toolbar and choose one of the exporting options. You can save it in multiple formats, download it as a PDF, send it by email, or store it in the cloud, among other things.
pdfFiller makes dealing with documents a breeze. Create an account to find out!
Uncompromising security for your PDF editing and eSignature needs
Your private information is safe with pdfFiller. We employ end-to-end encryption, secure cloud storage, and advanced access control to protect your documents and maintain regulatory compliance.
How to fill out if your national identity
How to fill out if your national identity
01
Locate the national identity form from the issuing authority.
02
Fill in your personal details such as full name, date of birth, address, and contact information.
03
Provide necessary supporting documents such as proof of identity, address, and citizenship.
04
Follow any specific instructions provided on the form for additional information or documentation.
05
Review the completed form for accuracy and sign where required.
06
Submit the filled out form along with the supporting documents to the designated authority for processing.
Who needs if your national identity?
01
Citizens of the country who need to prove their identity and citizenship for various purposes such as travel, employment, education, healthcare, and government services.
Fill
form
: Try Risk Free
For pdfFiller’s FAQs
Below is a list of the most common customer questions. If you can’t find an answer to your question, please don’t hesitate to reach out to us.
How can I edit if your national identity from Google Drive?
You can quickly improve your document management and form preparation by integrating pdfFiller with Google Docs so that you can create, edit and sign documents directly from your Google Drive. The add-on enables you to transform your if your national identity into a dynamic fillable form that you can manage and eSign from any internet-connected device.
How can I get if your national identity?
The pdfFiller premium subscription gives you access to a large library of fillable forms (over 25 million fillable templates) that you can download, fill out, print, and sign. In the library, you'll have no problem discovering state-specific if your national identity and other forms. Find the template you want and tweak it with powerful editing tools.
How do I execute if your national identity online?
pdfFiller makes it easy to finish and sign if your national identity online. It lets you make changes to original PDF content, highlight, black out, erase, and write text anywhere on a page, legally eSign your form, and more, all from one place. Create a free account and use the web to keep track of professional documents.
What is if your national identity?
Your national identity is a set of characteristics and documents that represent your citizenship and affiliation to a specific nation.
Who is required to file if your national identity?
Individuals who are citizens or legal residents of a country are typically required to file for their national identity documentation.
How to fill out if your national identity?
To fill out your national identity documentation, you usually need to provide personal information such as your name, date of birth, address, and identification numbers, often through an official application form.
What is the purpose of if your national identity?
The purpose of national identity documentation is to establish and verify a person's identity, citizenship, and legal status within a country.
What information must be reported on if your national identity?
Information typically reported includes full name, date of birth, place of birth, gender, and identification numbers such as Social Security or national ID numbers.
Fill out your if your national identity online with pdfFiller!
pdfFiller is an end-to-end solution for managing, creating, and editing documents and forms in the cloud. Save time and hassle by preparing your tax forms online.
If Your National Identity is not the form you're looking for?Search for another form here.
Relevant keywords
Related Forms
If you believe that this page should be taken down, please follow our DMCA take down process
here
.
This form may include fields for payment information. Data entered in these fields is not covered by PCI DSS compliance.