Form preview

WI SBD-3209 2021-2026 free printable template

Get Form
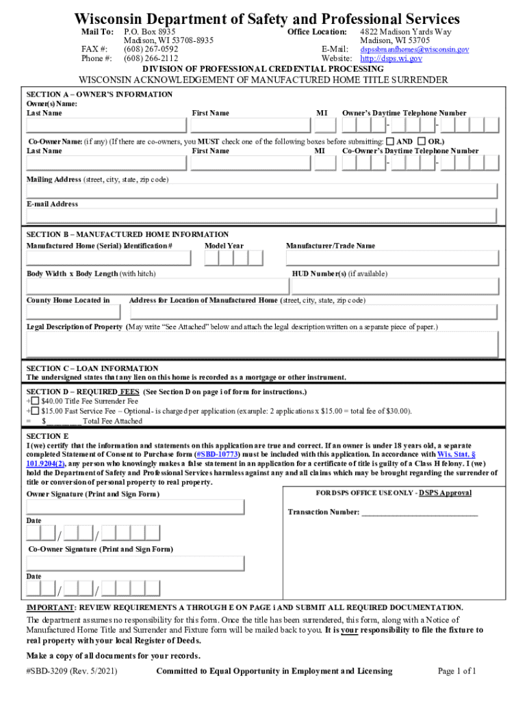
Wisconsin Department of Safety and Professional Services Mail To: Fax #: Phone #P.O. Box 8935 Madison, WI 537088935 (608) 2670592 (608) 2662112Office Location:4822 Madison Yards Way Madison, WI 53705EMail:
pdfFiller is not affiliated with any government organization

Get, Create, Make and Sign WI SBD-3209

Edit
Edit your WI SBD-3209 form online
Type text, complete fillable fields, insert images, highlight or blackout data for discretion, add comments, and more.
Add
Add your legally-binding signature
Draw or type your signature, upload a signature image, or capture it with your digital camera.
Share
Share your form instantly
Email, fax, or share your WI SBD-3209 form via URL. You can also download, print, or export forms to your preferred cloud storage service.

How to edit WI SBD-3209 online

9.5
Ease of Setup
pdfFiller User Ratings on G2
9.0
Ease of Use
pdfFiller User Ratings on G2
Use the instructions below to start using our professional PDF editor:
1
Log in to account. Click on Start Free Trial and register a profile if you don't have one.
2
Prepare a file. Use the Add New button to start a new project. Then, using your device, upload your file to the system by importing it from internal mail, the cloud, or adding its URL.
3
Edit WI SBD-3209. Rearrange and rotate pages, insert new and alter existing texts, add new objects, and take advantage of other helpful tools. Click Done to apply changes and return to your Dashboard. Go to the Documents tab to access merging, splitting, locking, or unlocking functions.
4
Save your file. Choose it from the list of records. Then, shift the pointer to the right toolbar and select one of the several exporting methods: save it in multiple formats, download it as a PDF, email it, or save it to the cloud.
pdfFiller makes working with documents easier than you could ever imagine. Try it for yourself by creating an account!

Uncompromising security for your PDF editing and eSignature needs

Your private information is safe with pdfFiller. We employ end-to-end encryption, secure cloud storage, and advanced access control to protect your documents and maintain regulatory compliance.
GDPR
AICPA SOC 2
PCI
HIPAA
CCPA
FDA

WI SBD-3209 Form Versions

Version
Form Popularity
Fillable & printabley
4.1 Satisfied (52 Votes)
4.8 Satisfied (50 Votes)

How to fill out WI SBD-3209

Illustration

How to fill out WI SBD-3209

01
Obtain a copy of the WI SBD-3209 form from the Wisconsin Department of Administration website.
02
Read the instructions provided on the form carefully to understand the requirements.
03
Fill in the applicant's information in the designated fields, including name, address, and contact details.
04
Provide a detailed description of the project or purpose for which the form is being submitted.
05
Include any relevant financial information or budget details as required by the form.
06
Review the completed form for accuracy and ensure all necessary signatures are included.
07
Submit the form to the appropriate agency or department as indicated in the instructions.

Who needs WI SBD-3209?

01
Individuals or organizations applying for a specific permit or grant in Wisconsin.
02
Businesses seeking to fulfill legal requirements for state projects or funding.
03
Nonprofits and community organizations applying for state resources or support.
Fill form : Try Risk Free
Users Most Likely To Recommend - Summer 2025
Grid Leader in Small-Business - Summer 2025
High Performer - Summer 2025
Regional Leader - Summer 2025
Easiest To Do Business With - Summer 2025
Best Meets Requirements- Summer 2025
Rate the form
4.1
Satisfied
52 Votes

For pdfFiller’s FAQs

Below is a list of the most common customer questions. If you can’t find an answer to your question, please don’t hesitate to reach out to us.

Using pdfFiller with Google Docs allows you to create, amend, and sign documents straight from your Google Drive. The add-on turns your WI SBD-3209 into a dynamic fillable form that you can manage and eSign from anywhere.
Yes. With pdfFiller for Chrome, you can eSign documents and utilize the PDF editor all in one spot. Create a legally enforceable eSignature by sketching, typing, or uploading a handwritten signature image. You may eSign your WI SBD-3209 in seconds.
The easiest way to edit documents on a mobile device is using pdfFiller’s mobile-native apps for iOS and Android. You can download those from the Apple Store and Google Play, respectively. You can learn more about the apps here. Install and log in to the application to start editing WI SBD-3209.
WI SBD-3209 is a form used in Wisconsin for the reporting of certain business information, typically related to economic development incentives or compliance.
Businesses that are seeking economic development incentives or are required to report certain business activity as mandated by Wisconsin state regulations must file WI SBD-3209.
To fill out WI SBD-3209, businesses should provide accurate information regarding their company details, financial metrics, and other required data as specified in the form instructions.
The purpose of WI SBD-3209 is to collect necessary information from businesses to assess their eligibility for state-supported economic development programs and ensure compliance with regulatory requirements.
The information that must be reported on WI SBD-3209 includes business name, address, tax identification number, economic activity details, and any financial data relevant to the incentives being applied for.
Fill out your WI SBD-3209 online with pdfFiller!

pdfFiller is an end-to-end solution for managing, creating, and editing documents and forms in the cloud. Save time and hassle by preparing your tax forms online.

Get started now
Form preview
If you believe that this page should be taken down, please follow our DMCA take down process here .
This form may include fields for payment information. Data entered in these fields is not covered by PCI DSS compliance.