
Get the free CannabisGrow-Harv-CultivateSupplementalForm.doc
Show details
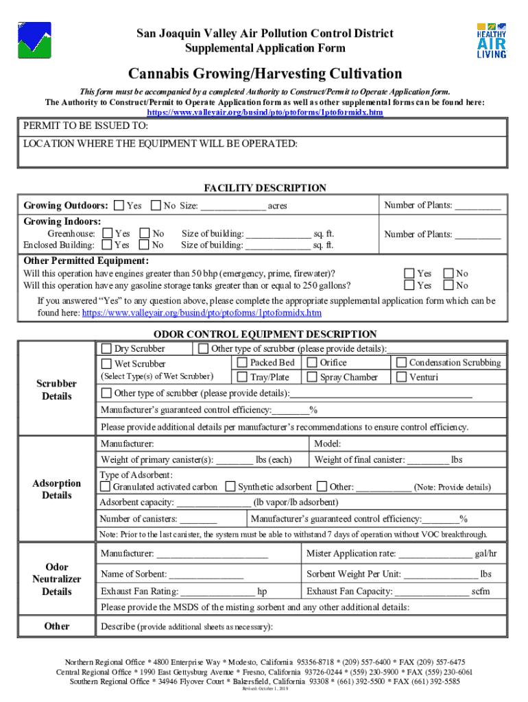
San Joaquin Valley Air Pollution Control District Supplemental Application FormCannabis Growing/Harvesting CultivationThis form must be accompanied by a completed Authority to Construct/Permit to
We are not affiliated with any brand or entity on this form
Get, Create, Make and Sign cannabisgrow-harv-cultivatesupplementalformdoc

Edit your cannabisgrow-harv-cultivatesupplementalformdoc form online
Type text, complete fillable fields, insert images, highlight or blackout data for discretion, add comments, and more.

Add your legally-binding signature
Draw or type your signature, upload a signature image, or capture it with your digital camera.

Share your form instantly
Email, fax, or share your cannabisgrow-harv-cultivatesupplementalformdoc form via URL. You can also download, print, or export forms to your preferred cloud storage service.
Editing cannabisgrow-harv-cultivatesupplementalformdoc online
Here are the steps you need to follow to get started with our professional PDF editor:
1
Register the account. Begin by clicking Start Free Trial and create a profile if you are a new user.
2
Upload a document. Select Add New on your Dashboard and transfer a file into the system in one of the following ways: by uploading it from your device or importing from the cloud, web, or internal mail. Then, click Start editing.
3
Edit cannabisgrow-harv-cultivatesupplementalformdoc. Rearrange and rotate pages, add and edit text, and use additional tools. To save changes and return to your Dashboard, click Done. The Documents tab allows you to merge, divide, lock, or unlock files.
4
Save your file. Select it from your records list. Then, click the right toolbar and select one of the various exporting options: save in numerous formats, download as PDF, email, or cloud.
With pdfFiller, it's always easy to deal with documents.
Uncompromising security for your PDF editing and eSignature needs
Your private information is safe with pdfFiller. We employ end-to-end encryption, secure cloud storage, and advanced access control to protect your documents and maintain regulatory compliance.
How to fill out cannabisgrow-harv-cultivatesupplementalformdoc

How to fill out cannabisgrow-harv-cultivatesupplementalformdoc
01
Begin by downloading the cannabisgrow-harv-cultivatesupplementalformdoc.
02
Fill out the required fields with accurate information.
03
Review the form for any errors or missing information.
04
Save the completed form for your records.
05
Submit the form as directed by the organization or individual requesting it.
Who needs cannabisgrow-harv-cultivatesupplementalformdoc?
01
Individuals or organizations involved in cannabis cultivation and harvesting may need the cannabisgrow-harv-cultivatesupplementalformdoc to document their activities and compliance with regulations.
Fill
form
: Try Risk Free
For pdfFiller’s FAQs
Below is a list of the most common customer questions. If you can’t find an answer to your question, please don’t hesitate to reach out to us.
How can I manage my cannabisgrow-harv-cultivatesupplementalformdoc directly from Gmail?
It's easy to use pdfFiller's Gmail add-on to make and edit your cannabisgrow-harv-cultivatesupplementalformdoc and any other documents you get right in your email. You can also eSign them. Take a look at the Google Workspace Marketplace and get pdfFiller for Gmail. Get rid of the time-consuming steps and easily manage your documents and eSignatures with the help of an app.
How do I complete cannabisgrow-harv-cultivatesupplementalformdoc online?
pdfFiller has made it easy to fill out and sign cannabisgrow-harv-cultivatesupplementalformdoc. You can use the solution to change and move PDF content, add fields that can be filled in, and sign the document electronically. Start a free trial of pdfFiller, the best tool for editing and filling in documents.
How can I edit cannabisgrow-harv-cultivatesupplementalformdoc on a smartphone?
You may do so effortlessly with pdfFiller's iOS and Android apps, which are available in the Apple Store and Google Play Store, respectively. You may also obtain the program from our website: https://edit-pdf-ios-android.pdffiller.com/. Open the application, sign in, and begin editing cannabisgrow-harv-cultivatesupplementalformdoc right away.
What is cannabisgrow-harv-cultivatesupplementalformdoc?
cannabisgrow-harv-cultivatesupplementalformdoc is a supplemental form used to report specific information related to the cultivation and harvesting of cannabis.
Who is required to file cannabisgrow-harv-cultivatesupplementalformdoc?
Individuals or entities engaged in the cultivation and harvesting of cannabis that are subject to state regulations are required to file this form.
How to fill out cannabisgrow-harv-cultivatesupplementalformdoc?
To fill out the form, provide accurate details regarding the cultivation process, including the type of cannabis grown, quantities harvested, and any other specific information required by the jurisdiction.
What is the purpose of cannabisgrow-harv-cultivatesupplementalformdoc?
The purpose of the form is to ensure compliance with local and state laws by documenting production practices and harvest outcomes.
What information must be reported on cannabisgrow-harv-cultivatesupplementalformdoc?
Information that must be reported includes the amount of cannabis cultivated, details of the harvesting process, and any relevant data on sales or distribution.
Fill out your cannabisgrow-harv-cultivatesupplementalformdoc online with pdfFiller!
pdfFiller is an end-to-end solution for managing, creating, and editing documents and forms in the cloud. Save time and hassle by preparing your tax forms online.

Cannabisgrow-Harv-Cultivatesupplementalformdoc is not the form you're looking for?Search for another form here.
Relevant keywords
Related Forms
If you believe that this page should be taken down, please follow our DMCA take down process
here
.
This form may include fields for payment information. Data entered in these fields is not covered by PCI DSS compliance.