Get the free Name of Water System Water Quality Report
Show details
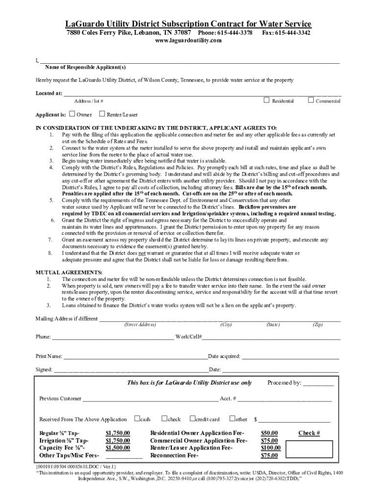
LaGuardo Utility District Subscription Contract for Water Service 7880 Coles Ferry Pike, Lebanon, TN 37087 Phone: 6154443378Fax: 6154443342www.laguardoutility.com I, ___ Name of Responsible Applicant(s)
We are not affiliated with any brand or entity on this form
Get, Create, Make and Sign name of water system
Edit your name of water system form online
Type text, complete fillable fields, insert images, highlight or blackout data for discretion, add comments, and more.
Add your legally-binding signature
Draw or type your signature, upload a signature image, or capture it with your digital camera.
Share your form instantly
Email, fax, or share your name of water system form via URL. You can also download, print, or export forms to your preferred cloud storage service.
Editing name of water system online
Follow the guidelines below to benefit from a competent PDF editor:
1
Create an account. Begin by choosing Start Free Trial and, if you are a new user, establish a profile.
2
Prepare a file. Use the Add New button to start a new project. Then, using your device, upload your file to the system by importing it from internal mail, the cloud, or adding its URL.
3
Edit name of water system. Replace text, adding objects, rearranging pages, and more. Then select the Documents tab to combine, divide, lock or unlock the file.
4
Get your file. When you find your file in the docs list, click on its name and choose how you want to save it. To get the PDF, you can save it, send an email with it, or move it to the cloud.
It's easier to work with documents with pdfFiller than you could have believed. Sign up for a free account to view.
Uncompromising security for your PDF editing and eSignature needs
Your private information is safe with pdfFiller. We employ end-to-end encryption, secure cloud storage, and advanced access control to protect your documents and maintain regulatory compliance.
How to fill out name of water system
How to fill out name of water system
01
Write the full and official name of the water system.
02
If there are multiple parts to the water system, specify each part separately.
03
Include any relevant details such as location or size of the water system.
Who needs name of water system?
01
Government agencies responsible for water management
02
Water treatment facilities
03
Research organizations studying water systems
Fill
form
: Try Risk Free
For pdfFiller’s FAQs
Below is a list of the most common customer questions. If you can’t find an answer to your question, please don’t hesitate to reach out to us.
How can I send name of water system to be eSigned by others?
When you're ready to share your name of water system, you can swiftly email it to others and receive the eSigned document back. You may send your PDF through email, fax, text message, or USPS mail, or you can notarize it online. All of this may be done without ever leaving your account.
How do I make changes in name of water system?
With pdfFiller, you may not only alter the content but also rearrange the pages. Upload your name of water system and modify it with a few clicks. The editor lets you add photos, sticky notes, text boxes, and more to PDFs.
Can I sign the name of water system electronically in Chrome?
Yes. By adding the solution to your Chrome browser, you may use pdfFiller to eSign documents while also enjoying all of the PDF editor's capabilities in one spot. Create a legally enforceable eSignature by sketching, typing, or uploading a photo of your handwritten signature using the extension. Whatever option you select, you'll be able to eSign your name of water system in seconds.
What is name of water system?
The name of a water system refers to the designated title or identification used for a community or public water supply structure.
Who is required to file name of water system?
Public water system operators or owners are required to file the name of the water system.
How to fill out name of water system?
To fill out the name of the water system, provide the official name as registered with local or state authorities, ensuring accuracy and consistency with existing records.
What is the purpose of name of water system?
The purpose of the name of the water system is for identification, regulatory compliance, and to facilitate communication between water suppliers and state or federal agencies.
What information must be reported on name of water system?
Information that must be reported includes the official name of the system, its location, type of system, ownership details, and any relevant contact information.
Fill out your name of water system online with pdfFiller!
pdfFiller is an end-to-end solution for managing, creating, and editing documents and forms in the cloud. Save time and hassle by preparing your tax forms online.
Name Of Water System is not the form you're looking for?Search for another form here.
Relevant keywords
Related Forms
If you believe that this page should be taken down, please follow our DMCA take down process
here
.
This form may include fields for payment information. Data entered in these fields is not covered by PCI DSS compliance.