Get the free NY Home Energy Rebate Program - Benefits, Eligibility ...
Show details
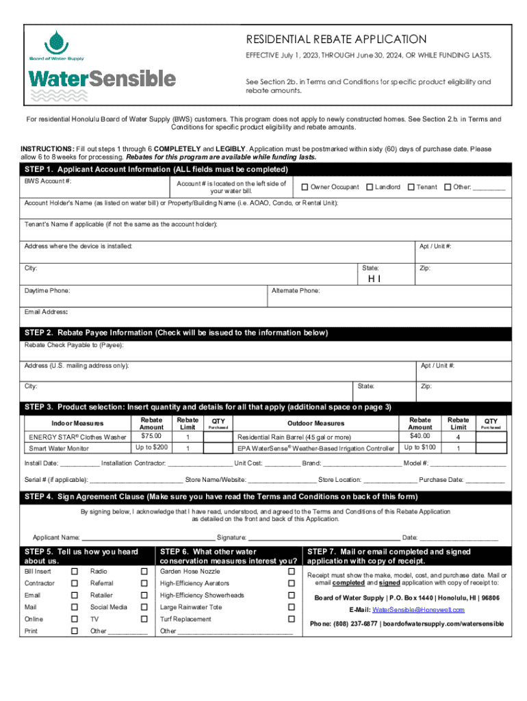
RESIDENTIAL REBATE APPLICATION EFFECTIVE July 1, 2023, THROUGH June 30, 2024, OR WHILE FUNDING LASTS. See Section 2b. in Terms and Conditions for specific product eligibility and rebate amounts.For
We are not affiliated with any brand or entity on this form
Get, Create, Make and Sign ny home energy rebate
Edit your ny home energy rebate form online
Type text, complete fillable fields, insert images, highlight or blackout data for discretion, add comments, and more.
Add your legally-binding signature
Draw or type your signature, upload a signature image, or capture it with your digital camera.
Share your form instantly
Email, fax, or share your ny home energy rebate form via URL. You can also download, print, or export forms to your preferred cloud storage service.
Editing ny home energy rebate online
Use the instructions below to start using our professional PDF editor:
1
Log in to account. Click on Start Free Trial and register a profile if you don't have one yet.
2
Upload a file. Select Add New on your Dashboard and upload a file from your device or import it from the cloud, online, or internal mail. Then click Edit.
3
Edit ny home energy rebate. Add and replace text, insert new objects, rearrange pages, add watermarks and page numbers, and more. Click Done when you are finished editing and go to the Documents tab to merge, split, lock or unlock the file.
4
Get your file. Select the name of your file in the docs list and choose your preferred exporting method. You can download it as a PDF, save it in another format, send it by email, or transfer it to the cloud.
Uncompromising security for your PDF editing and eSignature needs
Your private information is safe with pdfFiller. We employ end-to-end encryption, secure cloud storage, and advanced access control to protect your documents and maintain regulatory compliance.
How to fill out ny home energy rebate
How to fill out ny home energy rebate
01
Determine if you are eligible for the NY home energy rebate by checking the qualifications on the official website.
02
Gather all necessary documents such as proof of income, utility bills, and verification of energy efficiency improvements.
03
Fill out the rebate application form completely and accurately, double-checking all information before submission.
04
Submit the completed application along with supporting documents either online or by mail as instructed.
05
Wait for confirmation of receipt and processing of your application, and follow up if necessary.
Who needs ny home energy rebate?
01
Residents of New York state who own or rent a home and are looking to make energy-efficient improvements or upgrades.
02
Individuals or families who meet the income requirements and are interested in receiving financial assistance for energy-saving measures.
Fill
form
: Try Risk Free
For pdfFiller’s FAQs
Below is a list of the most common customer questions. If you can’t find an answer to your question, please don’t hesitate to reach out to us.
Where do I find ny home energy rebate?
It's simple using pdfFiller, an online document management tool. Use our huge online form collection (over 25M fillable forms) to quickly discover the ny home energy rebate. Open it immediately and start altering it with sophisticated capabilities.
How do I complete ny home energy rebate online?
Filling out and eSigning ny home energy rebate is now simple. The solution allows you to change and reorganize PDF text, add fillable fields, and eSign the document. Start a free trial of pdfFiller, the best document editing solution.
How do I fill out ny home energy rebate using my mobile device?
Use the pdfFiller mobile app to complete and sign ny home energy rebate on your mobile device. Visit our web page (https://edit-pdf-ios-android.pdffiller.com/) to learn more about our mobile applications, the capabilities you’ll have access to, and the steps to take to get up and running.
What is ny home energy rebate?
The NY Home Energy Rebate is a program designed to provide financial incentives to homeowners in New York for making energy-efficient upgrades to their homes.
Who is required to file ny home energy rebate?
Homeowners who have made qualifying energy-efficient improvements to their homes are required to file for the NY Home Energy Rebate.
How to fill out ny home energy rebate?
To fill out the NY Home Energy Rebate, homeowners must complete the designated application form, providing necessary documentation about the energy-efficient upgrades and any related receipts.
What is the purpose of ny home energy rebate?
The purpose of the NY Home Energy Rebate is to encourage homeowners to invest in energy efficiency measures, thereby reducing energy consumption and lowering utility costs.
What information must be reported on ny home energy rebate?
Homeowners must report details about the installation, the cost of the improvements, and supporting documentation such as receipts and energy audit results.
Fill out your ny home energy rebate online with pdfFiller!
pdfFiller is an end-to-end solution for managing, creating, and editing documents and forms in the cloud. Save time and hassle by preparing your tax forms online.
Ny Home Energy Rebate is not the form you're looking for?Search for another form here.
Relevant keywords
Related Forms
If you believe that this page should be taken down, please follow our DMCA take down process
here
.
This form may include fields for payment information. Data entered in these fields is not covered by PCI DSS compliance.