
Get the free Ohio Lead Monthly Summary Lead Inspection/Risk ... - odh ohio
Show details
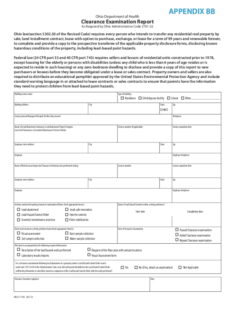
APPENDIX BB Ohio Department of HealthClearance Examination Report
As Required by Ohio Administrative Code 370132Ohio law(section 5302.30 of the Revised Code) requires every person who intends to transfer
We are not affiliated with any brand or entity on this form
Get, Create, Make and Sign ohio lead monthly summary

Edit your ohio lead monthly summary form online
Type text, complete fillable fields, insert images, highlight or blackout data for discretion, add comments, and more.

Add your legally-binding signature
Draw or type your signature, upload a signature image, or capture it with your digital camera.

Share your form instantly
Email, fax, or share your ohio lead monthly summary form via URL. You can also download, print, or export forms to your preferred cloud storage service.
How to edit ohio lead monthly summary online
Follow the guidelines below to take advantage of the professional PDF editor:
1
Create an account. Begin by choosing Start Free Trial and, if you are a new user, establish a profile.
2
Prepare a file. Use the Add New button. Then upload your file to the system from your device, importing it from internal mail, the cloud, or by adding its URL.
3
Edit ohio lead monthly summary. Replace text, adding objects, rearranging pages, and more. Then select the Documents tab to combine, divide, lock or unlock the file.
4
Get your file. Select the name of your file in the docs list and choose your preferred exporting method. You can download it as a PDF, save it in another format, send it by email, or transfer it to the cloud.
With pdfFiller, it's always easy to deal with documents.
Uncompromising security for your PDF editing and eSignature needs
Your private information is safe with pdfFiller. We employ end-to-end encryption, secure cloud storage, and advanced access control to protect your documents and maintain regulatory compliance.
How to fill out ohio lead monthly summary

How to fill out ohio lead monthly summary
01
Obtain the Ohio Lead Monthly Summary form.
02
Fill in the required information such as property address, owner information, and tenant information.
03
Provide details on the lead hazards found in the property and the actions taken to address them.
04
Make sure to include any testing or mitigation reports as supporting documentation.
05
Review the completed form for accuracy and completeness before submitting it.
Who needs ohio lead monthly summary?
01
Property owners in Ohio who have rental properties that may contain lead hazards.
02
Property managers or landlords who are required to comply with Ohio's lead safety regulations.
03
Health agencies or organizations that oversee lead hazard prevention in rental properties.
Fill
form
: Try Risk Free
For pdfFiller’s FAQs
Below is a list of the most common customer questions. If you can’t find an answer to your question, please don’t hesitate to reach out to us.
How can I modify ohio lead monthly summary without leaving Google Drive?
It is possible to significantly enhance your document management and form preparation by combining pdfFiller with Google Docs. This will allow you to generate papers, amend them, and sign them straight from your Google Drive. Use the add-on to convert your ohio lead monthly summary into a dynamic fillable form that can be managed and signed using any internet-connected device.
How do I edit ohio lead monthly summary on an iOS device?
Use the pdfFiller mobile app to create, edit, and share ohio lead monthly summary from your iOS device. Install it from the Apple Store in seconds. You can benefit from a free trial and choose a subscription that suits your needs.
How do I fill out ohio lead monthly summary on an Android device?
On an Android device, use the pdfFiller mobile app to finish your ohio lead monthly summary. The program allows you to execute all necessary document management operations, such as adding, editing, and removing text, signing, annotating, and more. You only need a smartphone and an internet connection.
What is ohio lead monthly summary?
The Ohio Lead Monthly Summary is a report that compiles the amounts of lead produced, processed, or handled in the state of Ohio on a monthly basis to ensure compliance with environmental regulations.
Who is required to file ohio lead monthly summary?
Entities engaged in lead production, processing, or handling in Ohio are required to file the Ohio Lead Monthly Summary.
How to fill out ohio lead monthly summary?
To fill out the Ohio Lead Monthly Summary, gather data on lead quantities produced or handled, complete the required sections of the form, and submit it to the appropriate regulatory body by the deadline.
What is the purpose of ohio lead monthly summary?
The purpose of the Ohio Lead Monthly Summary is to monitor and regulate lead activities to protect public health and the environment from lead exposure.
What information must be reported on ohio lead monthly summary?
The report must include quantities of lead produced, processed, or handled, as well as related activities and any compliance issues.
Fill out your ohio lead monthly summary online with pdfFiller!
pdfFiller is an end-to-end solution for managing, creating, and editing documents and forms in the cloud. Save time and hassle by preparing your tax forms online.

Ohio Lead Monthly Summary is not the form you're looking for?Search for another form here.
Relevant keywords
Related Forms
If you believe that this page should be taken down, please follow our DMCA take down process
here
.
This form may include fields for payment information. Data entered in these fields is not covered by PCI DSS compliance.