
Get the free Flood Plain Development Permit. City of Lincoln Building and Safety
Show details
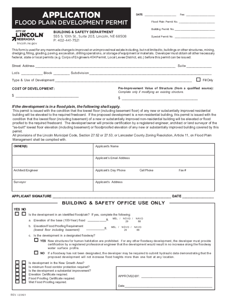
DATE: ___ Fee: ___ Flood Plain Flood Development Plain Development APPLICATION Permit Application FLOOD PLAIN DEVELOPMENT PERMIT Flood Plain Permit No. ___ DATE: ___Fee: ___Flood Plain Permit No.
We are not affiliated with any brand or entity on this form
Get, Create, Make and Sign flood plain development permit

Edit your flood plain development permit form online
Type text, complete fillable fields, insert images, highlight or blackout data for discretion, add comments, and more.

Add your legally-binding signature
Draw or type your signature, upload a signature image, or capture it with your digital camera.

Share your form instantly
Email, fax, or share your flood plain development permit form via URL. You can also download, print, or export forms to your preferred cloud storage service.
How to edit flood plain development permit online
To use the professional PDF editor, follow these steps below:
1
Log into your account. If you don't have a profile yet, click Start Free Trial and sign up for one.
2
Prepare a file. Use the Add New button to start a new project. Then, using your device, upload your file to the system by importing it from internal mail, the cloud, or adding its URL.
3
Edit flood plain development permit. Add and change text, add new objects, move pages, add watermarks and page numbers, and more. Then click Done when you're done editing and go to the Documents tab to merge or split the file. If you want to lock or unlock the file, click the lock or unlock button.
4
Save your file. Choose it from the list of records. Then, shift the pointer to the right toolbar and select one of the several exporting methods: save it in multiple formats, download it as a PDF, email it, or save it to the cloud.
With pdfFiller, it's always easy to work with documents. Try it out!
Uncompromising security for your PDF editing and eSignature needs
Your private information is safe with pdfFiller. We employ end-to-end encryption, secure cloud storage, and advanced access control to protect your documents and maintain regulatory compliance.
How to fill out flood plain development permit

How to fill out flood plain development permit
01
Obtain an application form for flood plain development permit from the local government office.
02
Fill out the application form completely, providing information such as project details, location, design plans, and purpose of development.
03
Attach any necessary supporting documents, such as site plans, elevation drawings, and drainage plans.
04
Submit the completed application form and supporting documents to the local government office along with the required fees.
05
Wait for the application to be reviewed and approved by the relevant authorities before proceeding with the development.
Who needs flood plain development permit?
01
Anyone who wishes to undertake development in a designated flood plain area needs to obtain a flood plain development permit.
Fill
form
: Try Risk Free
For pdfFiller’s FAQs
Below is a list of the most common customer questions. If you can’t find an answer to your question, please don’t hesitate to reach out to us.
How can I manage my flood plain development permit directly from Gmail?
You can use pdfFiller’s add-on for Gmail in order to modify, fill out, and eSign your flood plain development permit along with other documents right in your inbox. Find pdfFiller for Gmail in Google Workspace Marketplace. Use time you spend on handling your documents and eSignatures for more important things.
How can I modify flood plain development permit without leaving Google Drive?
Using pdfFiller with Google Docs allows you to create, amend, and sign documents straight from your Google Drive. The add-on turns your flood plain development permit into a dynamic fillable form that you can manage and eSign from anywhere.
How do I execute flood plain development permit online?
pdfFiller has made it easy to fill out and sign flood plain development permit. You can use the solution to change and move PDF content, add fields that can be filled in, and sign the document electronically. Start a free trial of pdfFiller, the best tool for editing and filling in documents.
What is flood plain development permit?
A flood plain development permit is an authorization required for new construction or substantial improvements to existing structures within designated flood plains to ensure compliance with local regulations and flood management practices.
Who is required to file flood plain development permit?
Individuals or organizations intending to develop, modify, or improve property located within a designated flood plain are required to file a flood plain development permit.
How to fill out flood plain development permit?
To fill out a flood plain development permit, one needs to provide details such as the location of the property, type of development, engineering surveys, flood elevation data, and any additional local requirements as stipulated by the relevant authority.
What is the purpose of flood plain development permit?
The purpose of a flood plain development permit is to minimize the risk of flood damage, protect public safety, and ensure that construction practices are compatible with local floodplain management goals and regulations.
What information must be reported on flood plain development permit?
The information that must be reported includes the property address, description of the proposed work, flood zone designation, existing and proposed elevations, and compliance with local zoning and floodplain regulations.
Fill out your flood plain development permit online with pdfFiller!
pdfFiller is an end-to-end solution for managing, creating, and editing documents and forms in the cloud. Save time and hassle by preparing your tax forms online.

Flood Plain Development Permit is not the form you're looking for?Search for another form here.
Relevant keywords
Related Forms
If you believe that this page should be taken down, please follow our DMCA take down process
here
.
This form may include fields for payment information. Data entered in these fields is not covered by PCI DSS compliance.