
Get the free Santa Fe Hospital - khri kansasgis
Show details
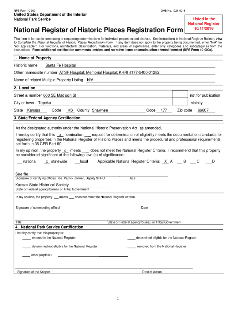
NPS Form 10900OMB No. 10240018United States Department of the Interior National Park ServiceListed in the National Register 10/11/2016National Register of Historic Places Registration FormThis form
We are not affiliated with any brand or entity on this form
Get, Create, Make and Sign santa fe hospital

Edit your santa fe hospital form online
Type text, complete fillable fields, insert images, highlight or blackout data for discretion, add comments, and more.

Add your legally-binding signature
Draw or type your signature, upload a signature image, or capture it with your digital camera.

Share your form instantly
Email, fax, or share your santa fe hospital form via URL. You can also download, print, or export forms to your preferred cloud storage service.
Editing santa fe hospital online
To use the professional PDF editor, follow these steps:
1
Create an account. Begin by choosing Start Free Trial and, if you are a new user, establish a profile.
2
Prepare a file. Use the Add New button. Then upload your file to the system from your device, importing it from internal mail, the cloud, or by adding its URL.
3
Edit santa fe hospital. Add and replace text, insert new objects, rearrange pages, add watermarks and page numbers, and more. Click Done when you are finished editing and go to the Documents tab to merge, split, lock or unlock the file.
4
Save your file. Choose it from the list of records. Then, shift the pointer to the right toolbar and select one of the several exporting methods: save it in multiple formats, download it as a PDF, email it, or save it to the cloud.
pdfFiller makes dealing with documents a breeze. Create an account to find out!
Uncompromising security for your PDF editing and eSignature needs
Your private information is safe with pdfFiller. We employ end-to-end encryption, secure cloud storage, and advanced access control to protect your documents and maintain regulatory compliance.
How to fill out santa fe hospital

How to fill out santa fe hospital
01
Obtain the necessary forms from the admissions desk or online.
02
Fill out the forms completely with personal information, medical history, and insurance details.
03
Make sure to provide accurate and up-to-date information to ensure proper medical care.
04
If you have any questions or need assistance, don't hesitate to ask the hospital staff for help.
Who needs santa fe hospital?
01
Individuals who require medical treatment or care.
02
People seeking emergency medical services.
03
Patients with chronic illnesses or conditions in need of ongoing medical attention.
Fill
form
: Try Risk Free
For pdfFiller’s FAQs
Below is a list of the most common customer questions. If you can’t find an answer to your question, please don’t hesitate to reach out to us.
How do I modify my santa fe hospital in Gmail?
santa fe hospital and other documents can be changed, filled out, and signed right in your Gmail inbox. You can use pdfFiller's add-on to do this, as well as other things. When you go to Google Workspace, you can find pdfFiller for Gmail. You should use the time you spend dealing with your documents and eSignatures for more important things, like going to the gym or going to the dentist.
How do I edit santa fe hospital online?
The editing procedure is simple with pdfFiller. Open your santa fe hospital in the editor. You may also add photos, draw arrows and lines, insert sticky notes and text boxes, and more.
How can I edit santa fe hospital on a smartphone?
The best way to make changes to documents on a mobile device is to use pdfFiller's apps for iOS and Android. You may get them from the Apple Store and Google Play. Learn more about the apps here. To start editing santa fe hospital, you need to install and log in to the app.
What is santa fe hospital?
Santa Fe Hospital is a medical facility located in Santa Fe.
Who is required to file santa fe hospital?
The hospital administrators or authorized personnel are required to file Santa Fe Hospital.
How to fill out santa fe hospital?
Santa Fe Hospital can be filled out by providing detailed information about the hospital operations and patient data.
What is the purpose of santa fe hospital?
The purpose of Santa Fe Hospital is to report relevant information about the hospital's activities and patient care.
What information must be reported on santa fe hospital?
Information such as patient admissions, discharges, treatments, and outcomes must be reported on Santa Fe Hospital.
Fill out your santa fe hospital online with pdfFiller!
pdfFiller is an end-to-end solution for managing, creating, and editing documents and forms in the cloud. Save time and hassle by preparing your tax forms online.

Santa Fe Hospital is not the form you're looking for?Search for another form here.
Relevant keywords
Related Forms
If you believe that this page should be taken down, please follow our DMCA take down process
here
.
This form may include fields for payment information. Data entered in these fields is not covered by PCI DSS compliance.