Get the free NOTICE OF INTENT TO COMPLY MAINE CONSTRUCTION ...
Show details
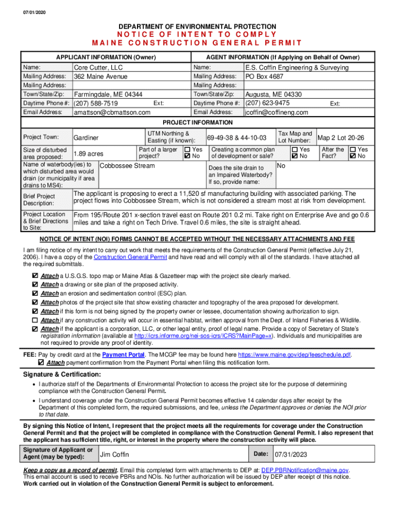
07/01/2020DEPARTMENT OF ENVIRONMENTAL PROTECTIONNOTICE OF INTENT TO COMPLY MAINE CONSTRUCTION GENERAL PERMIT APPLICANT INFORMATION (Owner) Name: Mailing Address:Core Cutter, LLC 362 Maine AvenueName:
We are not affiliated with any brand or entity on this form
Get, Create, Make and Sign notice of intent to
Edit your notice of intent to form online
Type text, complete fillable fields, insert images, highlight or blackout data for discretion, add comments, and more.
Add your legally-binding signature
Draw or type your signature, upload a signature image, or capture it with your digital camera.
Share your form instantly
Email, fax, or share your notice of intent to form via URL. You can also download, print, or export forms to your preferred cloud storage service.
How to edit notice of intent to online
Use the instructions below to start using our professional PDF editor:
1
Set up an account. If you are a new user, click Start Free Trial and establish a profile.
2
Upload a document. Select Add New on your Dashboard and transfer a file into the system in one of the following ways: by uploading it from your device or importing from the cloud, web, or internal mail. Then, click Start editing.
3
Edit notice of intent to. Rearrange and rotate pages, add new and changed texts, add new objects, and use other useful tools. When you're done, click Done. You can use the Documents tab to merge, split, lock, or unlock your files.
4
Save your file. Select it from your list of records. Then, move your cursor to the right toolbar and choose one of the exporting options. You can save it in multiple formats, download it as a PDF, send it by email, or store it in the cloud, among other things.
pdfFiller makes working with documents easier than you could ever imagine. Create an account to find out for yourself how it works!
Uncompromising security for your PDF editing and eSignature needs
Your private information is safe with pdfFiller. We employ end-to-end encryption, secure cloud storage, and advanced access control to protect your documents and maintain regulatory compliance.
How to fill out notice of intent to
How to fill out notice of intent to
01
Obtain the official notice of intent to form from the relevant department or website.
02
Fill out all the required fields accurately, including your personal information and the purpose of the notice.
03
Double check the information for errors or missing details before submitting.
04
Submit the notice of intent to the appropriate recipient or office as per the instructions provided.
Who needs notice of intent to?
01
Individuals or organizations planning to officially declare their intention to form a specific entity or take a particular action may need to fill out a notice of intent to.
Fill
form
: Try Risk Free
For pdfFiller’s FAQs
Below is a list of the most common customer questions. If you can’t find an answer to your question, please don’t hesitate to reach out to us.
How can I send notice of intent to to be eSigned by others?
When your notice of intent to is finished, send it to recipients securely and gather eSignatures with pdfFiller. You may email, text, fax, mail, or notarize a PDF straight from your account. Create an account today to test it.
How can I edit notice of intent to on a smartphone?
The pdfFiller mobile applications for iOS and Android are the easiest way to edit documents on the go. You may get them from the Apple Store and Google Play. More info about the applications here. Install and log in to edit notice of intent to.
How do I edit notice of intent to on an Android device?
Yes, you can. With the pdfFiller mobile app for Android, you can edit, sign, and share notice of intent to on your mobile device from any location; only an internet connection is needed. Get the app and start to streamline your document workflow from anywhere.
What is a notice of intent to?
A notice of intent to is a formal announcement or declaration of an individual or entity's intention to take a specific action.
Who is required to file notice of intent to?
Certain individuals or entities may be required to file a notice of intent to depending on the specific regulations or requirements set forth by the governing body.
How to fill out a notice of intent to?
To fill out a notice of intent to, individuals or entities must provide the required information as outlined in the specific notice form, including personal or business details, proposed action, and any supporting documentation.
What is the purpose of a notice of intent to?
The purpose of a notice of intent to is to formally notify relevant parties of an individual or entity's intention to take a specific action, which may have legal or regulatory implications.
What information must be reported on a notice of intent to?
The information required to be reported on a notice of intent to may vary depending on the specific requirements, but typically includes personal or business details, the proposed action, and any supporting documentation.
Fill out your notice of intent to online with pdfFiller!
pdfFiller is an end-to-end solution for managing, creating, and editing documents and forms in the cloud. Save time and hassle by preparing your tax forms online.
Notice Of Intent To is not the form you're looking for?Search for another form here.
Relevant keywords
Related Forms
If you believe that this page should be taken down, please follow our DMCA take down process
here
.
This form may include fields for payment information. Data entered in these fields is not covered by PCI DSS compliance.