
Get the free WILTON ZONING BOARD OF APPEALS - RESIDENTIAL VARIANCE APPLICATION - ZBA#
Show details
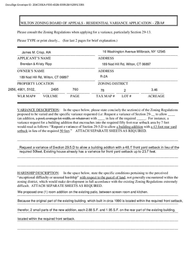
DocuSign Envelope ID: 2D4C30EAF930432B93982B1526FE3365WILTON ZONING BOARD OF APPEALS RESIDENTIAL VARIANCE APPLICATION CBA# Please consult the Zoning Regulations when applying for a variance, particularly
We are not affiliated with any brand or entity on this form
Get, Create, Make and Sign wilton zoning board of

Edit your wilton zoning board of form online
Type text, complete fillable fields, insert images, highlight or blackout data for discretion, add comments, and more.

Add your legally-binding signature
Draw or type your signature, upload a signature image, or capture it with your digital camera.

Share your form instantly
Email, fax, or share your wilton zoning board of form via URL. You can also download, print, or export forms to your preferred cloud storage service.
Editing wilton zoning board of online
In order to make advantage of the professional PDF editor, follow these steps below:
1
Check your account. If you don't have a profile yet, click Start Free Trial and sign up for one.
2
Prepare a file. Use the Add New button. Then upload your file to the system from your device, importing it from internal mail, the cloud, or by adding its URL.
3
Edit wilton zoning board of. Add and change text, add new objects, move pages, add watermarks and page numbers, and more. Then click Done when you're done editing and go to the Documents tab to merge or split the file. If you want to lock or unlock the file, click the lock or unlock button.
4
Save your file. Select it from your records list. Then, click the right toolbar and select one of the various exporting options: save in numerous formats, download as PDF, email, or cloud.
The use of pdfFiller makes dealing with documents straightforward. Now is the time to try it!
Uncompromising security for your PDF editing and eSignature needs
Your private information is safe with pdfFiller. We employ end-to-end encryption, secure cloud storage, and advanced access control to protect your documents and maintain regulatory compliance.
How to fill out wilton zoning board of

How to fill out wilton zoning board of
01
Obtain a copy of the Wilton zoning board of application form from the Wilton town website or office.
02
Fill out all the required fields on the application form, including details about the property in question and the reason for requesting a zoning variance.
03
Gather any supporting documents or evidence that may help your case, such as property surveys, architectural drawings, or letters of support from neighbors.
04
Submit the completed application form and supporting documents to the Wilton zoning board of office, along with any required fees.
05
Attend the scheduled zoning board of meeting to present your case and answer any questions from board members or the public.
Who needs wilton zoning board of?
01
Property owners in Wilton who wish to request a zoning variance or special exception for their property.
02
Developers or builders in Wilton who need approval for a development project that does not meet current zoning regulations.
Fill
form
: Try Risk Free
For pdfFiller’s FAQs
Below is a list of the most common customer questions. If you can’t find an answer to your question, please don’t hesitate to reach out to us.
How do I execute wilton zoning board of online?
Filling out and eSigning wilton zoning board of is now simple. The solution allows you to change and reorganize PDF text, add fillable fields, and eSign the document. Start a free trial of pdfFiller, the best document editing solution.
How do I edit wilton zoning board of straight from my smartphone?
The pdfFiller apps for iOS and Android smartphones are available in the Apple Store and Google Play Store. You may also get the program at https://edit-pdf-ios-android.pdffiller.com/. Open the web app, sign in, and start editing wilton zoning board of.
How can I fill out wilton zoning board of on an iOS device?
Get and install the pdfFiller application for iOS. Next, open the app and log in or create an account to get access to all of the solution’s editing features. To open your wilton zoning board of, upload it from your device or cloud storage, or enter the document URL. After you complete all of the required fields within the document and eSign it (if that is needed), you can save it or share it with others.
What is wilton zoning board of?
The Wilton Zoning Board of is responsible for reviewing zoning regulations and hearing appeals related to zoning issues.
Who is required to file wilton zoning board of?
Property owners, developers, or individuals seeking to make changes to property that may require a zoning variance.
How to fill out wilton zoning board of?
To fill out the Wilton Zoning Board of form, applicants must provide details about the property, proposed changes, and reasoning for requesting a variance.
What is the purpose of wilton zoning board of?
The purpose of the Wilton Zoning Board of is to ensure that development and land use in the town comply with zoning regulations and to provide a fair process for appeals.
What information must be reported on wilton zoning board of?
Information such as property address, proposed changes, justification for variance, and any supporting documents must be reported on the Wilton Zoning Board of form.
Fill out your wilton zoning board of online with pdfFiller!
pdfFiller is an end-to-end solution for managing, creating, and editing documents and forms in the cloud. Save time and hassle by preparing your tax forms online.

Wilton Zoning Board Of is not the form you're looking for?Search for another form here.
Relevant keywords
Related Forms
If you believe that this page should be taken down, please follow our DMCA take down process
here
.
This form may include fields for payment information. Data entered in these fields is not covered by PCI DSS compliance.