Get the free 12 Eagle Ridge, Gisborne VIC 3437
Show details
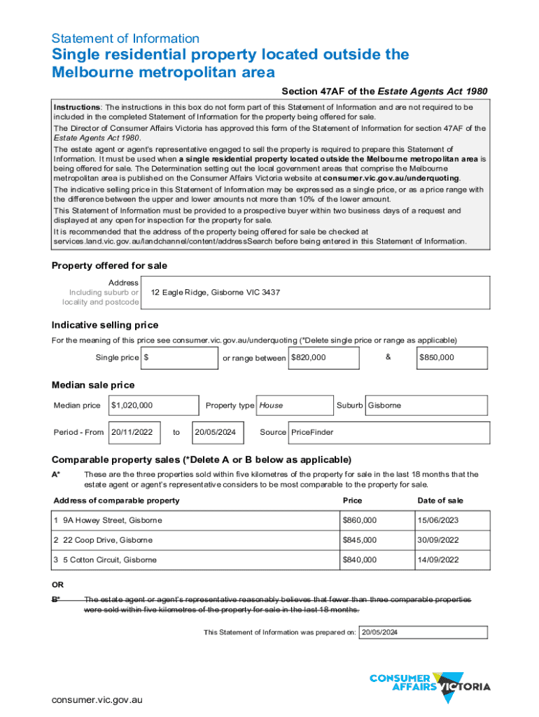
Statement of InformationSingle residential property located outside the Melbourne metropolitan area Section 47AF of the Estate Agents Act 1980 Instructions: The instructions in this box do not form
We are not affiliated with any brand or entity on this form
Get, Create, Make and Sign 12 eagle ridge gisborne
Edit your 12 eagle ridge gisborne form online
Type text, complete fillable fields, insert images, highlight or blackout data for discretion, add comments, and more.
Add your legally-binding signature
Draw or type your signature, upload a signature image, or capture it with your digital camera.
Share your form instantly
Email, fax, or share your 12 eagle ridge gisborne form via URL. You can also download, print, or export forms to your preferred cloud storage service.
How to edit 12 eagle ridge gisborne online
Use the instructions below to start using our professional PDF editor:
1
Log in to your account. Click Start Free Trial and sign up a profile if you don't have one yet.
2
Prepare a file. Use the Add New button. Then upload your file to the system from your device, importing it from internal mail, the cloud, or by adding its URL.
3
Edit 12 eagle ridge gisborne. Rearrange and rotate pages, insert new and alter existing texts, add new objects, and take advantage of other helpful tools. Click Done to apply changes and return to your Dashboard. Go to the Documents tab to access merging, splitting, locking, or unlocking functions.
4
Get your file. Select your file from the documents list and pick your export method. You may save it as a PDF, email it, or upload it to the cloud.
It's easier to work with documents with pdfFiller than you could have believed. Sign up for a free account to view.
Uncompromising security for your PDF editing and eSignature needs
Your private information is safe with pdfFiller. We employ end-to-end encryption, secure cloud storage, and advanced access control to protect your documents and maintain regulatory compliance.
How to fill out 12 eagle ridge gisborne
How to fill out 12 eagle ridge gisborne
01
Obtain the necessary forms or documents required to fill out 12 Eagle Ridge Gisborne.
02
Review the instructions provided on how to fill out the form thoroughly.
03
Fill in all the required fields accurately and completely.
04
Double-check the information provided to ensure accuracy.
05
Submit the filled-out form according to the specified guidelines.
Who needs 12 eagle ridge gisborne?
01
Anyone who is required to provide information related to 12 Eagle Ridge Gisborne.
02
Individuals or entities involved in real estate transactions or property management.
03
Authorities or organizations overseeing property records or tax assessments.
Fill
form
: Try Risk Free
For pdfFiller’s FAQs
Below is a list of the most common customer questions. If you can’t find an answer to your question, please don’t hesitate to reach out to us.
Can I sign the 12 eagle ridge gisborne electronically in Chrome?
You can. With pdfFiller, you get a strong e-signature solution built right into your Chrome browser. Using our addon, you may produce a legally enforceable eSignature by typing, sketching, or photographing it. Choose your preferred method and eSign in minutes.
How do I fill out 12 eagle ridge gisborne using my mobile device?
On your mobile device, use the pdfFiller mobile app to complete and sign 12 eagle ridge gisborne. Visit our website (https://edit-pdf-ios-android.pdffiller.com/) to discover more about our mobile applications, the features you'll have access to, and how to get started.
How do I complete 12 eagle ridge gisborne on an Android device?
Complete 12 eagle ridge gisborne and other documents on your Android device with the pdfFiller app. The software allows you to modify information, eSign, annotate, and share files. You may view your papers from anywhere with an internet connection.
What is 12 eagle ridge gisborne?
12 Eagle Ridge Gisborne is a tax form that needs to be filed with the tax authorities.
Who is required to file 12 eagle ridge gisborne?
Any individual or entity that meets the criteria set by the tax authorities must file 12 Eagle Ridge Gisborne.
How to fill out 12 eagle ridge gisborne?
You can fill out 12 Eagle Ridge Gisborne by providing the required information accurately and submitting it to the tax authorities.
What is the purpose of 12 eagle ridge gisborne?
The purpose of 12 Eagle Ridge Gisborne is to report relevant financial information to the tax authorities.
What information must be reported on 12 eagle ridge gisborne?
Information such as income, expenses, deductions, and credits must be reported on 12 Eagle Ridge Gisborne.
Fill out your 12 eagle ridge gisborne online with pdfFiller!
pdfFiller is an end-to-end solution for managing, creating, and editing documents and forms in the cloud. Save time and hassle by preparing your tax forms online.
12 Eagle Ridge Gisborne is not the form you're looking for?Search for another form here.
Relevant keywords
Related Forms
If you believe that this page should be taken down, please follow our DMCA take down process
here
.
This form may include fields for payment information. Data entered in these fields is not covered by PCI DSS compliance.