Get the free MINOR PERMIT APPLICATION Page 1 of 4
Show details
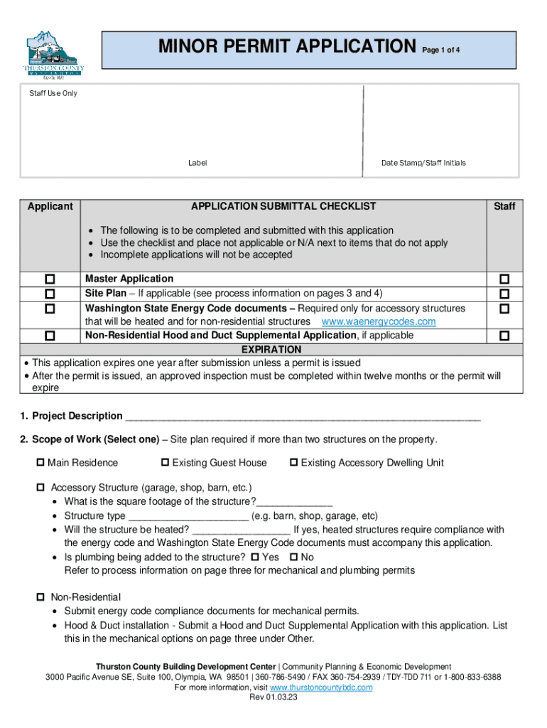
MINOR PERMIT APPLICATION Page 1 of 4Staff Use OnlyLabelApplicantDate Stamp/Staff InitialsAPPLICATION SUBMITTAL CHECKLISTStaff The following is to be completed and submitted with this application
We are not affiliated with any brand or entity on this form
Get, Create, Make and Sign minor permit application page
Edit your minor permit application page form online
Type text, complete fillable fields, insert images, highlight or blackout data for discretion, add comments, and more.
Add your legally-binding signature
Draw or type your signature, upload a signature image, or capture it with your digital camera.
Share your form instantly
Email, fax, or share your minor permit application page form via URL. You can also download, print, or export forms to your preferred cloud storage service.
Editing minor permit application page online
In order to make advantage of the professional PDF editor, follow these steps below:
1
Check your account. If you don't have a profile yet, click Start Free Trial and sign up for one.
2
Simply add a document. Select Add New from your Dashboard and import a file into the system by uploading it from your device or importing it via the cloud, online, or internal mail. Then click Begin editing.
3
Edit minor permit application page. Rearrange and rotate pages, insert new and alter existing texts, add new objects, and take advantage of other helpful tools. Click Done to apply changes and return to your Dashboard. Go to the Documents tab to access merging, splitting, locking, or unlocking functions.
4
Get your file. When you find your file in the docs list, click on its name and choose how you want to save it. To get the PDF, you can save it, send an email with it, or move it to the cloud.
With pdfFiller, it's always easy to work with documents.
Uncompromising security for your PDF editing and eSignature needs
Your private information is safe with pdfFiller. We employ end-to-end encryption, secure cloud storage, and advanced access control to protect your documents and maintain regulatory compliance.
How to fill out minor permit application page
How to fill out minor permit application page
01
Obtain a copy of the minor permit application form from the relevant authority or website.
02
Fill out all required personal information, including name, age, address, and contact details.
03
Provide details of the minor's parent or guardian, if applicable.
04
Include information about the minor's school or educational institution, if required.
05
Complete any sections related to the specific activity or purpose for which the permit is being sought.
06
Review the application form for completeness and accuracy before submitting it.
Who needs minor permit application page?
01
Minors who are required to obtain permits for certain activities or events, such as work permits, travel permits, or permits for participating in sports or entertainment events.
Fill
form
: Try Risk Free
For pdfFiller’s FAQs
Below is a list of the most common customer questions. If you can’t find an answer to your question, please don’t hesitate to reach out to us.
How can I edit minor permit application page from Google Drive?
pdfFiller and Google Docs can be used together to make your documents easier to work with and to make fillable forms right in your Google Drive. The integration will let you make, change, and sign documents, like minor permit application page, without leaving Google Drive. Add pdfFiller's features to Google Drive, and you'll be able to do more with your paperwork on any internet-connected device.
How do I edit minor permit application page in Chrome?
Get and add pdfFiller Google Chrome Extension to your browser to edit, fill out and eSign your minor permit application page, which you can open in the editor directly from a Google search page in just one click. Execute your fillable documents from any internet-connected device without leaving Chrome.
Can I create an electronic signature for signing my minor permit application page in Gmail?
You can easily create your eSignature with pdfFiller and then eSign your minor permit application page directly from your inbox with the help of pdfFiller’s add-on for Gmail. Please note that you must register for an account in order to save your signatures and signed documents.
What is minor permit application page?
Minor permit application page is a form used to request permission for minor construction or renovation projects.
Who is required to file minor permit application page?
Property owners or contractors conducting minor construction projects are required to file a minor permit application page.
How to fill out minor permit application page?
To fill out the minor permit application page, one must provide details about the project such as the scope of work, materials used, and timeline for completion.
What is the purpose of minor permit application page?
The purpose of the minor permit application page is to ensure that construction projects comply with building codes and regulations.
What information must be reported on minor permit application page?
Information such as project description, location, estimated cost, and contact details must be reported on the minor permit application page.
Fill out your minor permit application page online with pdfFiller!
pdfFiller is an end-to-end solution for managing, creating, and editing documents and forms in the cloud. Save time and hassle by preparing your tax forms online.
Minor Permit Application Page is not the form you're looking for?Search for another form here.
Relevant keywords
Related Forms
If you believe that this page should be taken down, please follow our DMCA take down process
here
.
This form may include fields for payment information. Data entered in these fields is not covered by PCI DSS compliance.