
Get the free Certified Home Inspectors near Beauvallon Lake, Two Hills ...
Show details
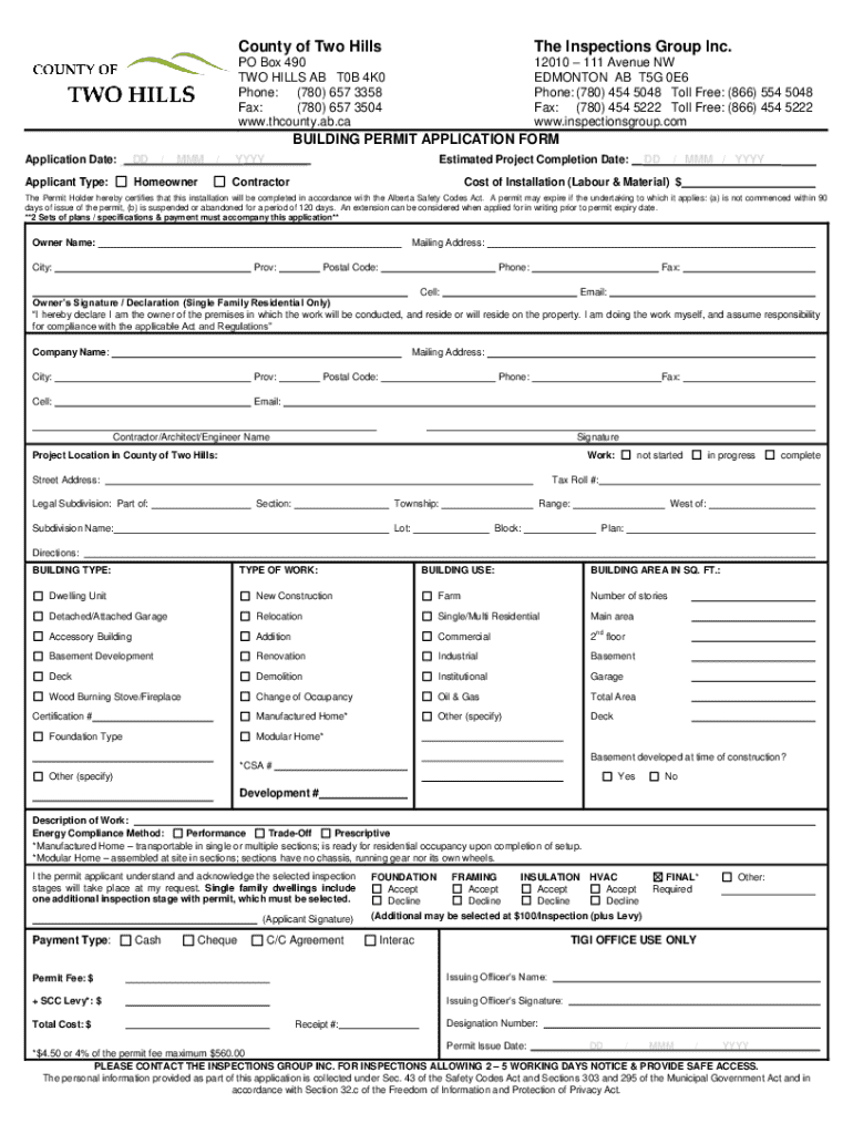
County of Two Hillside Inspections Group Inc. PO Box 490
TWO HILLS AB T0B 4K0
Phone: (780) 657 3358
Fax:
(780) 657 3504
www.thcounty.ab.ca12010 111 Avenue NW
EDMONTON AB T5G 0E6
Phone: (780) 454 5048
We are not affiliated with any brand or entity on this form
Get, Create, Make and Sign certified home inspectors near

Edit your certified home inspectors near form online
Type text, complete fillable fields, insert images, highlight or blackout data for discretion, add comments, and more.

Add your legally-binding signature
Draw or type your signature, upload a signature image, or capture it with your digital camera.

Share your form instantly
Email, fax, or share your certified home inspectors near form via URL. You can also download, print, or export forms to your preferred cloud storage service.
Editing certified home inspectors near online
To use the professional PDF editor, follow these steps:
1
Log in to account. Click Start Free Trial and register a profile if you don't have one.
2
Simply add a document. Select Add New from your Dashboard and import a file into the system by uploading it from your device or importing it via the cloud, online, or internal mail. Then click Begin editing.
3
Edit certified home inspectors near. Rearrange and rotate pages, insert new and alter existing texts, add new objects, and take advantage of other helpful tools. Click Done to apply changes and return to your Dashboard. Go to the Documents tab to access merging, splitting, locking, or unlocking functions.
4
Get your file. Select the name of your file in the docs list and choose your preferred exporting method. You can download it as a PDF, save it in another format, send it by email, or transfer it to the cloud.
pdfFiller makes working with documents easier than you could ever imagine. Register for an account and see for yourself!
Uncompromising security for your PDF editing and eSignature needs
Your private information is safe with pdfFiller. We employ end-to-end encryption, secure cloud storage, and advanced access control to protect your documents and maintain regulatory compliance.
How to fill out certified home inspectors near

How to fill out certified home inspectors near
01
Research certified home inspectors near your location.
02
Review their qualifications and experience.
03
Contact them to schedule an inspection.
04
Prepare your home for the inspection.
05
Attend the inspection and ask questions.
Who needs certified home inspectors near?
01
Homebuyers looking to ensure the property is in good condition before purchasing.
02
Homeowners planning to sell their property and wanting to address any issues beforehand.
03
Real estate agents wanting to provide their clients with reliable inspection services.
Fill
form
: Try Risk Free
For pdfFiller’s FAQs
Below is a list of the most common customer questions. If you can’t find an answer to your question, please don’t hesitate to reach out to us.
How do I complete certified home inspectors near online?
Filling out and eSigning certified home inspectors near is now simple. The solution allows you to change and reorganize PDF text, add fillable fields, and eSign the document. Start a free trial of pdfFiller, the best document editing solution.
How do I edit certified home inspectors near online?
pdfFiller allows you to edit not only the content of your files, but also the quantity and sequence of the pages. Upload your certified home inspectors near to the editor and make adjustments in a matter of seconds. Text in PDFs may be blacked out, typed in, and erased using the editor. You may also include photos, sticky notes, and text boxes, among other things.
How do I make edits in certified home inspectors near without leaving Chrome?
certified home inspectors near can be edited, filled out, and signed with the pdfFiller Google Chrome Extension. You can open the editor right from a Google search page with just one click. Fillable documents can be done on any web-connected device without leaving Chrome.
What is certified home inspectors near?
Certified home inspectors near refer to professional inspectors who are qualified and licensed to assess the condition of residential properties.
Who is required to file certified home inspectors near?
Homeowners or property owners looking to sell or purchase a property may be required to hire certified home inspectors near to evaluate the property.
How to fill out certified home inspectors near?
To fill out certified home inspectors near, one must contact a licensed home inspector, schedule an inspection, and receive a detailed report of the property's condition.
What is the purpose of certified home inspectors near?
The purpose of certified home inspectors near is to provide an unbiased assessment of a property's condition to ensure transparency and informed decision-making during real estate transactions.
What information must be reported on certified home inspectors near?
Certified home inspectors near must report on the structural integrity, safety, and overall condition of the property, including any potential issues or needed repairs.
Fill out your certified home inspectors near online with pdfFiller!
pdfFiller is an end-to-end solution for managing, creating, and editing documents and forms in the cloud. Save time and hassle by preparing your tax forms online.

Certified Home Inspectors Near is not the form you're looking for?Search for another form here.
Relevant keywords
Related Forms
If you believe that this page should be taken down, please follow our DMCA take down process
here
.
This form may include fields for payment information. Data entered in these fields is not covered by PCI DSS compliance.