Form preview

Get the free The VA Boston Healthcare System in Brockton, MA has a requirement to add 20,000 SF o...

Get Form
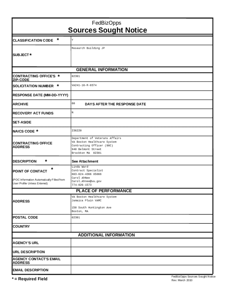
SOURCES SOUGHTThe VA Boston Healthcare System in Brockton, MA has a requirement to add 20,000 SF of new construction for a new Research Addition. This will be a four story steel structure built adjacent
We are not affiliated with any brand or entity on this form

Get, Create, Make and Sign form va boston healthcare

Edit
Edit your form va boston healthcare form online
Type text, complete fillable fields, insert images, highlight or blackout data for discretion, add comments, and more.
Add
Add your legally-binding signature
Draw or type your signature, upload a signature image, or capture it with your digital camera.
Share
Share your form instantly
Email, fax, or share your form va boston healthcare form via URL. You can also download, print, or export forms to your preferred cloud storage service.

How to edit form va boston healthcare online

9.5
Ease of Setup
pdfFiller User Ratings on G2
9.0
Ease of Use
pdfFiller User Ratings on G2
To use the professional PDF editor, follow these steps below:
1
Register the account. Begin by clicking Start Free Trial and create a profile if you are a new user.
2
Upload a document. Select Add New on your Dashboard and transfer a file into the system in one of the following ways: by uploading it from your device or importing from the cloud, web, or internal mail. Then, click Start editing.
3
Edit form va boston healthcare. Replace text, adding objects, rearranging pages, and more. Then select the Documents tab to combine, divide, lock or unlock the file.
4
Get your file. When you find your file in the docs list, click on its name and choose how you want to save it. To get the PDF, you can save it, send an email with it, or move it to the cloud.
It's easier to work with documents with pdfFiller than you could have ever thought. You may try it out for yourself by signing up for an account.

Uncompromising security for your PDF editing and eSignature needs

Your private information is safe with pdfFiller. We employ end-to-end encryption, secure cloud storage, and advanced access control to protect your documents and maintain regulatory compliance.
GDPR
AICPA SOC 2
PCI
HIPAA
CCPA
FDA

How to fill out form va boston healthcare

Illustration

How to fill out form va boston healthcare

01
Obtain the VA Boston healthcare form either online or from a VA facility.
02
Provide all necessary personal information such as name, address, contact details, and social security number.
03
Fill out any medical history or current health information requested on the form.
04
Make sure to sign and date the form where required.
05
Verify that all information provided is accurate before submitting the form.

Who needs form va boston healthcare?

01
Veterans who are seeking healthcare services from the VA Boston healthcare system.

What is The VA Boston Healthcare System in Brockton, MA has a requirement to add 20,000 SF of new construction for a new Research Addition Form?

The The VA Boston Healthcare System in Brockton, MA has a requirement to add 20,000 SF of new construction for a new Research Addition is a Word document that should be submitted to the specific address to provide certain info. It needs to be completed and signed, which is possible manually in hard copy, or via a certain solution like PDFfiller. It helps to complete any PDF or Word document right in the web, customize it according to your purposes and put a legally-binding electronic signature. Right away after completion, you can easily send the The VA Boston Healthcare System in Brockton, MA has a requirement to add 20,000 SF of new construction for a new Research Addition to the relevant recipient, or multiple individuals via email or fax. The template is printable as well from PDFfiller feature and options offered for printing out adjustment. In both electronic and in hard copy, your form will have a neat and professional look. Also you can save it as the template to use it later, there's no need to create a new document again. All that needed is to amend the ready template.

Instructions for the form The VA Boston Healthcare System in Brockton, MA has a requirement to add 20,000 SF of new construction for a new Research Addition

Once you're ready to begin filling out the The VA Boston Healthcare System in Brockton, MA has a requirement to add 20,000 SF of new construction for a new Research Addition writable form, you'll have to make clear that all required details are well prepared. This part is highly significant, as long as errors and simple typos can result in unwanted consequences. It is always unpleasant and time-consuming to resubmit whole word template, not even mentioning penalties caused by blown due dates. Working with figures requires a lot of concentration. At a glimpse, there is nothing tricky about this. But yet, it's easy to make an error. Professionals recommend to keep all important data and get it separately in a file. Once you have a writable template so far, you can easily export it from the document. Anyway, you need to be as observative as you can to provide accurate and legit information. Doublecheck the information in your The VA Boston Healthcare System in Brockton, MA has a requirement to add 20,000 SF of new construction for a new Research Addition form carefully when completing all important fields. You can use the editing tool in order to correct all mistakes if there remains any.

How to fill out The VA Boston Healthcare System in Brockton, MA has a requirement to add 20,000 SF of new construction for a new Research Addition

To start submitting the form The VA Boston Healthcare System in Brockton, MA has a requirement to add 20,000 SF of new construction for a new Research Addition, you'll need a writable template. When you use PDFfiller for filling out and submitting, you will get it in a few ways:

  • Find the The VA Boston Healthcare System in Brockton, MA has a requirement to add 20,000 SF of new construction for a new Research Addition form in PDFfiller’s filebase.
  • Upload the available template from your device in Word or PDF format.
  • Create the document all by yourself in PDF creator tool adding all necessary object in the editor.

Regardless of what choice you prefer, you will have all features you need under your belt. The difference is, the template from the catalogue contains the required fillable fields, you need to add them by yourself in the rest 2 options. But nevertheless, it is quite easy and makes your document really convenient to fill out. These fields can be placed on the pages, as well as deleted. Their types depend on their functions, whether you are entering text, date, or put checkmarks. There is also a signing field for cases when you need the word file to be signed by others. You are able to sign it yourself via signing feature. Upon the completion, all you've left to do is press Done and proceed to the submission of the form.

Fill form : Try Risk Free
Users Most Likely To Recommend - Summer 2025
Grid Leader in Small-Business - Summer 2025
High Performer - Summer 2025
Regional Leader - Summer 2025
Easiest To Do Business With - Summer 2025
Best Meets Requirements- Summer 2025
Rate the form
4.6
Satisfied
47 Votes

For pdfFiller’s FAQs

Below is a list of the most common customer questions. If you can’t find an answer to your question, please don’t hesitate to reach out to us.

With pdfFiller's add-on, you may upload, type, or draw a signature in Gmail. You can eSign your form va boston healthcare and other papers directly in your mailbox with pdfFiller. To preserve signed papers and your personal signatures, create an account.
Using pdfFiller's mobile-native applications for iOS and Android is the simplest method to edit documents on a mobile device. You may get them from the Apple App Store and Google Play, respectively. More information on the apps may be found here. Install the program and log in to begin editing form va boston healthcare.
Use the pdfFiller mobile app to complete and sign form va boston healthcare on your mobile device. Visit our web page (https://edit-pdf-ios-android.pdffiller.com/) to learn more about our mobile applications, the capabilities you’ll have access to, and the steps to take to get up and running.
Form VA Boston Healthcare is a form used for veterans to apply for healthcare services at the VA Boston Healthcare System.
Veterans who are seeking healthcare services at the VA Boston Healthcare System are required to file form VA Boston Healthcare.
Form VA Boston Healthcare can be filled out online on the VA Boston Healthcare System website or in person at the VA Boston Healthcare System facilities.
The purpose of form VA Boston Healthcare is to provide veterans with access to healthcare services at the VA Boston Healthcare System.
Information such as personal details, medical history, insurance information, and veteran status must be reported on form VA Boston Healthcare.
Fill out your form va boston healthcare online with pdfFiller!

pdfFiller is an end-to-end solution for managing, creating, and editing documents and forms in the cloud. Save time and hassle by preparing your tax forms online.

Get started now
Form preview
If you believe that this page should be taken down, please follow our DMCA take down process here .
This form may include fields for payment information. Data entered in these fields is not covered by PCI DSS compliance.