
Get the free single detached class 1a buildings; and
Show details
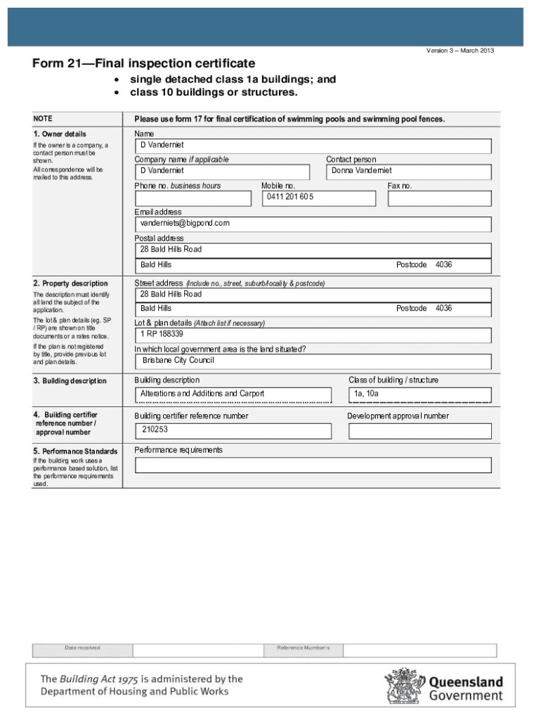
Version 3 March 2013Form 21Final inspection certificate
Single detached class 1a buildings; and
class 10 buildings or structures.Notelets use form 17 for final certification of swimming pools and
We are not affiliated with any brand or entity on this form
Get, Create, Make and Sign single detached class 1a

Edit your single detached class 1a form online
Type text, complete fillable fields, insert images, highlight or blackout data for discretion, add comments, and more.

Add your legally-binding signature
Draw or type your signature, upload a signature image, or capture it with your digital camera.

Share your form instantly
Email, fax, or share your single detached class 1a form via URL. You can also download, print, or export forms to your preferred cloud storage service.
How to edit single detached class 1a online
Follow the guidelines below to benefit from the PDF editor's expertise:
1
Log in to account. Start Free Trial and register a profile if you don't have one.
2
Prepare a file. Use the Add New button. Then upload your file to the system from your device, importing it from internal mail, the cloud, or by adding its URL.
3
Edit single detached class 1a. Rearrange and rotate pages, insert new and alter existing texts, add new objects, and take advantage of other helpful tools. Click Done to apply changes and return to your Dashboard. Go to the Documents tab to access merging, splitting, locking, or unlocking functions.
4
Save your file. Select it in the list of your records. Then, move the cursor to the right toolbar and choose one of the available exporting methods: save it in multiple formats, download it as a PDF, send it by email, or store it in the cloud.
The use of pdfFiller makes dealing with documents straightforward.
Uncompromising security for your PDF editing and eSignature needs
Your private information is safe with pdfFiller. We employ end-to-end encryption, secure cloud storage, and advanced access control to protect your documents and maintain regulatory compliance.
How to fill out single detached class 1a

How to fill out single detached class 1a
01
Obtain the necessary forms from the local government or building department.
02
Fill out the forms with accurate and detailed information about the single detached class 1a structure, including dimensions, materials used, and intended use.
03
Include any required supporting documents or drawings with the forms.
04
Submit the completed forms and supporting documents to the appropriate department for review and approval.
05
Wait for feedback from the department regarding the approval status of the single detached class 1a structure.
Who needs single detached class 1a?
01
Anyone looking to build a single detached residential structure that falls under class 1a category would need to fill out the necessary forms and obtain approval from the local government or building department.
Fill
form
: Try Risk Free
For pdfFiller’s FAQs
Below is a list of the most common customer questions. If you can’t find an answer to your question, please don’t hesitate to reach out to us.
How do I make changes in single detached class 1a?
The editing procedure is simple with pdfFiller. Open your single detached class 1a in the editor. You may also add photos, draw arrows and lines, insert sticky notes and text boxes, and more.
How do I fill out the single detached class 1a form on my smartphone?
The pdfFiller mobile app makes it simple to design and fill out legal paperwork. Complete and sign single detached class 1a and other papers using the app. Visit pdfFiller's website to learn more about the PDF editor's features.
How can I fill out single detached class 1a on an iOS device?
pdfFiller has an iOS app that lets you fill out documents on your phone. A subscription to the service means you can make an account or log in to one you already have. As soon as the registration process is done, upload your single detached class 1a. You can now use pdfFiller's more advanced features, like adding fillable fields and eSigning documents, as well as accessing them from any device, no matter where you are in the world.
What is single detached class 1a?
Single detached class 1a refers to a type of residential property that is considered as a separate unit from other buildings.
Who is required to file single detached class 1a?
Owners or individuals who own or reside in single detached class 1a properties are required to file.
How to fill out single detached class 1a?
To fill out single detached class 1a, owners need to provide information such as property address, ownership details, and property value.
What is the purpose of single detached class 1a?
The purpose of single detached class 1a is to declare and assess the value of residential properties for tax purposes.
What information must be reported on single detached class 1a?
Information such as property address, ownership details, property value, and any improvements made to the property must be reported.
Fill out your single detached class 1a online with pdfFiller!
pdfFiller is an end-to-end solution for managing, creating, and editing documents and forms in the cloud. Save time and hassle by preparing your tax forms online.

Single Detached Class 1a is not the form you're looking for?Search for another form here.
Relevant keywords
Related Forms
If you believe that this page should be taken down, please follow our DMCA take down process
here
.
This form may include fields for payment information. Data entered in these fields is not covered by PCI DSS compliance.