
Get the free 129 N 2nd Street, 2nd Floor, Yakima, WA 98901
Show details
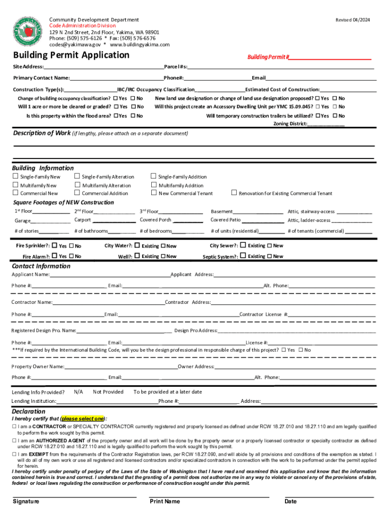
Community Development Department Code Administration Division 129 N 2nd Street, 2nd Floor, Yakima, WA 98901 Phone: (509) 5756126 * Fax: (509) 5766576 codes@yakimawa.gov * www.buildingyakima.comRevised
We are not affiliated with any brand or entity on this form
Get, Create, Make and Sign 129 n 2nd street

Edit your 129 n 2nd street form online
Type text, complete fillable fields, insert images, highlight or blackout data for discretion, add comments, and more.

Add your legally-binding signature
Draw or type your signature, upload a signature image, or capture it with your digital camera.

Share your form instantly
Email, fax, or share your 129 n 2nd street form via URL. You can also download, print, or export forms to your preferred cloud storage service.
Editing 129 n 2nd street online
Use the instructions below to start using our professional PDF editor:
1
Create an account. Begin by choosing Start Free Trial and, if you are a new user, establish a profile.
2
Prepare a file. Use the Add New button to start a new project. Then, using your device, upload your file to the system by importing it from internal mail, the cloud, or adding its URL.
3
Edit 129 n 2nd street. Rearrange and rotate pages, add new and changed texts, add new objects, and use other useful tools. When you're done, click Done. You can use the Documents tab to merge, split, lock, or unlock your files.
4
Get your file. When you find your file in the docs list, click on its name and choose how you want to save it. To get the PDF, you can save it, send an email with it, or move it to the cloud.
Uncompromising security for your PDF editing and eSignature needs
Your private information is safe with pdfFiller. We employ end-to-end encryption, secure cloud storage, and advanced access control to protect your documents and maintain regulatory compliance.
Fill
form
: Try Risk Free
For pdfFiller’s FAQs
Below is a list of the most common customer questions. If you can’t find an answer to your question, please don’t hesitate to reach out to us.
How do I modify my 129 n 2nd street in Gmail?
It's easy to use pdfFiller's Gmail add-on to make and edit your 129 n 2nd street and any other documents you get right in your email. You can also eSign them. Take a look at the Google Workspace Marketplace and get pdfFiller for Gmail. Get rid of the time-consuming steps and easily manage your documents and eSignatures with the help of an app.
How can I modify 129 n 2nd street without leaving Google Drive?
You can quickly improve your document management and form preparation by integrating pdfFiller with Google Docs so that you can create, edit and sign documents directly from your Google Drive. The add-on enables you to transform your 129 n 2nd street into a dynamic fillable form that you can manage and eSign from any internet-connected device.
How can I send 129 n 2nd street for eSignature?
When you're ready to share your 129 n 2nd street, you can swiftly email it to others and receive the eSigned document back. You may send your PDF through email, fax, text message, or USPS mail, or you can notarize it online. All of this may be done without ever leaving your account.
What is 129 n 2nd street?
129 N 2nd Street is a location that may refer to a specific address in a city or town, commonly used for commercial or residential properties.
Who is required to file 129 n 2nd street?
The requirement to file at 129 N 2nd Street typically depends on local regulations, and may involve property owners, businesses, or individuals involved in specific activities related to that address.
How to fill out 129 n 2nd street?
Filling out paperwork or forms related to 129 N 2nd Street typically involves providing necessary information such as names, addresses, and details relevant to the purpose of the filing.
What is the purpose of 129 n 2nd street?
The purpose of 129 N 2nd Street could vary, possibly serving as a business location, residence, or administrative address, depending on the context in which it is referenced.
What information must be reported on 129 n 2nd street?
The information that must be reported at 129 N 2nd Street may include property ownership details, business operation data, or compliance-related information, based on the nature of the filing.
Fill out your 129 n 2nd street online with pdfFiller!
pdfFiller is an end-to-end solution for managing, creating, and editing documents and forms in the cloud. Save time and hassle by preparing your tax forms online.

129 N 2nd Street is not the form you're looking for?Search for another form here.
Relevant keywords
Related Forms
If you believe that this page should be taken down, please follow our DMCA take down process
here
.
This form may include fields for payment information. Data entered in these fields is not covered by PCI DSS compliance.