
Get the free Online Contact the Yakima Fire Department Fax ...
Show details
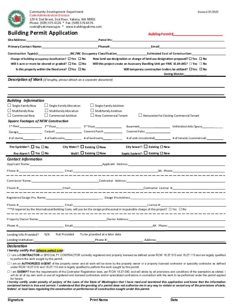
COMMUNITY DEVELOPMENT DEPARTMENT Code Administration Division 129 North Second Street, 2nd Floor Yakima, Washington 98901 Phone (509) 5756126 Fax (509) 5766576 Email: codes@yakimawa.govCHANGE OF OCCUPANCY
We are not affiliated with any brand or entity on this form
Get, Create, Make and Sign online contact form yakima

Edit your online contact form yakima form online
Type text, complete fillable fields, insert images, highlight or blackout data for discretion, add comments, and more.

Add your legally-binding signature
Draw or type your signature, upload a signature image, or capture it with your digital camera.

Share your form instantly
Email, fax, or share your online contact form yakima form via URL. You can also download, print, or export forms to your preferred cloud storage service.
Editing online contact form yakima online
To use our professional PDF editor, follow these steps:
1
Log in to account. Click on Start Free Trial and register a profile if you don't have one.
2
Simply add a document. Select Add New from your Dashboard and import a file into the system by uploading it from your device or importing it via the cloud, online, or internal mail. Then click Begin editing.
3
Edit online contact form yakima. Add and change text, add new objects, move pages, add watermarks and page numbers, and more. Then click Done when you're done editing and go to the Documents tab to merge or split the file. If you want to lock or unlock the file, click the lock or unlock button.
4
Save your file. Select it from your list of records. Then, move your cursor to the right toolbar and choose one of the exporting options. You can save it in multiple formats, download it as a PDF, send it by email, or store it in the cloud, among other things.
It's easier to work with documents with pdfFiller than you could have believed. You may try it out for yourself by signing up for an account.
Uncompromising security for your PDF editing and eSignature needs
Your private information is safe with pdfFiller. We employ end-to-end encryption, secure cloud storage, and advanced access control to protect your documents and maintain regulatory compliance.
How to fill out online contact form yakima

How to fill out online contact form yakima
01
Visit the website where the online contact form is located.
02
Locate the 'Contact Us' or 'Get in Touch' section on the website.
03
Click on the online contact form link or button.
04
Fill in your personal information such as name, email address, and phone number.
05
Write your message or reason for contacting in the provided text box.
06
Verify all your information is correct before submitting the form.
07
Click submit or send to complete the process.
Who needs online contact form yakima?
01
Individuals looking to contact a business or organization based in Yakima remotely.
02
Customers who prefer to communicate through online channels rather than phone calls or in-person visits.
03
People who have inquiries, feedback, or requests for the business or organization.
Fill
form
: Try Risk Free
For pdfFiller’s FAQs
Below is a list of the most common customer questions. If you can’t find an answer to your question, please don’t hesitate to reach out to us.
How can I modify online contact form yakima without leaving Google Drive?
People who need to keep track of documents and fill out forms quickly can connect PDF Filler to their Google Docs account. This means that they can make, edit, and sign documents right from their Google Drive. Make your online contact form yakima into a fillable form that you can manage and sign from any internet-connected device with this add-on.
How do I make edits in online contact form yakima without leaving Chrome?
Download and install the pdfFiller Google Chrome Extension to your browser to edit, fill out, and eSign your online contact form yakima, which you can open in the editor with a single click from a Google search page. Fillable documents may be executed from any internet-connected device without leaving Chrome.
How can I edit online contact form yakima on a smartphone?
The easiest way to edit documents on a mobile device is using pdfFiller’s mobile-native apps for iOS and Android. You can download those from the Apple Store and Google Play, respectively. You can learn more about the apps here. Install and log in to the application to start editing online contact form yakima.
What is online contact form yakima?
Online contact form Yakima is a digital form used for contacting individuals or businesses in the Yakima area.
Who is required to file online contact form yakima?
Anyone looking to get in touch with someone in the Yakima area may be required to fill out the online contact form Yakima.
How to fill out online contact form yakima?
To fill out the online contact form Yakima, simply visit the website where the form is hosted and enter the required information.
What is the purpose of online contact form yakima?
The purpose of online contact form Yakima is to facilitate communication between individuals or businesses in the Yakima area.
What information must be reported on online contact form yakima?
The information required on the online contact form Yakima may include name, contact details, reason for contact, and any additional details.
Fill out your online contact form yakima online with pdfFiller!
pdfFiller is an end-to-end solution for managing, creating, and editing documents and forms in the cloud. Save time and hassle by preparing your tax forms online.

Online Contact Form Yakima is not the form you're looking for?Search for another form here.
Relevant keywords
Related Forms
If you believe that this page should be taken down, please follow our DMCA take down process
here
.
This form may include fields for payment information. Data entered in these fields is not covered by PCI DSS compliance.