Form preview

Get the free Nps Form 10-900

Get Form
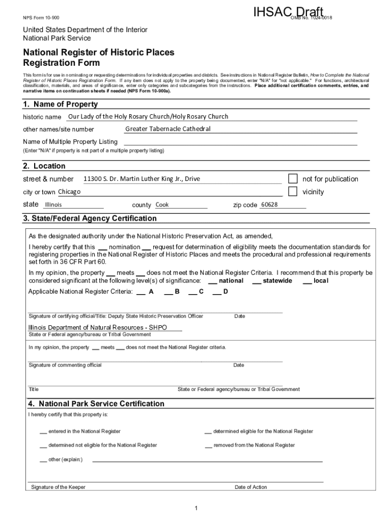
This document outlines the nomination of Our Lady of the Holy Rosary Church in Chicago for the National Register of Historic Places, highlighting its architectural significance and historical importance.
We are not affiliated with any brand or entity on this form

Get, Create, Make and Sign nps form 10-900

Edit
Edit your nps form 10-900 form online
Type text, complete fillable fields, insert images, highlight or blackout data for discretion, add comments, and more.
Add
Add your legally-binding signature
Draw or type your signature, upload a signature image, or capture it with your digital camera.
Share
Share your form instantly
Email, fax, or share your nps form 10-900 form via URL. You can also download, print, or export forms to your preferred cloud storage service.

How to edit nps form 10-900 online

9.5
Ease of Setup
pdfFiller User Ratings on G2
9.0
Ease of Use
pdfFiller User Ratings on G2
To use the services of a skilled PDF editor, follow these steps:
1
Set up an account. If you are a new user, click Start Free Trial and establish a profile.
2
Prepare a file. Use the Add New button. Then upload your file to the system from your device, importing it from internal mail, the cloud, or by adding its URL.
3
Edit nps form 10-900. Rearrange and rotate pages, insert new and alter existing texts, add new objects, and take advantage of other helpful tools. Click Done to apply changes and return to your Dashboard. Go to the Documents tab to access merging, splitting, locking, or unlocking functions.
4
Get your file. When you find your file in the docs list, click on its name and choose how you want to save it. To get the PDF, you can save it, send an email with it, or move it to the cloud.
pdfFiller makes dealing with documents a breeze. Create an account to find out!

Uncompromising security for your PDF editing and eSignature needs

Your private information is safe with pdfFiller. We employ end-to-end encryption, secure cloud storage, and advanced access control to protect your documents and maintain regulatory compliance.
GDPR
AICPA SOC 2
PCI
HIPAA
CCPA
FDA

How to fill out nps form 10-900

Illustration

How to fill out nps form 10-900

01
Obtain nps form 10-900 from the National Park Service website or office.
02
Fill out your organization's information in the appropriate sections.
03
Provide details about the project or program for which you are seeking funding.
04
Include a budget and justification for the requested funds.
05
Submit the completed form according to the instructions provided.

Who needs nps form 10-900?

01
Non-profit organizations, educational institutions, and other entities seeking funding for projects or programs related to national parks and conservation may need to fill out nps form 10-900.
Fill form : Try Risk Free
Users Most Likely To Recommend - Summer 2025
Grid Leader in Small-Business - Summer 2025
High Performer - Summer 2025
Regional Leader - Summer 2025
Easiest To Do Business With - Summer 2025
Best Meets Requirements- Summer 2025
Rate the form
4.1
Satisfied
31 Votes

For pdfFiller’s FAQs

Below is a list of the most common customer questions. If you can’t find an answer to your question, please don’t hesitate to reach out to us.

You can use pdfFiller’s add-on for Gmail in order to modify, fill out, and eSign your nps form 10-900 along with other documents right in your inbox. Find pdfFiller for Gmail in Google Workspace Marketplace. Use time you spend on handling your documents and eSignatures for more important things.
Using pdfFiller with Google Docs allows you to create, amend, and sign documents straight from your Google Drive. The add-on turns your nps form 10-900 into a dynamic fillable form that you can manage and eSign from anywhere.
It’s easy with pdfFiller, a comprehensive online solution for professional document management. Access our extensive library of online forms (over 25M fillable forms are available) and locate the nps form 10-900 in a matter of seconds. Open it right away and start customizing it using advanced editing features.
NPS Form 10-900 is a National Historic Preservation Act application form used for nominating properties to the National Register of Historic Places.
Anyone who wishes to nominate a property for listing in the National Register of Historic Places, including property owners, preservation organizations, and government agencies, is required to file NPS Form 10-900.
To fill out NPS Form 10-900, applicants must provide detailed information about the property, including its location, historical significance, architectural description, and context within local history.
The purpose of NPS Form 10-900 is to formally document the significance of a property and to initiate the process for its recognition and protection under the National Register of Historic Places.
Information that must be reported on NPS Form 10-900 includes the property's location, historical significance, architectural description, period of significance, and information about the owners and previous alterations.
Fill out your nps form 10-900 online with pdfFiller!

pdfFiller is an end-to-end solution for managing, creating, and editing documents and forms in the cloud. Save time and hassle by preparing your tax forms online.

Get started now
Form preview
If you believe that this page should be taken down, please follow our DMCA take down process here .
This form may include fields for payment information. Data entered in these fields is not covered by PCI DSS compliance.