Form preview

Get the free Replace Obsolete Fire Alarm Devices, 537-16-101 - Solicitation ... template

Get Form
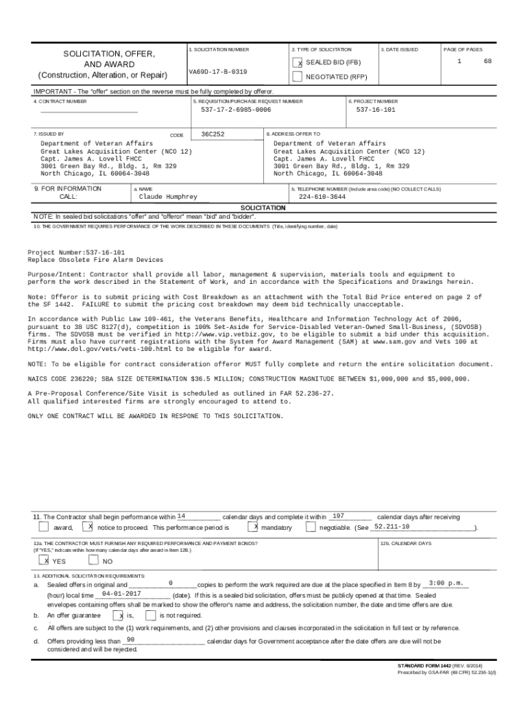
Table of Contents PART I THE SCHEDULE 1 SECTION A SOLICITATION/CONTRACT FORM 1 SF 1442 SOLICITATION, OFFER, AND AWARD (Construction, Alteration, or Repair) 1 A.1 CONTRACT ADMINISTRATION DATA 6 A.2
We are not affiliated with any brand or entity on this form

Get, Create, Make and Sign replace obsolete fire alarm

Edit
Edit your replace obsolete fire alarm form online
Type text, complete fillable fields, insert images, highlight or blackout data for discretion, add comments, and more.
Add
Add your legally-binding signature
Draw or type your signature, upload a signature image, or capture it with your digital camera.
Share
Share your form instantly
Email, fax, or share your replace obsolete fire alarm form via URL. You can also download, print, or export forms to your preferred cloud storage service.

Editing replace obsolete fire alarm online

9.5
Ease of Setup
pdfFiller User Ratings on G2
9.0
Ease of Use
pdfFiller User Ratings on G2
To use our professional PDF editor, follow these steps:
1
Create an account. Begin by choosing Start Free Trial and, if you are a new user, establish a profile.
2
Upload a file. Select Add New on your Dashboard and upload a file from your device or import it from the cloud, online, or internal mail. Then click Edit.
3
Edit replace obsolete fire alarm. Rearrange and rotate pages, add new and changed texts, add new objects, and use other useful tools. When you're done, click Done. You can use the Documents tab to merge, split, lock, or unlock your files.
4
Save your file. Choose it from the list of records. Then, shift the pointer to the right toolbar and select one of the several exporting methods: save it in multiple formats, download it as a PDF, email it, or save it to the cloud.
With pdfFiller, it's always easy to work with documents.

Uncompromising security for your PDF editing and eSignature needs

Your private information is safe with pdfFiller. We employ end-to-end encryption, secure cloud storage, and advanced access control to protect your documents and maintain regulatory compliance.
GDPR
AICPA SOC 2
PCI
HIPAA
CCPA
FDA

What is Replace Obsolete Fire Alarm Devices, 537-16-101 - Solicitation ... Form?

The Replace Obsolete Fire Alarm Devices, 537-16-101 - Solicitation ... is a document that should be submitted to the required address in order to provide certain information. It must be completed and signed, which can be done manually, or with the help of a certain solution like PDFfiller. It helps to complete any PDF or Word document right in the web, customize it depending on your purposes and put a legally-binding e-signature. Once after completion, you can send the Replace Obsolete Fire Alarm Devices, 537-16-101 - Solicitation ... to the appropriate person, or multiple recipients via email or fax. The template is printable too due to PDFfiller feature and options presented for printing out adjustment. In both digital and in hard copy, your form will have got organized and professional appearance. You can also save it as the template to use it later, without creating a new file from scratch. Just customize the ready sample.

Instructions for the form Replace Obsolete Fire Alarm Devices, 537-16-101 - Solicitation ...

Prior to begin submitting the Replace Obsolete Fire Alarm Devices, 537-16-101 - Solicitation ... writable form, you should make clear that all required information is prepared. This one is significant, as far as errors may lead to unwanted consequences. It is really annoying and time-consuming to re-submit forcedly the whole blank, not to mention penalties caused by blown due dates. To cope the figures requires a lot of focus. At first glimpse, there is nothing challenging about it. Nonetheless, it's easy to make an error. Experts recommend to store all required information and get it separately in a different document. Once you've got a writable template so far, you can easily export that data from the document. In any case, you ought to pay enough attention to provide accurate and correct info. Check the information in your Replace Obsolete Fire Alarm Devices, 537-16-101 - Solicitation ... form twice when filling all necessary fields. You are free to use the editing tool in order to correct all mistakes if there remains any.

Frequently asked questions about Replace Obsolete Fire Alarm Devices, 537-16-101 - Solicitation ... template

1. I have some sensitive word forms to fill out and sign. Is there any chance some other person would have got access to them?

Products dealing with sensitive information (even intel one) like PDFfiller do care about you to be satisfied with how secure your word forms are. We offer you::

  • Cloud storage where all data is kept protected with both basic and layered encryption. The user is the only who has got to access their personal documents. Disclosure of the information is strictly prohibited.
  • To prevent document faking, every single document obtains its unique ID number upon signing.
  • Users can use some extra security features. They manage you to request the two-factor verification for every person trying to read, annotate or edit your file. In PDFfiller you can store fillable forms in folders protected with layered encryption.

2. Is electronic signature legal?

Yes, it is totally legal. After ESIGN Act released in 2000, an e-signature is considered legal, just like physical one is. You are able to fill out a writable document and sign it, and it will be as legally binding as its physical equivalent. While submitting Replace Obsolete Fire Alarm Devices, 537-16-101 - Solicitation ... form, you have a right to approve it with a digital solution. Be sure that it fits to all legal requirements like PDFfiller does.

3. I have a worksheet with some of required information all set. Can I use it with this form somehow?

In PDFfiller, there is a feature called Fill in Bulk. It helps to make an extraction of data from the available document to the online word template. The big thing about this feature is, you can use it with Excel worksheets.

Fill form : Try Risk Free
Users Most Likely To Recommend - Summer 2025
Grid Leader in Small-Business - Summer 2025
High Performer - Summer 2025
Regional Leader - Summer 2025
Easiest To Do Business With - Summer 2025
Best Meets Requirements- Summer 2025
Rate the form
4.8
Satisfied
50 Votes

For pdfFiller’s FAQs

Below is a list of the most common customer questions. If you can’t find an answer to your question, please don’t hesitate to reach out to us.

In your inbox, you may use pdfFiller's add-on for Gmail to generate, modify, fill out, and eSign your replace obsolete fire alarm and any other papers you receive, all without leaving the program. Install pdfFiller for Gmail from the Google Workspace Marketplace by visiting this link. Take away the need for time-consuming procedures and handle your papers and eSignatures with ease.
The premium version of pdfFiller gives you access to a huge library of fillable forms (more than 25 million fillable templates). You can download, fill out, print, and sign them all. State-specific replace obsolete fire alarm and other forms will be easy to find in the library. Find the template you need and use advanced editing tools to make it your own.
No, you can't. With the pdfFiller app for iOS, you can edit, share, and sign replace obsolete fire alarm right away. At the Apple Store, you can buy and install it in a matter of seconds. The app is free, but you will need to set up an account if you want to buy a subscription or start a free trial.
Replace obsolete fire alarm refers to the process of upgrading or replacing outdated fire alarm systems that no longer meet current safety standards or regulations.
Property owners, facility managers, or responsible parties for the building are typically required to file for the replacement of obsolete fire alarms.
To fill out the replace obsolete fire alarm form, provide details on the existing fire alarm system, the reason for replacement, installation details of the new system, and any compliance documentation required by local authorities.
The purpose of replacing an obsolete fire alarm is to ensure the safety of occupants, improve fire detection capabilities, and comply with updated building codes and regulations.
Information that must be reported includes the type of old and new alarm systems, installation dates, contractor information, safety test results, and any related compliance certificates.
Fill out your replace obsolete fire alarm online with pdfFiller!

pdfFiller is an end-to-end solution for managing, creating, and editing documents and forms in the cloud. Save time and hassle by preparing your tax forms online.

Get started now
Form preview
If you believe that this page should be taken down, please follow our DMCA take down process here .
This form may include fields for payment information. Data entered in these fields is not covered by PCI DSS compliance.