Get the free National Register of Historic Places Registration Form
Show details
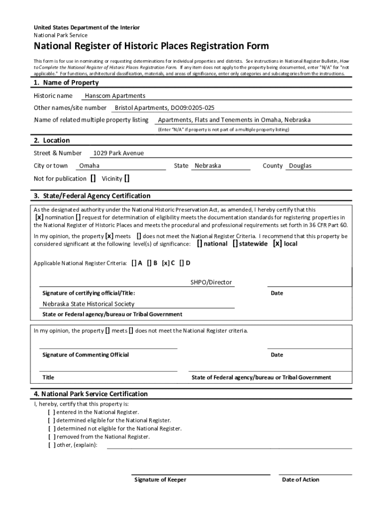
This form documents the Hanscom Apartments in Omaha, Nebraska, for National Register listing, highlighting its Spanish Colonial Revival architecture and historical significance.
We are not affiliated with any brand or entity on this form
Get, Create, Make and Sign national register of historic
Edit your national register of historic form online
Type text, complete fillable fields, insert images, highlight or blackout data for discretion, add comments, and more.
Add your legally-binding signature
Draw or type your signature, upload a signature image, or capture it with your digital camera.
Share your form instantly
Email, fax, or share your national register of historic form via URL. You can also download, print, or export forms to your preferred cloud storage service.
Editing national register of historic online
To use our professional PDF editor, follow these steps:
1
Check your account. If you don't have a profile yet, click Start Free Trial and sign up for one.
2
Upload a document. Select Add New on your Dashboard and transfer a file into the system in one of the following ways: by uploading it from your device or importing from the cloud, web, or internal mail. Then, click Start editing.
3
Edit national register of historic. Rearrange and rotate pages, add new and changed texts, add new objects, and use other useful tools. When you're done, click Done. You can use the Documents tab to merge, split, lock, or unlock your files.
4
Save your file. Select it from your list of records. Then, move your cursor to the right toolbar and choose one of the exporting options. You can save it in multiple formats, download it as a PDF, send it by email, or store it in the cloud, among other things.
With pdfFiller, it's always easy to work with documents. Try it!
Uncompromising security for your PDF editing and eSignature needs
Your private information is safe with pdfFiller. We employ end-to-end encryption, secure cloud storage, and advanced access control to protect your documents and maintain regulatory compliance.
Fill
form
: Try Risk Free
For pdfFiller’s FAQs
Below is a list of the most common customer questions. If you can’t find an answer to your question, please don’t hesitate to reach out to us.
How can I send national register of historic for eSignature?
To distribute your national register of historic, simply send it to others and receive the eSigned document back instantly. Post or email a PDF that you've notarized online. Doing so requires never leaving your account.
How can I get national register of historic?
It's simple with pdfFiller, a full online document management tool. Access our huge online form collection (over 25M fillable forms are accessible) and find the national register of historic in seconds. Open it immediately and begin modifying it with powerful editing options.
How do I edit national register of historic online?
With pdfFiller, it's easy to make changes. Open your national register of historic in the editor, which is very easy to use and understand. When you go there, you'll be able to black out and change text, write and erase, add images, draw lines, arrows, and more. You can also add sticky notes and text boxes.
What is national register of historic?
The National Register of Historic Places is the official list of the United States federal government that recognizes and protects historic and archeological sites deemed worthy of preservation.
Who is required to file national register of historic?
Property owners, state governments, and tribal authorities can file nominations for properties to be included in the National Register of Historic Places.
How to fill out national register of historic?
To fill out a nomination for the National Register, applicants must complete a nomination form, provide documentation of the property's significance, and submit it to the appropriate state historic preservation office.
What is the purpose of national register of historic?
The purpose of the National Register of Historic Places is to identify, evaluate, and protect America's historic and archeological resources, thereby promoting public awareness and appreciation of cultural heritage.
What information must be reported on national register of historic?
Essential information includes the property's location, historical significance, physical description, and the period of significance, along with supporting documentation and photographs.
Fill out your national register of historic online with pdfFiller!
pdfFiller is an end-to-end solution for managing, creating, and editing documents and forms in the cloud. Save time and hassle by preparing your tax forms online.
National Register Of Historic is not the form you're looking for?Search for another form here.
Relevant keywords
Related Forms
If you believe that this page should be taken down, please follow our DMCA take down process
here
.
This form may include fields for payment information. Data entered in these fields is not covered by PCI DSS compliance.