Get the free Application for a Conditional Use Permit - Washburn County
Show details
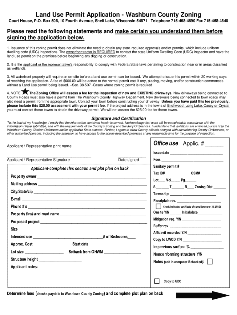
Land Use Permit Application Washburn County Zoning Court House, P.O. Box 506, 10 Fourth Avenue, Shell Lake, Wisconsin 54871 Telephone 7154684690 Fax 7154684640Please read the following statements
We are not affiliated with any brand or entity on this form
Get, Create, Make and Sign application for a conditional
Edit your application for a conditional form online
Type text, complete fillable fields, insert images, highlight or blackout data for discretion, add comments, and more.
Add your legally-binding signature
Draw or type your signature, upload a signature image, or capture it with your digital camera.
Share your form instantly
Email, fax, or share your application for a conditional form via URL. You can also download, print, or export forms to your preferred cloud storage service.
Editing application for a conditional online
Here are the steps you need to follow to get started with our professional PDF editor:
1
Set up an account. If you are a new user, click Start Free Trial and establish a profile.
2
Simply add a document. Select Add New from your Dashboard and import a file into the system by uploading it from your device or importing it via the cloud, online, or internal mail. Then click Begin editing.
3
Edit application for a conditional. Rearrange and rotate pages, insert new and alter existing texts, add new objects, and take advantage of other helpful tools. Click Done to apply changes and return to your Dashboard. Go to the Documents tab to access merging, splitting, locking, or unlocking functions.
4
Get your file. Select the name of your file in the docs list and choose your preferred exporting method. You can download it as a PDF, save it in another format, send it by email, or transfer it to the cloud.
Dealing with documents is always simple with pdfFiller.
Uncompromising security for your PDF editing and eSignature needs
Your private information is safe with pdfFiller. We employ end-to-end encryption, secure cloud storage, and advanced access control to protect your documents and maintain regulatory compliance.
Fill
form
: Try Risk Free
For pdfFiller’s FAQs
Below is a list of the most common customer questions. If you can’t find an answer to your question, please don’t hesitate to reach out to us.
How do I complete application for a conditional online?
Filling out and eSigning application for a conditional is now simple. The solution allows you to change and reorganize PDF text, add fillable fields, and eSign the document. Start a free trial of pdfFiller, the best document editing solution.
Can I create an eSignature for the application for a conditional in Gmail?
With pdfFiller's add-on, you may upload, type, or draw a signature in Gmail. You can eSign your application for a conditional and other papers directly in your mailbox with pdfFiller. To preserve signed papers and your personal signatures, create an account.
How do I edit application for a conditional on an iOS device?
Yes, you can. With the pdfFiller mobile app, you can instantly edit, share, and sign application for a conditional on your iOS device. Get it at the Apple Store and install it in seconds. The application is free, but you will have to create an account to purchase a subscription or activate a free trial.
What is application for a conditional?
An application for a conditional is a request made to obtain a conditional approval or permit for specific circumstances or conditions that must be met for compliance with regulations.
Who is required to file application for a conditional?
Individuals or entities that wish to undertake specific activities, projects, or operations that require special permissions or adjustments due to unique conditions are required to file an application for a conditional.
How to fill out application for a conditional?
To fill out an application for a conditional, one must gather relevant information, complete the application form accurately, provide any necessary supporting documents, and submit it to the appropriate authority.
What is the purpose of application for a conditional?
The purpose of an application for a conditional is to allow applicants to seek approval for activities that do not fully comply with existing regulations but can be permitted under certain conditions.
What information must be reported on application for a conditional?
Information that must be reported typically includes the applicant's details, the nature of the request, specific conditions that necessitate the application, and any relevant supporting documentation.
Fill out your application for a conditional online with pdfFiller!
pdfFiller is an end-to-end solution for managing, creating, and editing documents and forms in the cloud. Save time and hassle by preparing your tax forms online.
Application For A Conditional is not the form you're looking for?Search for another form here.
Relevant keywords
Related Forms
If you believe that this page should be taken down, please follow our DMCA take down process
here
.
This form may include fields for payment information. Data entered in these fields is not covered by PCI DSS compliance.